| ID # | RLS10995339 |
| 物件の詳細 | 3 寝室, 2 バスルーム, 洗濯機, 乾燥機 |
| 建築年 | 1929 |
| 管理費 | $8,540 |
| 地下鉄 | 5 分: 4, 5, 6 |
| 8 分: Q | |
![]() |
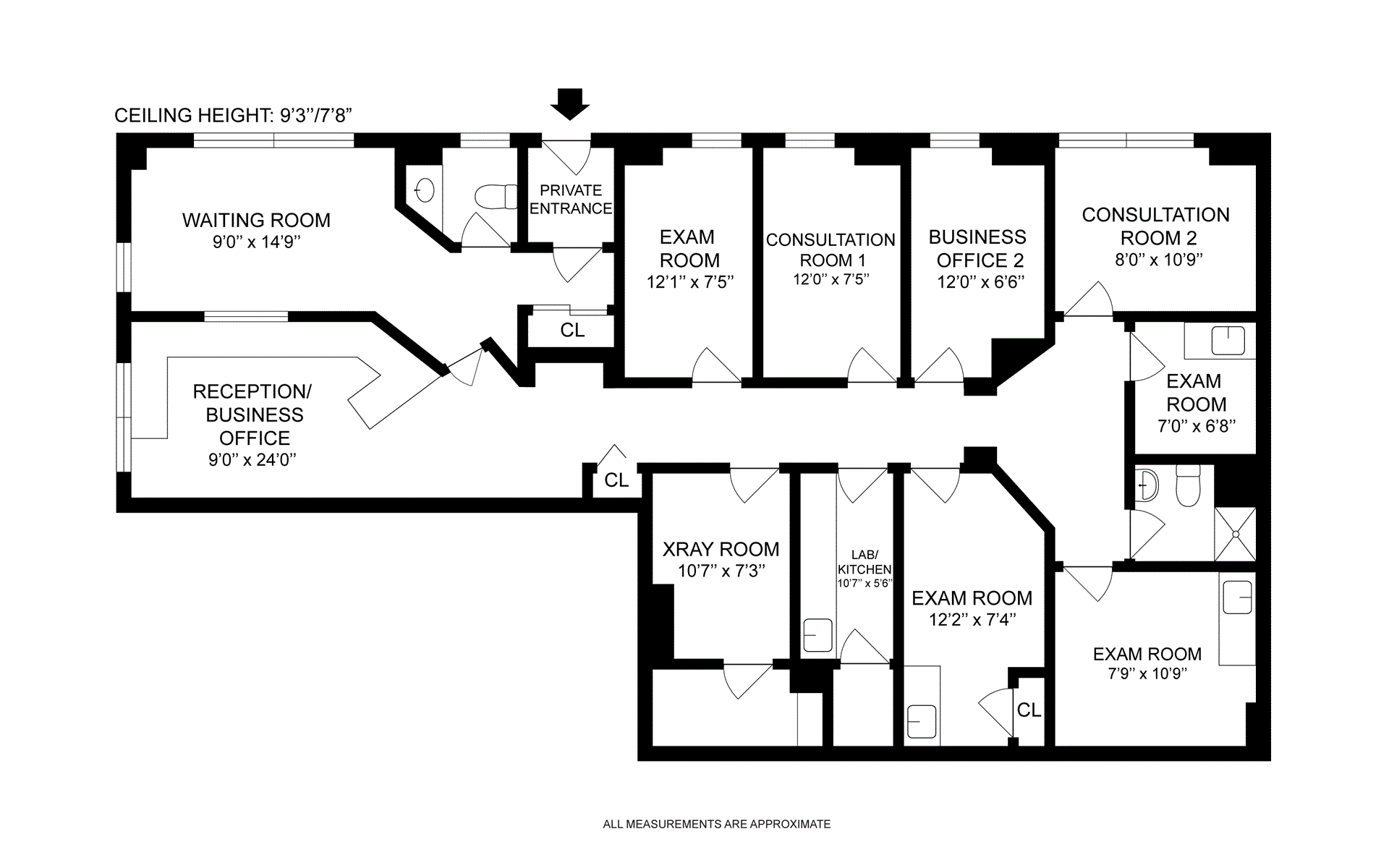
素晴らしいパークアベニュー医療オフィス(1120パークアベニュー@イースト90丁目)売却中、優れた状態です。プライベートストリート入口からの粉洗面所が付いた広々とした窓のある待合室/受付/ビジネスエリアがあります。診察室が4つ、追加のプライベートビジネスオフィス、2つの相談室、ラボ/キッチン、X線室、オフィスの奥にはシャワー付きの2つ目のトイレがあります。大規模な医療実践に最適なオフィスです。優れた特徴:パークアベニューとイースト90丁目に面した多くの窓があり、優れた自然光が入ります。中央空調、名門パークアベニューコープ、プライベートストリート入口、素晴らしいロケーションです。
Wonderful Park Avenue Medical Office (1120 Park Ave. @ East 90th Street) For Sale in Excellent Condition.There is a spacious windowed waiting/reception/business area with powder room off of the private street entrance. There are 4 exam rooms, additional private business office, 2 consultation offices, lab/kitchen, X-Ray Room, and 2nd bathroom with stall shower in the rear of the office. Perfect office for large medical practice. Outstanding Features: Many Windows facing Park Ave. and East 90th Street affording excellent natural light, Central A/C, Prestigious Park Ave. Co-op, Private Street Entrance, and Great Location.
This information is not verified for authenticity or accuracy and is not guaranteed and may not reflect all real estate activity in the market. ©2025 The Real Estate Board of New York, Inc., All rights reserved.







