| ID # | RLS10960509 |
| 物件の詳細 | 4 寝室, 5 バスルーム, 洗濯機, 乾燥機, ガレージ, 内装: 2750 ft2, 255m2 |
| 建築年 | 1985 |
| 管理費 | $4,209 |
| 税金(年間) | $54,624 |
| 地下鉄 | 7 分: Q |
| 10 分: F | |
![]() |
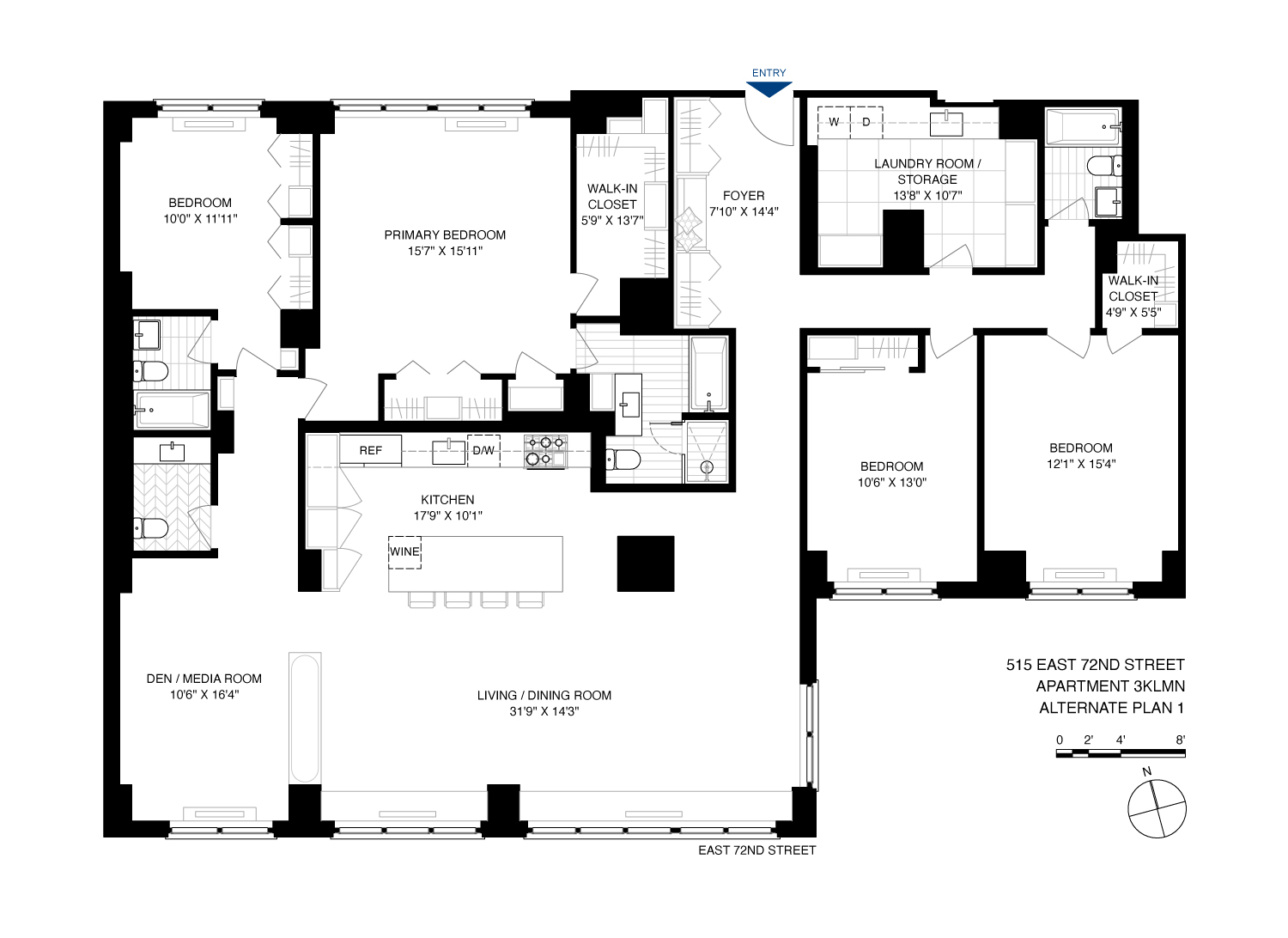
あなたの広々としたレノックスヒルの夢の家が、アメニティが豊富な高級ビルにあるこの広がりのある4ベッドルーム(変更可能な5ベッドルーム)、5バスルームのコンドミニアムで待っています。フレキシブルなレイアウト、プレミアム仕上げ、スタッフ用のクォータ/ホームオフィススペースを備えています。現在は4ベッドルームに構成されているこの美しく統合された家は、簡単に5ベッドルームレイアウトに変更したり、居住空間を便利さと流れを最適化するために再想像するための事前承認されたプランを活用することができます(代替の間取り図を参照)。
現在の2,750平方フィートの構成内では、高い天井、広々とした白いアートウォール、幅広のナチュラルウォールナットの床、3方向にある大きな窓に迎えられます。巨大なグレートルームでリラックスしたり、二つのグルメキッチン/ウェットバーエリアでカスタムキャビネットと高級家電を用いて、豪華なホスティングを簡単に楽しむことができます。大きなパントリーとフルゲストバスルームが便利さを加え、二つ目の巨大なリビングエリアは、別のフォーマルダイニングルーム、メディアラウンジ、または第五のベッドルームに最適です。
日差しを浴びた角のオーナーズリトリートで、一日のストレスを解消してください。ここには二つの巨大なウォークインクローゼットと、豪華な石灰岩とウォーターマークの設備で仕上げられたエンスイートスパバスルームがあります。メディアルーム/デンの隣には、ウォークインとプライベートバス付きのセカンダリースイートがあります。別のウィングには、2つのセカンダリーベッドルームがあり、4番目のフルバスルームを共有し、スタッフルーム/オフィスには独自のバスルームと別の入り口があります。ユニット内洗濯機と乾燥機を備えた2つのランドリークローゼットが、この特別なアップタウンの家を完成させます。
515 East 72nd Streetではラグジュアリーな生活を楽しんでください。現代的な高層コンドミニアムであり、24時間のドアマン、コンシェルジュ、ポーター、ハウスキーピング、そして現地のバレットパーキングサービスを含む5つ星のアメニティの長いリストと注意深いスタッフがいます。ペットフレンドリーなビルの40,000平方フィートのアメニティには、芝生、ヨガスペース、屋外ラウンジを備えた造園された半エーカーのプライベートパークがあります。最先端のフィットネスセンター、オリンピックサイズの屋内プール、ホットタブ、サウナとスチームルーム、ロッククライミングウォール、スカッシュとバスケットボール用の室内コート、そしてエレベーターでアクセス可能なフルサービスのElements Spaでレクリエーションとリラクゼーションを楽しめます。遊び場、ピアノルーム、メディアラウンジ、コーヒーバー、平日無料朝食が、この素晴らしいホテルのようなエンクレーブを完成させます。
東川を見渡す静かなレノックスヒルのクルデサックに位置するこの家は、ブロックの端にある美しい川沿いの広場まで数インチで、隣の通りにある壮観な東川プロムナードにアクセスします。アッパーイーストサイドの特徴的なショッピング、ダイニング、エンターテインメント、医療センターが周辺に充実しています。交通は非常に便利で、Q線と6線の電車、優れたバスサービス、シティバイク、FDRがすぐ手の届く範囲にあります。
一部の写真はバーチャルステージングされています。
月額$1,790.13の資本評価が設けられています。
Your expansive Lenox Hill dream home awaits in this sprawling four-bedroom (convertible five-bedroom), five-bathroom condo featuring a flexible layout, premium finishes and staff quarters/home office space in an amenity-rich luxury building. Currently configured with four bedrooms, this beautifully combined home could easily be converted to a five-bedroom layout or take advantage of pre-approved plans to reimagine the residence to optimize convenience and flow (see alternate floor plans).
Inside the current 2,750-square-foot configuration, you're greeted by tall ceilings, expansive white art walls, wide-plank natural walnut floors and oversized windows on three exposures. Relax and entertain in the massive great room, while two gourmet kitchen/wet bar areas with custom cabinetry and upscale appliances make gracious hosting a breeze. A large pantry and full guest bathroom add convenience, while a second oversized living area is ideal as a separate formal dining room, media lounge or fifth bedroom.
Feel the stress of the day melt away in the sun-kissed corner owner's retreat featuring two huge walk-in closets and an en suite spa bathroom finished in luxurious limestone and Watermark fixtures. Off the media room/den, you'll find a secondary suite with a walk-in and private bath. In a separate wing, two more secondary bedrooms share a fourth full bathroom alongside a staff room/office with its own bathroom and separate entrance. Two laundry closets with in-unit washer-dryers complete this exceptional uptown home.
Enjoy luxury living at 515 East 72nd Street, a modern high-rise condominium featuring a near-endless list of five-star amenities and attentive staff, including 24-hour doorman, concierge, porter, housekeeping and on-site valet parking service. The pet-friendly building's 40,000 square feet of amenities include a landscaped half-acre private park with a lawn, yoga space and outdoor lounge. Recreation and relaxation await in the state-of-the-art fitness center, Olympic-size indoor pool, hot tubs, sauna and steam rooms, rock climbing wall, indoor courts for squash and basketball, plus a full-service Elements Spa just an elevator ride away. A playroom, piano room, media lounge, coffee bar and complimentary weekday breakfast complete this superb hotel-like enclave.
Located on a tranquil Lenox Hill cul de sac overlooking the East River, this home is inches from a lovely riverside plaza at the end of the block and access to the spectacular East River promenade on the next street. The Upper East Side's signature shopping, dining, entertainment and medical centers fill the neighborhood. Transportation is effortless with Q and 6 trains, excellent bus service, CitiBikes and the FDR all within easy reach.
Some photos are virtually staged
$1,790.13 Monthly capital assessment in place
This information is not verified for authenticity or accuracy and is not guaranteed and may not reflect all real estate activity in the market. ©2025 The Real Estate Board of New York, Inc., All rights reserved.







