| ID # | H6295173 |
| 物件の詳細 | 外装: 0.06 エーカー |
| 税金(年間) | $665 |
![]() |
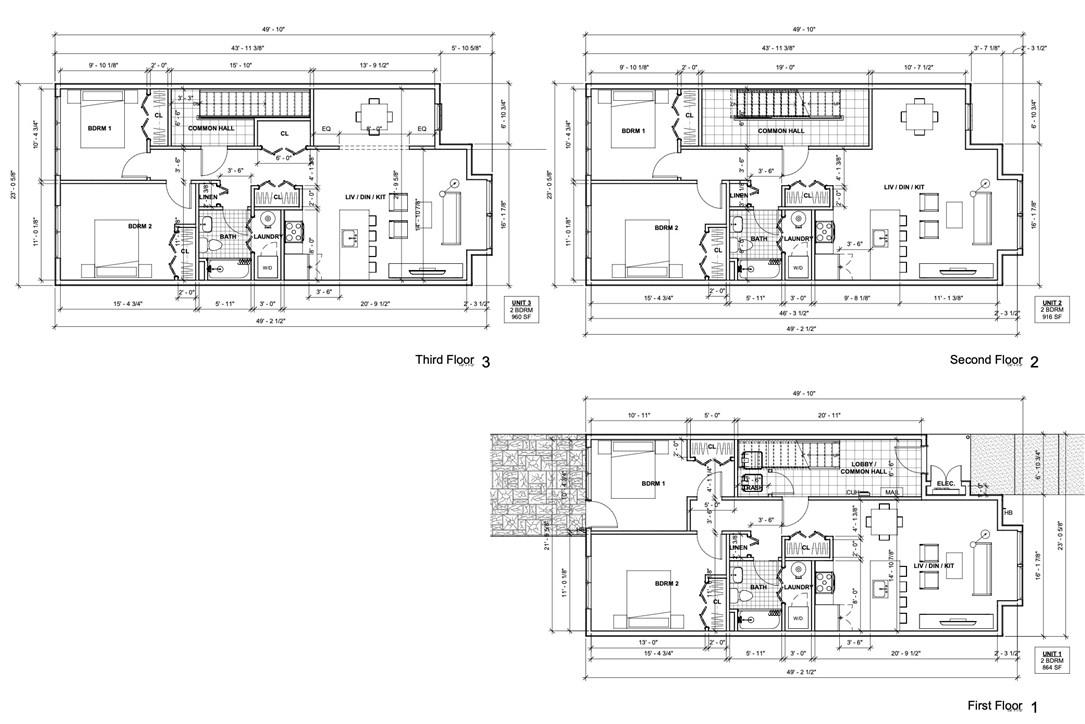
これは、ニューバーグ市で三世帯物件を建設するために承認された空地を購入する希少な機会です。ゾーニングとARCの承認が含まれており、計画は当然の権利として承認されています。建築許可を得るためには最終的な建設計画が必要です。建物のレンダリング写真は承認されたデザインです。下水道、水道、ガス、電気の接続は、通りから物件に引き込むことができます。エージェントは物件に対する利害関係を開示しています。
この物件はニューバーグのダウンタウンに位置しているため、近くには多くのアメニティがあります。リバティストリートの回廊には魅力的なショップやカフェがたくさんあります。ダウンタウンエリア内には、ダウニングパーク、SUNYオレンジ、マウントセントメリー大学、2つのアリスコーヒーラウンジ、ショッピング、カフェ、レストラン、ギャラリー、スタジオレンタル、ボデガ、郵便局、バー、ジョージワシントンパークの歴史的スポット、ニューバーグウォーターフロント、メトロノース鉄道駅へのフェリーも見つけることができます。
This is a rare opportunity to purchase an all ready approved vacant lot with approvals to build a three family property in the City of Newburgh. Approvals for zoning and ARC are included, and planning is approved as of right. Finalized construction plans are needed to get a building permit. Photos of the building rendered are the approved designs. Connections to sewer, water, gas and electric are available to bring to the property from the street. Agent discloses interest in property.
There are many amenities close by, as this property is located in downtown Newburgh. There are many charming shops and cafes on the Liberty St corridor. Within the downtown area you can also find Downing Park, SUNY Orange, Mount St. Mary's College, 2 Alices Coffee Lounge, shopping, cafes, restaurants, galleries, studio rentals, bodegas, post office, bars, George Washington Park Historic sight, Newburgh Waterfront and the Ferry to the Metro North Train Station. © 2025 OneKey™ MLS, LLC







