| ID # | 11291536 |
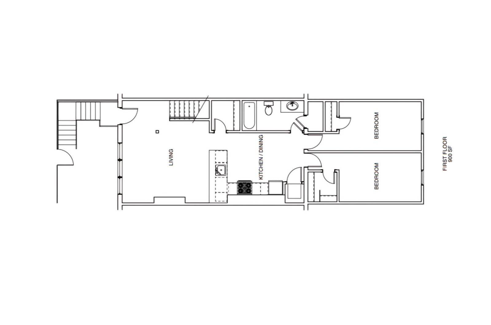
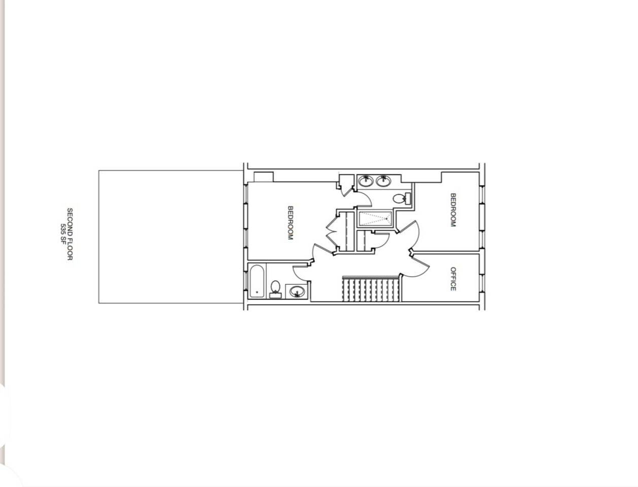
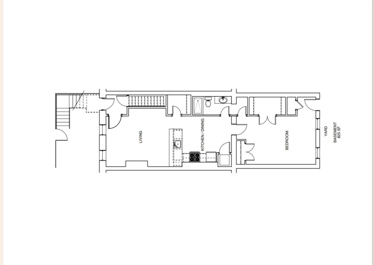
| 物件の詳細 | 6 寝室, 4 バスルーム, 内装: 3070 ft2, 285m2 |
| 地下室 | 全面地下室 Full basement |
| English Webpage | |
| バス | 5 分: B63 |
| 6 分: B103 | |
| 7 分: B61 | |
| 地下鉄 | 3 分: R |
| 6 分: F, G | |
| LIRR | 1.5 マイル: "Atlantic Terminal" |
| 2.5 マイル: "Nostrand Avenue" | |
![]() |
Your dream home awaits! This 2 family house was totally renovated with a 5 bedroom duplex with 3 bathrooms and a large 1 bedroom 1 bathroom walk-in garden apartment. It is exquisite! When you enter the 1 bedroom apartment on the first floor, you will see the open layout of the living area showcasing a beautiful floor to ceiling stone fireplace with a built-in electric heater. You'll enjoy the colorful flames on the cold days. The ambiance will feel peaceful and soothing. In the kitchen, the gray cabinets and quartz countertops with stainless steel appliances will inspire you to prepare your special cuisine while you interact with your guests in this open layout. The LG smart laundry unit is an added luxury. The spacious bedroom and adjoining space can be suitable for an office, accented by the french doors. The garden is accessed through the door at the rear of the bedroom. The backyard has beautiful trees that have fuchsia and purple flowers that blossom in the spring. You can cultivate your favorite herbs, vegetables, or add some plants in the spacious garden area. Now we can enter the duplex apartment, accessed via the outside iron steps. As you enter the apartment, you will see the beautiful stone fireplace and electric heater as you saw downstairs. The stunning blue and white kitchen cabinets with the quartz countertops (the countertops have a lifetime warranty, which is a plus) and stainless steel appliances and the gold finishes will inspire you to unleash your inner chef. The white backsplash with the gold accent sparkles as the light shines on it. The added luxury of the LG smart laundry center makes your life so much easier. There is no need to go outside to a laundromat. The open layout allows you to interact with your guests. There are 2 bedrooms, side by side and a full bathroom. There is plenty of closet space. Take the stairs with the beautiful handrails up to the other 3 bedrooms. There is another bathroom, and the master bedroom has an elegant en-suite bathroom with a double sink and blue vanity, with gold hardware. The shower with the stunning tiles and gold finishes will make you feel like you're in an oasis. The brand new Anderson Windows gives the house a picturesque look, and the 20-year transferable warranty is amazing. There is too much to mention. You have to see all the beauty this home has to offer. The South Slope/Gowanus neighborhood has everything you need. Close to transportation, The R train is 1 block away, the F/G trains are 5 blocks away, the B37 bus is down the block on 3rd Avenue, and the B63 bus is on 5th Avenue. If you drive, you can hop on the BQE or Prospect Expressway that is nearby. There are lots of restaurants, bars, and supermarkets. All you may need is close by. This is the home for you. You don't have to look any further. Call now to schedule a viewing. You won't be disappointed!







