| ID # | RLS11010122 |
| 物件の詳細 | スタジオアパート, 内装: 5500 ft2, 511m2 |
| 建築年 | 1915 |
| 管理費 | $1,588 |
| 税金(年間) | $86,532 |
| English Webpage | |
| 地下鉄 | 3 分: A, C, R, W, 1, 2, 3 |
| 4 分: 4, 5, 6, J, Z | |
| 5 分: E | |
| 7 分: N, Q | |
![]() |
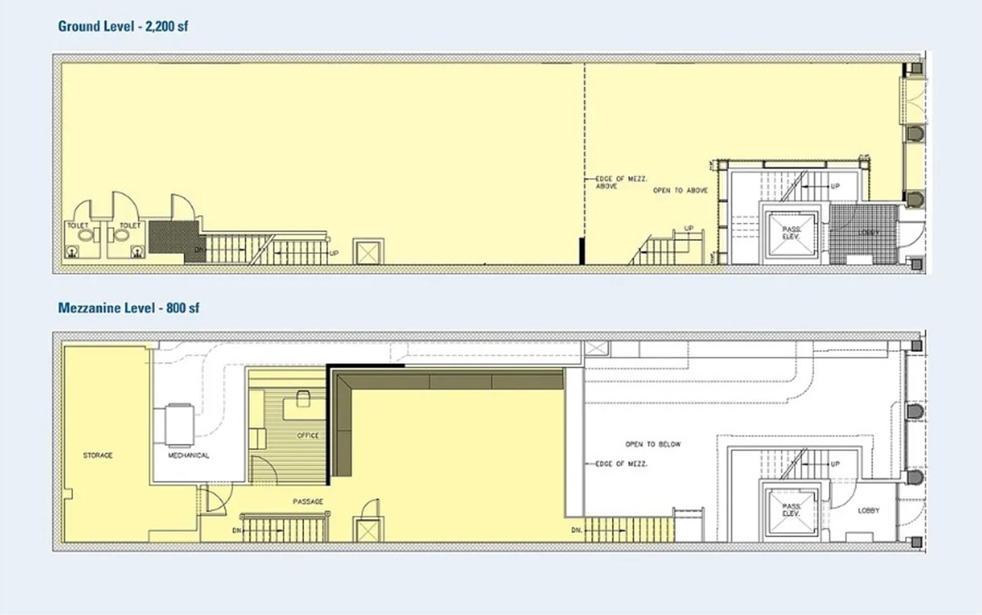
ニューヨーク、NY 10007、デュアンストリート106番地、#COMに位置する美しいトライベッカの2階建てロフト・小売コンドミニアムストア。
このブティック住宅ビルは、6階建てで4つのフルフロアコンドミニアムアパートメントを提供し、1階には商業スペースがあります。堂々とした3本の柱の存在感を誇り、トライベッカの中心に理想的に位置しています。
この見事なストアは、小規模なプロフェッショナルサービス会社やレストラン、バー、デリ、ベーカリー、ギャラリー、ショールーム、オフィスなどのスタートアップに最適です。
2つの排気システムと3つの冷蔵冷凍室がすでに設置されており、完全装備のキッチンも整っています。
高い人通りのあるこのロケーションは、適切な利用者にとって金鉱です。連邦広場、NYS保険基金、ロウアーマンハッタン裁判所、市庁舎、NYS最高裁判所、NYC警察署、いくつかのホテルに便利に位置しています。
付近には、地下鉄駅(1, 2, 3, A, C, R, W, J, Z, 4, 5, 6)が数ブロック以内にあります。
Beautiful Tribeca Two-Story Loft-Retail Condo Store Located at 106 Duane Street, #COM, New York, NY 10007.
This boutique residential building offers four full-floor condominium apartments across six floors, with a commercial space on the ground floor. It boasts an imposing three-column presence and is ideally situated in the heart of Tribeca.
This stunning store is perfect for a small professional service company or a start-up, such as a restaurant, bar, deli, bakery, gallery, showroom, or office.
Two exhaust systems are already installed, along with three refrigerated cold rooms. A fully equipped kitchen is also in place.
With high foot traffic, this location is a gold mine for the right user. It is conveniently located near Federal Plaza, the NYS Insurance Fund, Lower Manhattan Courthouses, City Hall, the NYS Supreme Court, NYC Police Department, and several hotels.
Nearby, subway stations (1, 2, 3, A, C, R, W, J, Z, 4, 5, 6) are within a several-block radius.
This information is not verified for authenticity or accuracy and is not guaranteed and may not reflect all real estate activity in the market. ©2025 The Real Estate Board of New York, Inc., All rights reserved.







