| ID # | RLS11011341 |
| 物件の詳細 | 2 寝室, 1 バスルーム, 1 ハーフバス, 洗濯機, 乾燥機 |
| 建築年 | 1915 |
| 管理費 | $5,239 |
| 地下鉄 | 3 分: F, Q |
| 4 分: 4, 5, 6, N, W, R | |
| 10 分: E, M | |
![]() |
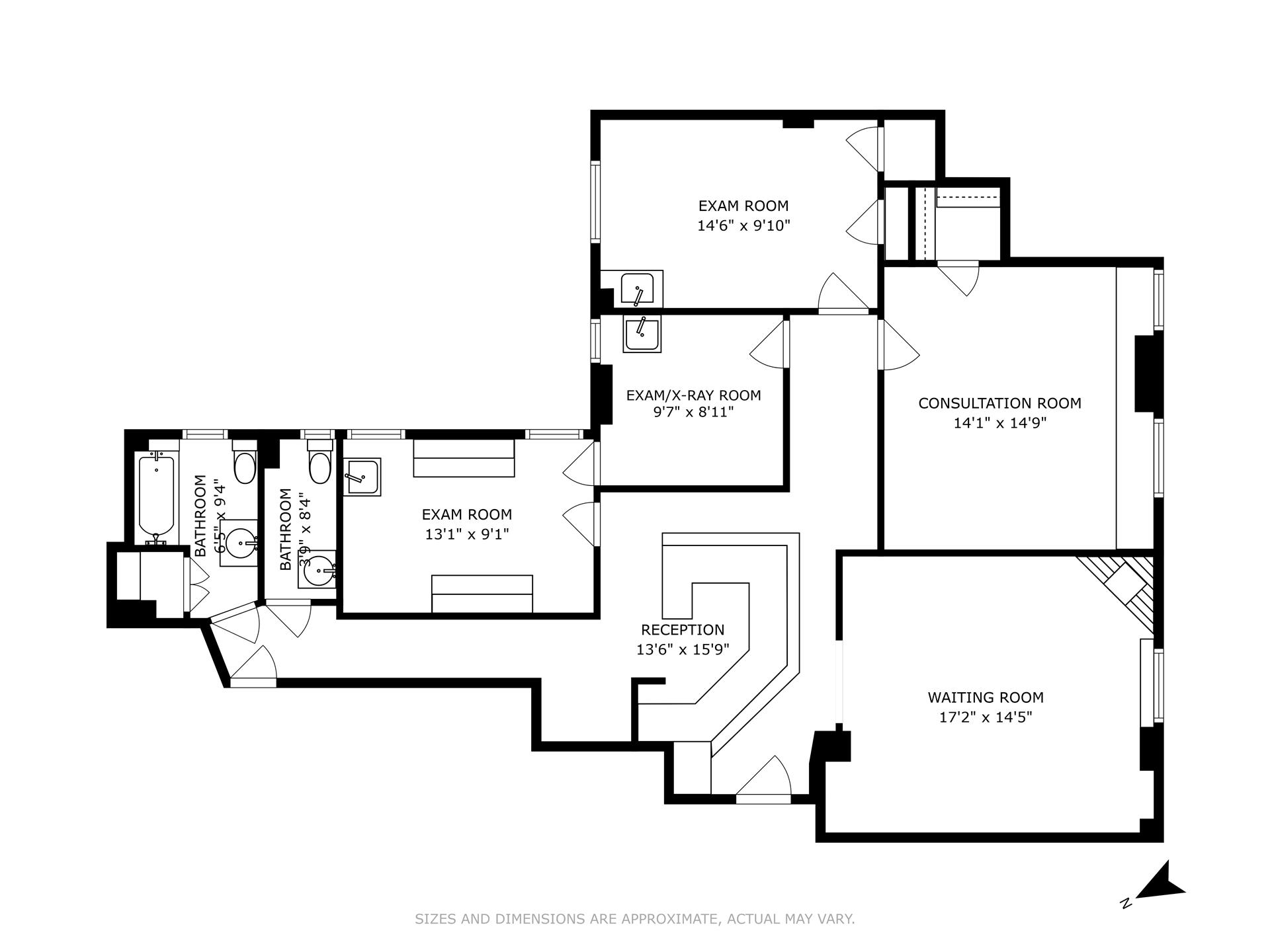
エレガントなホワイトグローブの共同住宅 - 住居または医療オフィスに最適です。元々は上品なアパートとして建設されましたが、現在は広い受付エリア、大きな待合室、非常に広い相談室、シンク付きの大きな診察室が3つ、トイレが2つの医療オフィスとして使用されています。天井高は10フィートで、中央空調、暖炉、地下には大きな専用収納ユニットがあります。ロビーからの入口があり、追加のセキュリティが提供されています。45 E 62は、気配りの行き届いたスタッフがいるフルサービスのプレウォー共同住宅で、ペット可です。マディソン街とパーク街の間にある素晴らしい立地で、アッパーイーストサイドやミッドタウン、すべての交通機関へのアクセスが容易で、博物館やギャラリー、優れたレストラン、高級ショップ、素晴らしいホテルまで数歩の距離です。
オーナーは非常に売却を望んでいます!ぜひご覧いただき、オファーをお寄せください!!すべてのオファーを検討します。
Elegant white-glove co-op - perfect for Residence or Medical Office. Originally built as a gracious apartment, it was currently used as a Medical Office with a large reception area, huge waiting room, very large consultation room, 3 sizable exam rooms, each with a sink, and 2 bathrooms. There are 10' ceilings, central air conditioning, a working fireplace, and a large dedicated storage unit in the basement. Entrance is through the lobby, providing an added layer of security. 45 E 62 is a full service pre-war co-op with an attentive staff and is pet friendly. Wonderful location between Madison and Park Avenues, it is easily accessible to Upper East Side and Midtown and all forms of transportation, and is steps from museums and galleries, excellent restaurants, high-end shops and fine hotels.
Owner is very eager to sell! Take a look and make an offer!! All offers considered.
This information is not verified for authenticity or accuracy and is not guaranteed and may not reflect all real estate activity in the market. ©2025 The Real Estate Board of New York, Inc., All rights reserved.







