| ID # | RLS11013853 |
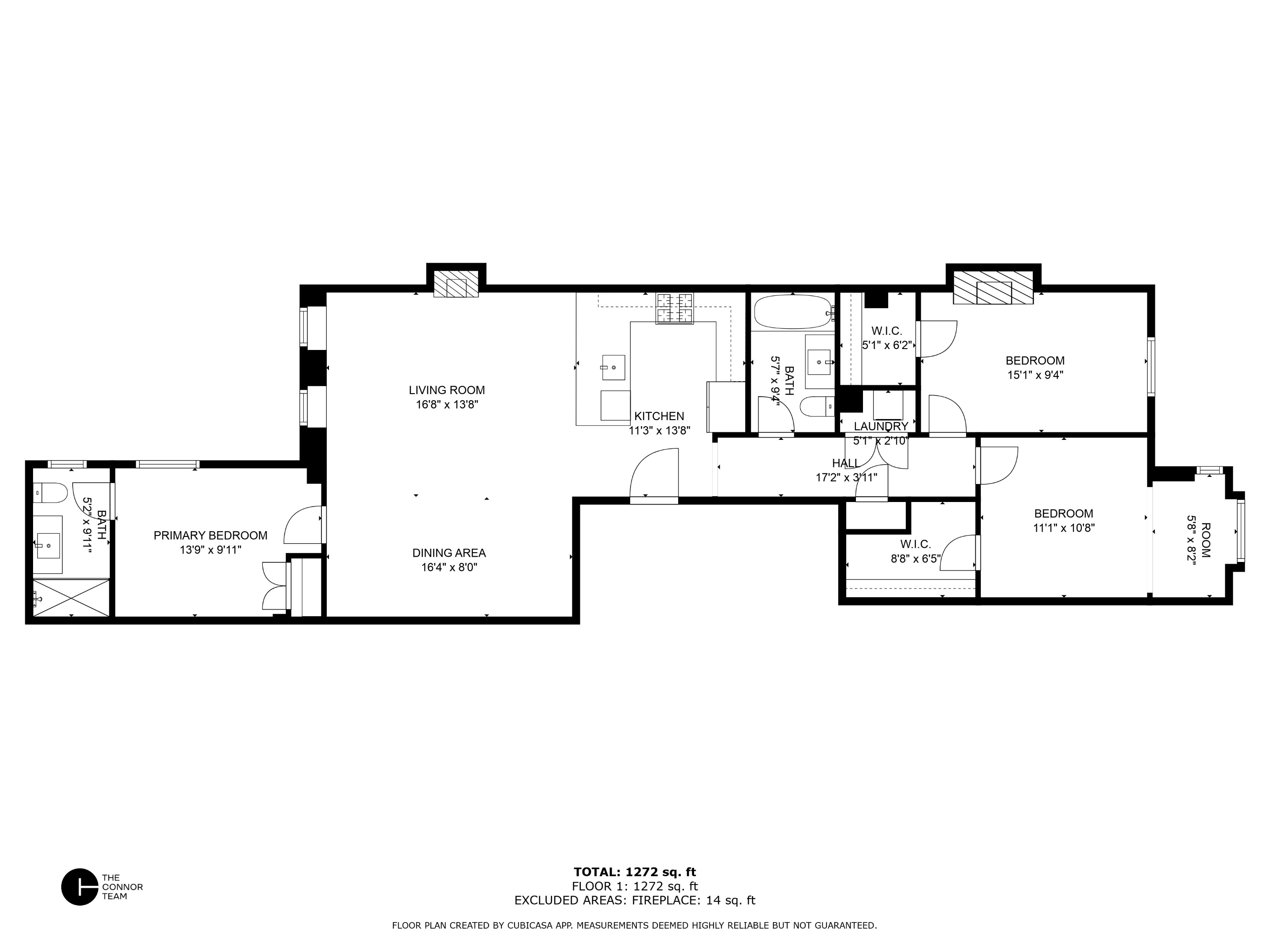
| 物件の詳細 | 12 寝室, 11 バスルーム, 洗濯機, 乾燥機, 内装: 7330 ft2, 681m2 |
| 建築年 | 1900 |
| 税金(年間) | $70,464 |
| 地下鉄 | 4 分: B, C |
| 5 分: 1 | |
| 10 分: 2, 3 | |
![]() |
1892年に著名な建築事務所ネヴィル&バッゲによって建設されたこの7,300平方フィート、幅22フィートから25フィートの改装済みの家は、収入を得る所有者/利用者または投資購入者を待っています。110 West 81st Streetは、自然史博物館の向かいにあるランドマークの並木道沿いに位置しています。現在、6戸の住居として構成されており、所有者のデュプレックス、フロアスルーの3ベッドルーム、3つの1ベッドルームユニット、最上階に2ベッドルームがあります。
見事に改装された所有者ユニット(デュプレックス + 一部完成した地下室)は、カスタムペイントされた木製キャビネット、グリドル付きのWolfプロフェッショナル6バーナーコンロ、パネル前面のSubzero冷蔵庫、そして大理石のカウンタートップを備えた特注シェフのキッチンでお迎えします。キッチンは、大胆に修復されたオリジナルトリムやモールディング、暖炉を特徴とするグレートルームへと流れ込み、19世紀のタウンホームの壮大さと現代の快適さを見事に融合させています。不規則なサイズの敷地(前面22フィート、敷地の裏側25フィート)は、グレートルームの20フィート以上の内部寸法を可能にし、標準的なタウンホームのレイアウトからのデザインの自由度を与えます。パーラー階にはスレート舗装された造園された裏庭に下りるドアがあります。また、パーラー階には2つのキングサイズの寝室があり、1つは専用バスルーム付き、もう1つは廊下のバスルームがあります。下の階にはプライマリスイートに加えて、専用バスルーム付きの2つの寝室があります。すべての部屋には中央空調が設置されています。
3階には、ユニット内洗濯機/乾燥機、中央暖房&空調を備えた完全に改装された3ベッドルーム/2バスルームの家があります。
4階には2つの1ベッドルームユニットがあり、裏のユニットは庭の景色が見える完全に改装されたもので、前のユニットには家賃が安定したテナントが入居しています。
5階には1つの1ベッドルームユニットと2つのベッドルームユニットがあります。前面向きの1ベッドルームユニットは、ランドマークの通りを見渡す魅力的な景色が楽しめ、完全に改装されています。裏の2ベッドルームユニットは家賃が安定したテナントが入居しています。
約3,000平方フィートの所有者ユニットがあり、著しい上昇と収入の可能性を持つユニークな機会です。
Built in 1892 by famed architecture firm Neville and Bagge, this 7,300sf 22 to 25ft wide renovated home is waiting for an owner / user with income, or investment purchaser. 110 West 81st Street is located on a landmark, treelined block across from the Museum of Natural History. It is currently configured as a 6 family home with owners duplex, floor-thru three bedroom, three one bedroom units and a top floor two bedroom.
The stunningly renovated owners' unit (duplex + partially finished cellar) greets you with a bespoke chef's kitchen with custom painted wood cabinetry, Wolf professional 6 burner range with griddle, panel front Subzero refrigerator and marble countertops. The kitchen flows into the great room featuring masterfully restored original trim & moldings and fireplace, weaving together the best of modern comfort with the grandeur of 19th century townhome life. The irregular sized lot (22' at front, 25' at back of lot) allows for a 20'+ interior dimension of the great room, giving design freedom from the standard townhome layout. There is a door on the parlor level leading down to the slate paved & landscaped backyard. Additionally on the parlor level are two king sized bedrooms, one with en suite bath and the other a hallway bathroom. The lower level features two bedrooms with en suite bathrooms in addition to the primary suite with custom steam shower, separate marble topped vanities, custom fitted walk in closet and access to the rear yard. Zoned central air conditioning throughout.
The third floor features a fully renovated three bedroom / two bathroom home with in unit washer / dryer, central heat & AC.
The fourth floor features two one bedroom units, the rear unit is fully renovated with garden views, the front unit has a rent stabilized tenant in place.
The fifth floor features a one bedroom unit and a two bedroom unit. The front facing one bedroom unit features charming views up and down the landmark block and has been fully renovated, the rear two bedroom unit has a rent stabilized tenant in place.
A unique opportunity for an approx. 3,000sf owner unit with significant upside and income.
This information is not verified for authenticity or accuracy and is not guaranteed and may not reflect all real estate activity in the market. ©2025 The Real Estate Board of New York, Inc., All rights reserved.







