| MLS # | L3593152 |
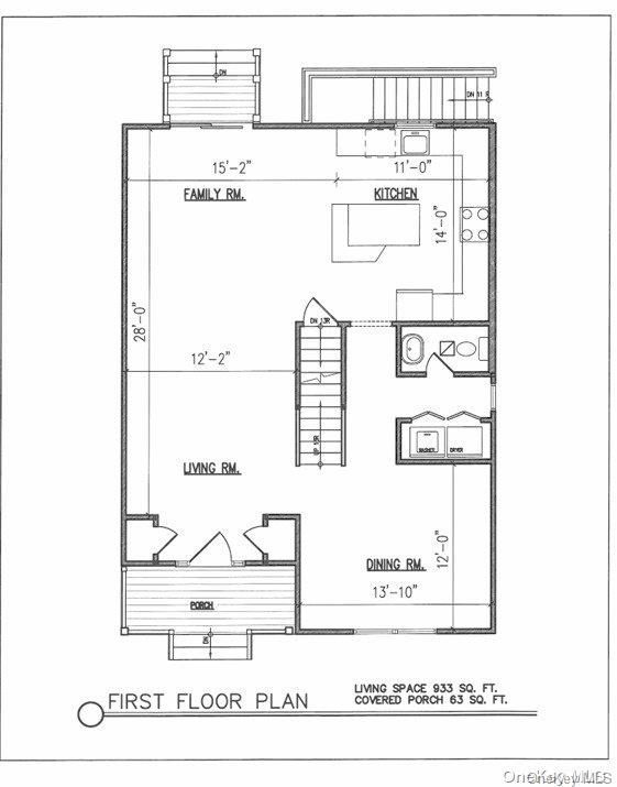
| 物件の詳細 | 1 家族, 3 寝室, 2 バスルーム, 1 ハーフバス, 食器洗い機, 洗濯機, ガレージ, エアコン, 外装: 0.27 エーカー, 内装: 1732 ft2, 161m2 |
| 建築年 | 2025 |
| 燃料の種類 | 天然ガス Gas |
| 暖房タイプ | 温水 Hot water |
| エアコン | セントラルエアコン Central Air |
| 地下室 | 全面地下室 Full basement |
| ガレージタイプ | ビルトイン Attached |
| LIRR | 3 マイル: "Medford" |
| 3.6 マイル: "Yaphank" | |
![]() |
© 2025 OneKey™ MLS, LLC







