Wurtsboro

商業物件の販売 COMM

住所: ‎544 Wurtsboro Mountain Road

郵便番号: 12790

分享到

$35万

約5千万円

ID # 11399296

日本語 Japanese 🇯🇵

                                                 

Are you the listing agent? Sign up to add your name and cell #


ID #‎ 11399296
建築年
Construction Year
1950
税金(年間)
Taxes
(per year)
$4,718
地下室
Basement
全面地下室 Full basement
ガレージタイプ
Garage Type
ビルトイン Attached
English Webpage
Broker Link

Are you the listing agent? Sign up to add your name/photo/cell to your flyers. helpdesk@Samaki.com

房屋英文概況 English Description

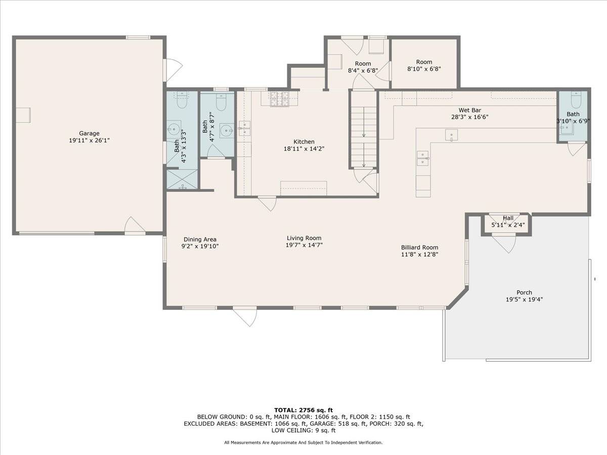
What an opportunity to own your own business! You can live and work in this fabulous property! The Sullivan House was a successful bar and grill offering local craft beers, specialty cocktails and delicious burgers and wings! This property has a long history as the old Froggy's Hunting Lodge Bar & Grill which was open for 42 years! Sitting right off exit 112 in Wurtsboro, there is easy access to Sullivan and Orange Counties via Route 17/86. The living area upstairs includes 6 rooms, 1 full bathroom and a washer/dryer hookup. The fully equipped kitchen includes a pizza oven, deep fryer, upright freezer, walk in fridge and commercial gas range. New electrical panel and upgraded service as of February 2022. Attached one car garage for storage in addition to the full basement with exterior access and walk up attic. Located in the Neighborhood Residential zone of Mamakating, there are a number of possible uses including a single family detached dwelling,a 2 family dwelling, a restaurant, hotel or motel, art gallery, gift shop or retail convenience use. Don't miss out on this one! Call today!

Courtesy of KELLER WILLIAMS REALTY

公司: ‍845-344-2800




分享 Share

$35万

商業物件の販売 COMM
ID # 11399296
‎544 Wurtsboro Mountain Road
Wurtsboro, NY 12790


Listing Agent(s):‎
Are you the listing agent? Sign up to add your name and cell #‎

Office: ‍845-344-2800

请说您在SAMAKI.COM看此广告

请也给我ID # 11399296