| ID # | 810463 |
| 建築年 | 2025 |
| 税金(年間) | $4,677 |
![]() |
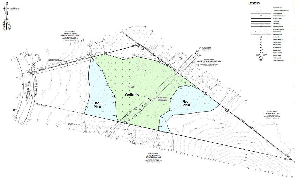
商業用地、6,300平方フィート(70x90)の商業ビル建設が承認されました。約1エーカーの利用可能な土地が、人気のウォルキルコーポレートパークにあります。クリスタルランロードのすぐ近くで、高速道路へのアクセスも便利です。ハドソンヘリテージ連邦信用組合、クリスタルランヘルスケア、P&Oアソシエイツ、オンマイウェイラーニングセンター、ブレイマーヘルスアシスト、バックインバランスフィジカルセラピー、ホライズンサージカルグループなどと同じエリアに加わりましょう!優れたオフィスロケーションです。市営水道、下水道、天然ガスがすべて敷地内にあります。合計面積は4.6エーカーです。
Commercial site approved to build a 6,300 sqft (70x90) commercial building. Approximately 1 useable acre located in sought after Wallkill Corporate Park. Just off Crystal Run Road with highway accessibility nearby. Join Hudson Heritage Federal Credit Union, Crystal Run Healthcare, P&O Associates, On My Way Learning Center, Braemar Assisted Living, Back in Balance Physical Therapy, Horizon Surgical Group, and more! Excellent office location. Municipal Water, Sewer, and natural gas are all to the site. Total parcel 4.6 acres. © 2025 OneKey™ MLS, LLC







