| MLS # | 812676 |
| 物件の詳細 | 6 寝室, 6 バスルーム, 1 ハーフバス, 食器洗い機, 洗濯機, 乾燥機, ガレージ, エアコン, 内装: 6200 ft2, 576m2 (DOM): 294 days |
| 建築年 | 2025 |
| 燃料の種類 | 天然ガス Gas |
| エアコン | セントラルエアコン Central Air |
| 地下室 | 全面地下室 Full basement |
| LIRR | 2.1 マイル: "Deer Park" |
| 2.4 マイル: "Wyandanch" | |
![]() |
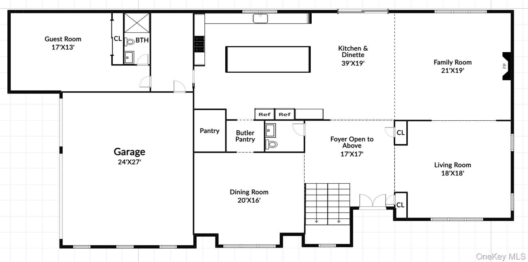
ティジアナエステートの名誉あるロット2へようこそ。ここにはアポロモデルがあり、7,000平方フィートの職人技とデザインの傑作です。この家は、リビングスペースに9フィートの天井、鋼製Iビームを使用した10フィートの地下室天井を備え、多様な仕上げを実現しています。優雅さと機能性のシームレスな融合が特徴です。
家の中心には、サーマドールの家電、プレミアムクォーツのカウンタートップ、カスタムキャビネットを備えた高級カスタムキッチンがあります。すべてのベッドルームには、コーラーのアンセムとピュアリストの設備が整った専用バスルームがあり、リビングルームには居心地の良いガス暖炉があります。
エネルギー効率の良い機能には、コンビ・ナビアンボイラー、熱水循環暖房、スプレーフォーム断熱材、アンダーソン400シリーズの窓が含まれています。外観はジェームズハーディのサイディング、カルチャードストーンのアクセント、GAFのシングルで輝いています。
ティジアナエステートでは、バイヤーは仕上げや詳細をカスタマイズして理想の家を作ることができます。この特別な機会をお見逃しなく—ぜひツアーを予約してください!
Welcome to Lot 2 in the prestigious Tiziana Estates, featuring the Apollo model—a 7,000 sqft masterpiece of craftsmanship and design. This home offers 9’ ceilings in living spaces, a 10’ basement ceiling with steel I-beams for versatile finishes, and a seamless blend of elegance and functionality.
The heart of the home is a high-end custom kitchen with Thermador appliances, premium quartz countertops, and custom cabinetry. All bedrooms feature en-suite bathrooms with Kohler Anthem and Purist fixtures, while the living room boasts a cozy gas fireplace.
Energy-efficient features include a Combi Navian Boiler, hydronic forced hot air, spray foam insulation, and Andersen 400 Series windows—the exterior dazzles with James Hardie siding, cultured stone accents, and GAF shingles.
At Tiziana Estates, buyers can customize finishes and details to create their dream home. Don’t miss this exceptional opportunity—schedule your tour today! © 2025 OneKey™ MLS, LLC







