| MLS # | 818768 |
| 物件の詳細 | 4 寝室, 4 バスルーム, 1 ハーフバス, 食器洗い機, 洗濯機, 乾燥機, ガレージ, エアコン, 外装: 0.34 エーカー, 内装: 4433 ft2, 412m2 (DOM): 270 days |
| 建築年 | 2025 |
| 税金(年間) | $2,322 |
| エアコン | セントラルエアコン Central Air |
| LIRR | 0.7 マイル: "Greenvale" |
| 0.9 マイル: "Glen Head" | |
![]() |
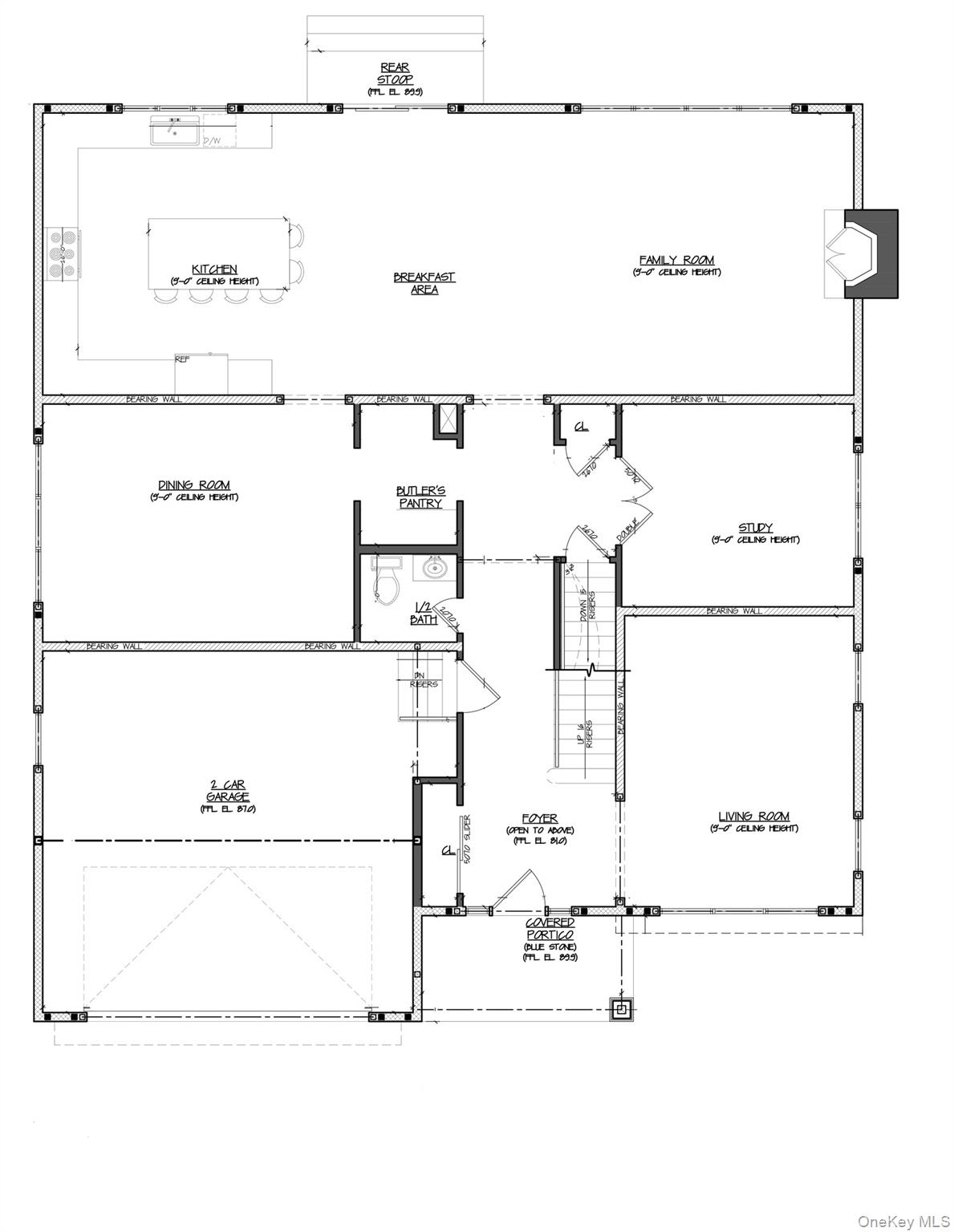
エレガンスと現代的な快適さの完璧な融合を発見してください。この素晴らしい新築モダンファームハウスコロニアルは、エンジニアズゴルフコースに隣接する独占的な通りに位置しています。息を呑むようなゴルフコースの景色を誇るこの入念に設計された家は、各自専用のバスルームを備えた4つの広々とした寝室を提供し、すべての人にプライバシーと便利さを確保しています。
豪華なプライマリー・スイートは、大きなウォークインシャワー、浸かるためのバスタブ、デュアルバニティ、広いウォークインクローゼットを備えたスパのような隠れ家です。手軽にエンターテイニングできるように設計されたオープンコンセプトのレイアウトは、シェフズキッチン、朝食エリア、居間と心地よい暖炉でつながっています。キッチンは大きなアイランド、最高級の家電、文化石のカウンタートップを備えた料理の名作です。さらに、メインフロアの特徴には、全体に広がるオークフロア、正式なダイニングルーム、バトラーパントリー、リビングルーム、スタディ、パウダールーム、二台分のガレージがあります。
2階には便利さを増すためのランドリールームがあります。家全体は1階に9フィートの天井、2階に8フィートの天井があり、スペースと光の感覚を高めています。未完成の地下室は9フィートの天井を備え、カスタマイズのための無限の可能性を提供します。
外に出ると、プロフェッショナルにランドスケープされた庭に設定された地面レベルの裏庭のパティオがあり、屋外の集まりに最適です。この優れた新築住宅で比類のない景色と一等の立地を楽しむ贅沢な生活を体験してください。
現在の税金は土地評価のみを反映しています。建設開始の許可を待っているため、間取りの変更は受け付けられないことにご注意ください。
Discover the perfect blend of elegance and modern comfort in this stunning new construction Modern Farmhouse Colonial situated on an exclusive street adjacent to Engineer’s Golf Course. Boasting breathtaking golf course views, this meticulously designed home offers 4 spacious bedrooms, each with its own en-suite bathroom, ensuring privacy and convenience for all.
The luxurious primary suite features a spa-like retreat with a large walk-in shower, soaking tub, dual vanities, and large walk-in closets. Designed for effortless entertaining, the open-concept layout seamlessly connects the chef’s kitchen, breakfast area, and family room with a cozy fireplace. The kitchen is a culinary masterpiece, complete with a large island, top-of-the-line appliances, and cultured stone countertops. Additional main-level highlights include oak floors throughout, a formal dining room, butler’s pantry, living room, study, powder room and a two-car garage.
Upstairs, you’ll find a second-floor laundry room for added convenience. The home boasts 9-foot ceilings on the first floor and 8-foot ceilings on the second, enhancing the sense of space and light. The unfinished basement with 9-foot ceilings offers endless potential for customization.
Step outside to the on-grade rear patio, set within a professionally landscaped yard, perfect for outdoor gatherings.
Experience luxury living at its finest in this exceptional new construction home with unrivaled views and a premier location.
Existing taxes reflect land evaluation only. Please note that we are awaiting permits to begin construction, and no changes to the floor plans can be accommodated. © 2025 OneKey™ MLS, LLC







