| ID # | 827519 |
| 建築年 | 1900 |
| 税金(年間) | $18,757 |
| 暖房タイプ | 温風 Hot air |
| エアコン | セントラルエアコン Central Air |
![]() |
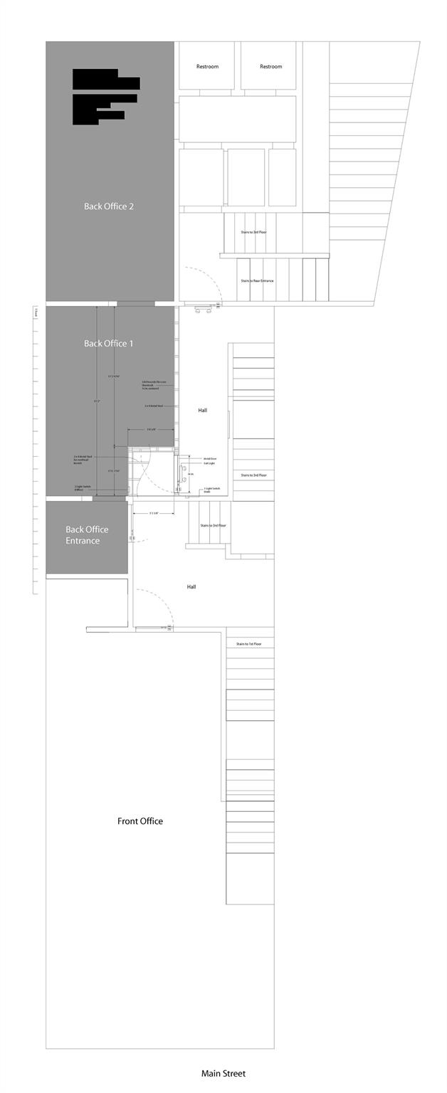
月額825ドルのレンタル! - ビレッジセンター
歴史的なメインストリートにある広々とした2階のオフィス/ビジネススペースには、ビルトインの棚とデスクがあります。 電気、暖房、中央空調が更新されています。 裏打ちされたレンガと高い天井! 鉄道、ショップ、郵便局、ウォーターフロントに近いです。 月額800ドル+追加料金としてCAMが月50ドル、清掃料金が月50ドルです。 追加情報:共通のユーティリティが利用可能です:冷却、暖房、照明、
Read the English version or choose another language







