| ID # | RLS20005262 |
| 物件の詳細 | 6 寝室, 内装: 4850 ft2, 451m2 (DOM): 250 days |
| 建築年 | 1907 |
| 税金(年間) | $15,912 |
| 地下鉄 | 5 分: 1 |
| 6 分: A, C, B, D | |
![]() |
市場に戻ってきました!
驚くべき希少な歴史的ハミルトンハイツ タウンハウス!
優れた収入が得られ、賃貸と物件の価値の両方において素晴らしい成長の可能性があります - すべてフリーマーケットです!
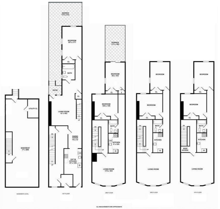
この魅力的なマルチファミリーホームには、最近2007年と2008年に改装された4つのフリーマーケットの空室アパートがあります。建物の敷地面積は18フィート × 100フィートです。
現在は優れた収入を得ている賃貸物件で、改装すれば家賃はさらに上昇するでしょう。
ユニット#1は庭へのアクセスと屋外テラスを備えた丁寧に設計された2ベッドのデュプレックスです。
ユニット#2は、魅力的な暖炉とマントルが残っているなど、多くのオリジナルのディテールが intact なクラシックな1ベッドルームです。
ユニット#3とユニット#4は、ユニット#2と同様に、オリジナルの歴史的なディテールが多く残る、同じフロアにある2ベッドルームの物件です。
すべてのユニットの推定収入はリクエストに応じて提供され、さらなる改装が行われる可能性があります。
ハミルトンハイツの中心に位置するこの歴史的タウンハウスは、シティカレッジからわずか1ブロックの距離にあり、リバーサイドパークまでの短い距離です。A、B、C、D、1線の近くにあります。
BACK TO MARKET!
Amazing RARE Own Historic Hamilton Heights Townhouse!
Great income with amazing potential for appreciation both in rents and value of the property-ALL FREE MARKET!
This delightful multi-family home has four free-market and vacant apartments, which were recently renovated in 2007 and 2008. The building lot size is 18 ft. × 100 ft.
Currently rented out with GREAT incomes; with renovations rents would be even higher.
Unit #1 is a thoughtfully designed 2 bed duplex home with garden access and an outdoor terrace.
Unit #2 is a classic 1 bed with much of the original detailing intact, including a charming fireplace and mantle.
Unit #3 and Unit #4 are identical floor-through 2 bedroom homes, which like Unit #2, have much of the original historic detailing in place.
Estimated income for all units upon request, with the potential for further renovations are made to the space
Located in the heart of Hamilton Heights, this landmarked townhouse is only one block from City College and a short walk to Riverside Park. Close to the A, B, C, D and 1 trains.
This information is not verified for authenticity or accuracy and is not guaranteed and may not reflect all real estate activity in the market. ©2025 The Real Estate Board of New York, Inc., All rights reserved.







