| ID # | 811617 |
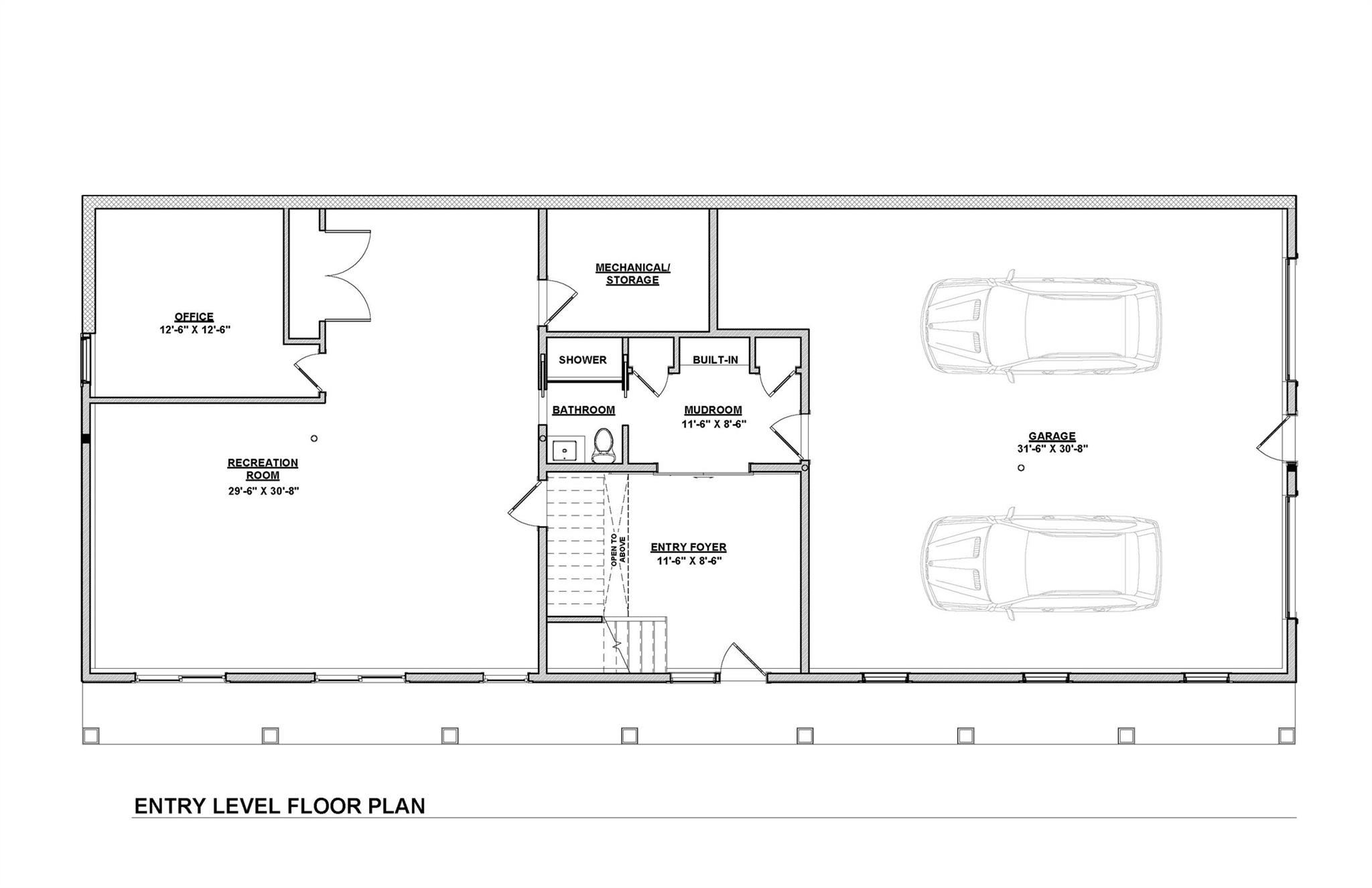
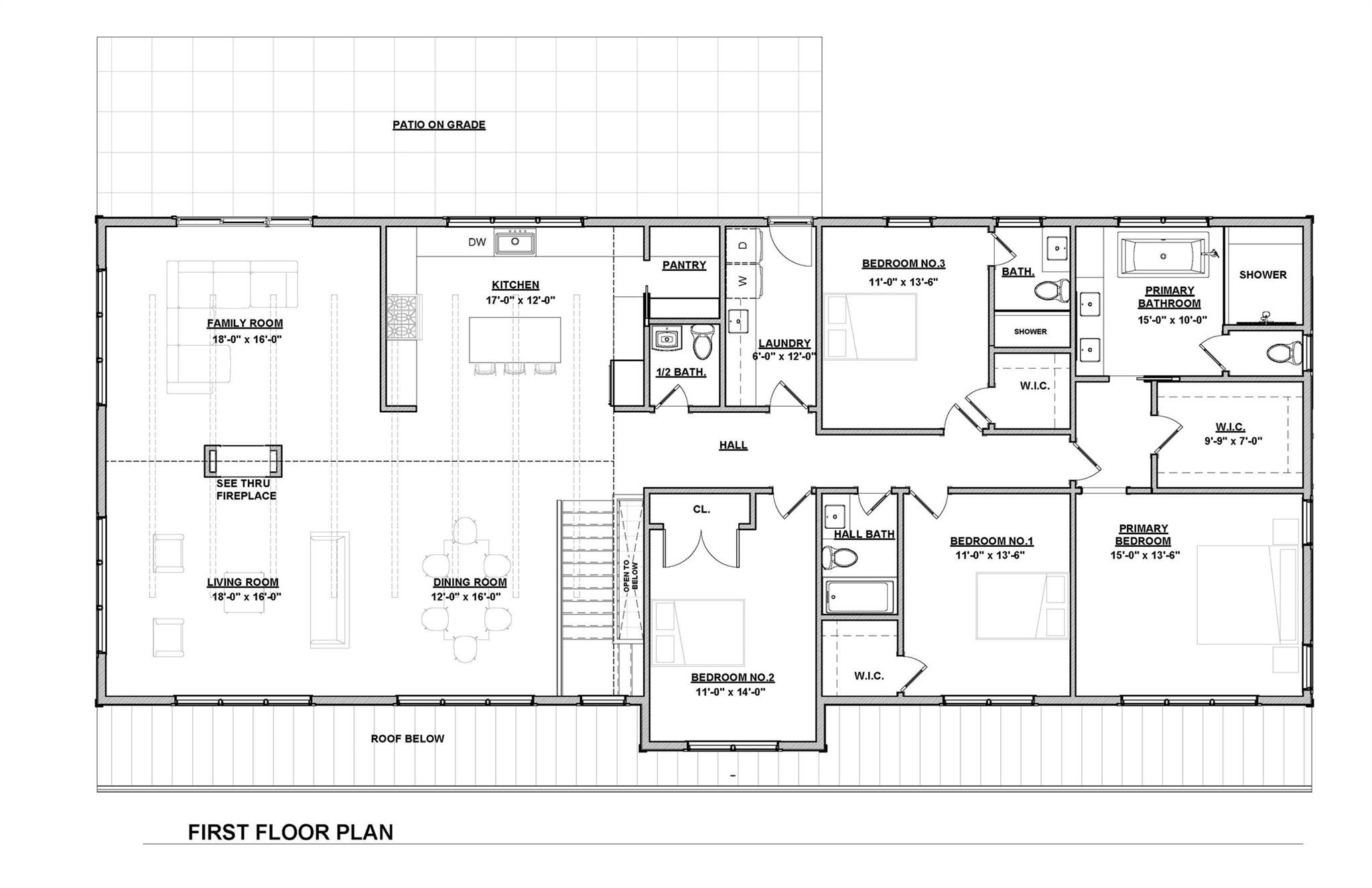
| 物件の詳細 | 4 寝室, 4 バスルーム, 1 ハーフバス, 食器洗い機, 洗濯機, ガレージ, エアコン, 外装: 5 エーカー, 内装: 3200 ft2, 297m2 (DOM): 238 days |
| 建築年 | 2025 |
| 税金(年間) | $7,133 |
| 暖房タイプ | 温風 Hot air |
| エアコン | セントラルエアコン Central Air |
| 地下室 | 部分地下室 Partial |
![]() |
新築の4ベッドルーム、4.5バスルームの家が5エーカーの敷地にあります。この機会を逃さず、夢の家をカスタマイズしてください。この家は、エンターテイメントに最適な広いキッチンを備えたオープンフロアプランが特徴です。メインリビングエリアには、むき出しの梁と高い天井があります。主寝室には大きなウォークインクローゼットと専用バスルームがあります。また、専用バスルーム付きのジュニアスイートもあります。詳細については添付の間取り図をご覧ください。素晴らしい立地で、ポーリングの町、駅、ダイニングなどに近いです!表示されている写真は、むき出しの梁などのスタイルを示すために以前の新築物件からのものです。
New construction 4 bedroom, 4.5 bathroom home on 5 acres. Don't miss this opportunity to customize your dream home. This home features a open floor plan with large kitchen, perfect for entertaining. The main living area has exposed beams and high ceilings. The primary bedroom has large walk in closet and ensuite. There is also a junior suite with ensuite. See attached floor plans for full detail. Great location, close to town of pawling, train station, dining and more! Pictures shown are from previous new builds to show style of home with exposed beams, etc. © 2025 OneKey™ MLS, LLC







