| ID # | RLS20009575 |
| 物件の詳細 | 6 寝室, 6 バスルーム, 2 ハーフバス, 内装: 6901 ft2, 641m2 (DOM): 273 days |
| 建築年 | 1910 |
| 税金(年間) | $56,964 |
| 地下鉄 | 3 分: 6 |
| 4 分: E, M | |
| 8 分: 7, 4, 5 | |
| 10 分: S | |
![]() |
バウハウス・モダニズムの傑作…
建設されて以来2度目の市場登場。1936年3月号の「アーキテクチャーフォーラム」で新築時に特集された歴史的モリス・サンダースハウスの proudな新しいオーナーになってください。この家は、バウハウス運動とモダニズム運動をつなぐ数少ない現存する構造物の一つです。
全てのオリジナル詳細が intactで、約6,900平方フィート、6階建ての家には庭、屋上テラス、フルベースメント(平方フィートには含まれていません)があり、愛情を込めて復元されるのを待っています。物件に隣接するのは、歴史的な公共庭園アムスター・ヤード(18世紀のイースタン・ポスト・ロードにおけるボストン・ステージコーチの終点だったと言われています)。
エンドユーザー(賃貸収入を考える人)、領事館、財団、またはファミリーオフィスに最適です。
以下の元の設計に復元するか、必要に応じて再構成してください。
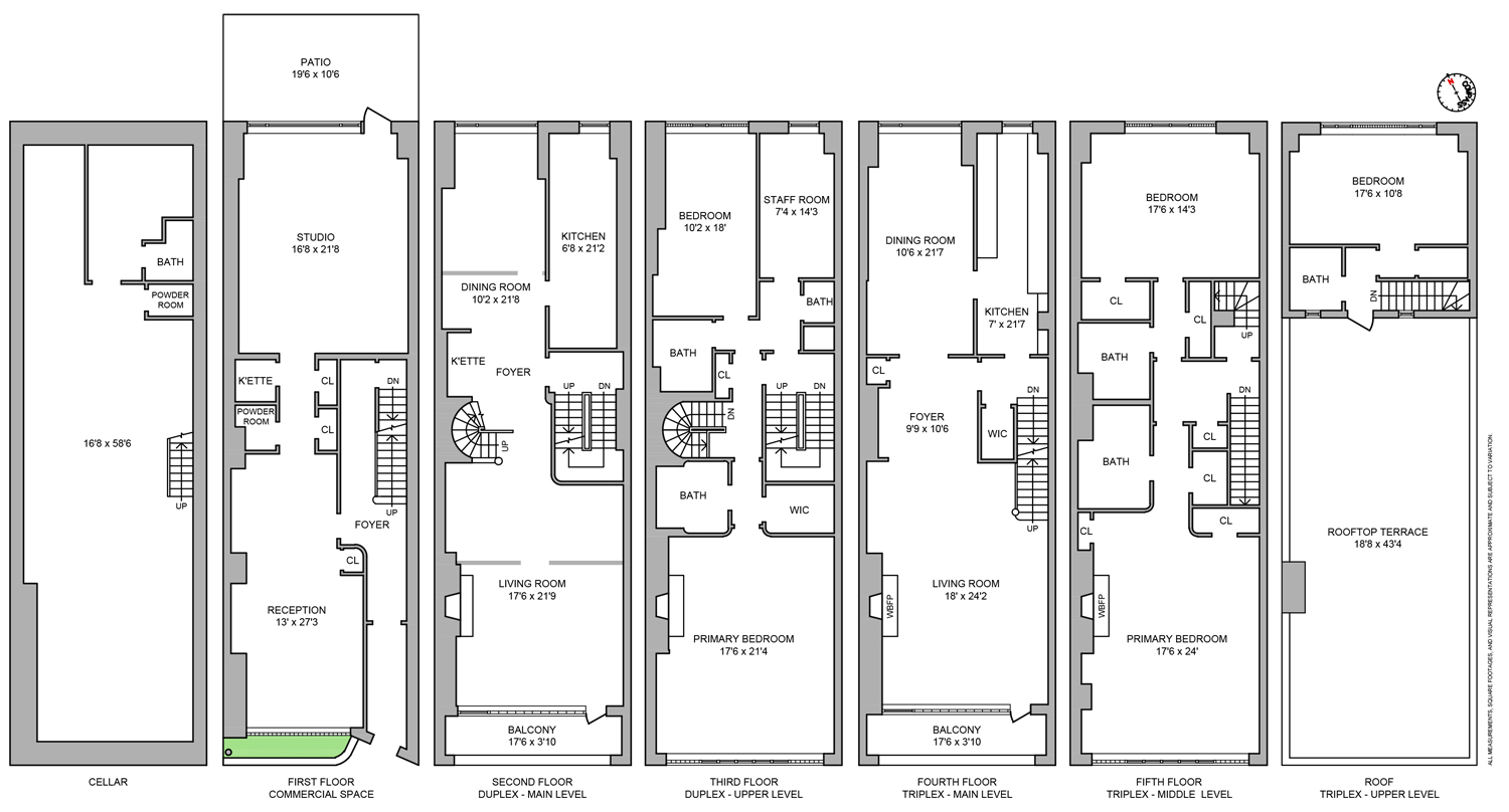
1階: デザインルームとプライベートガーデンを持つオフィス。
2階および3階: リビングルーム、ダイニングルーム、キッチン、3つのベッドルーム、2つのバスルーム、2つの暖炉、十分なクローゼットスペースからなるデュプレックスアパート。
4階、5階、6階: リビングルーム、ダイニングルーム、キッチン、3つのベッドルーム、3つのバスルーム、2つの暖炉、十分なクローゼットスペース、プライベート屋上テラスからなるトリプレックスアパート。
歴史的なオードリー・ヘプバーンブロックに位置し、この家々は元々アーティスト、ファッションデザイナー、俳優に所有されていました。現在、ペルーとウクライナの領事館、そして広大なセルバンテス研究所がこのブロックにあります。
目的地のランドマーク(国連や新しく復元されたウォルドルフ・アストリアを含む)や主要な交通機関(グランドセントラルターミナルを含む)に近いです。
Bahaus-Moderne Masterpiece…
Only the second time on the market since it was built, be the proud new owner of the historic Morris Sanders House featured in the March 1936 edition of "Architecture Forum" when newly built. This home is one of the few surviving structures that bridge the Bauhaus and Moderne movements.
All original details are intact and await to be lovingly restored in this nearly 6,900/sf, 6-story home with a garden, roof terrace, and full basement (not included in the square footage). Abutting the property is the historic public garden Amster Yard (said to have been the terminal stop of the Boston Stage Coach on the Eastern Post Road in the 18th Century).
Ideal for an end-user (who may want rental income), consulate, foundation, or a family office.
Restore to the original setup below or reconfigure as needed.
First Floor: Office with design room and private garden.
Second and Third Floor: Duplex apartment consisting of living room, dining room, kitchen, 3 bedrooms, 2 baths, 2 fireplaces, and ample closet space.
Fourth, Fifth, and Sixth Floors Triplex apartment consisting of living room, dining room, kitchen, 3 bedrooms, 3 baths, 2 fireplaces, ample closet space, and private roof terrace.
Located on the historic Audrey Hepburn block, the homes were originally owned by artists, fashion designers, and actors. Currently, the consulates of Peru and Ukraine are on the block as well as the expansive Instituto Cervantes.
Close to destination landmarks (including the United Nations and newly restored Waldorf Astoria) and all major transportation (including Grand Central Terminal).
This information is not verified for authenticity or accuracy and is not guaranteed and may not reflect all real estate activity in the market. ©2025 The Real Estate Board of New York, Inc., All rights reserved.







