| ID # | RLS20007066 |
| 物件の詳細 | 4 寝室, 4 バスルーム, 1 ハーフバス (DOM): 241 days |
| 建築年 | 1899 |
| 税金(年間) | $83,400 |
| 地下鉄 | 1 分: F, Q |
| 3 分: N, W, R, 4, 5, 6 | |
| 10 分: E, M | |
![]() |
豪華な4階建てのレノックスヒルタウンハウスは、クラシックな戦前のディテールと優雅さを現代的な魅力と融合させた、完璧な改装が施された住まいです!マンハッタンの最も望ましく独占的な樹木に囲まれた通りの一つに位置し、1870年に建てられたこの宝石は、その歴史的な魅力を保ちながら、現代的なショープレイスとして生まれ変わっています。ゲート付きのランドスケープされた前入口は魅力を高め、到着時に歓迎します。
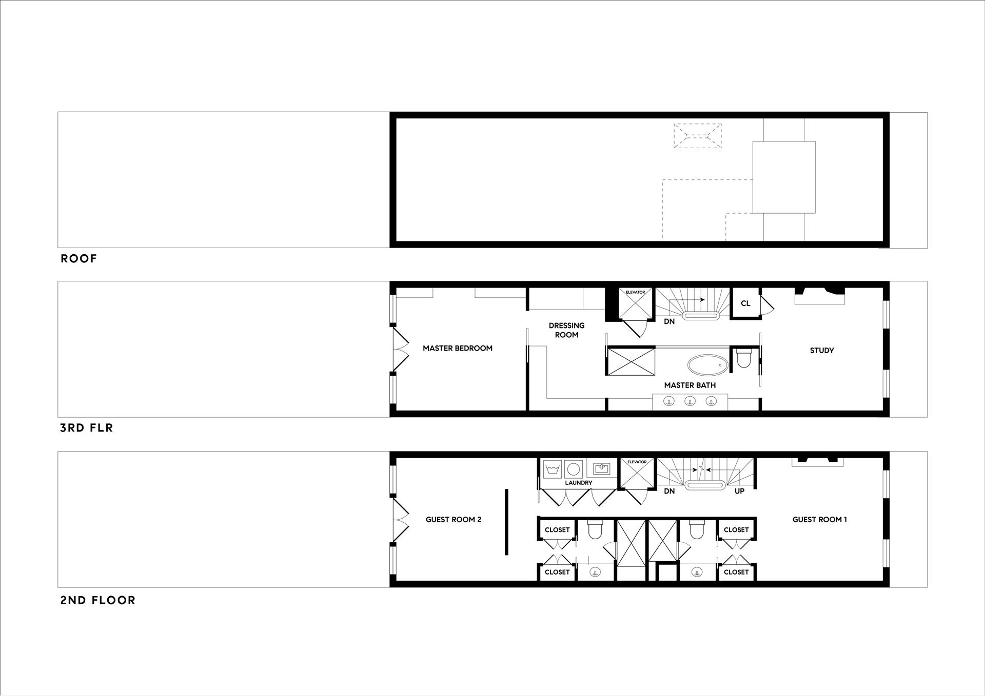
すべてのディテールが洗練され、完璧であり、壮大なエントリーホールから始まり、最大10名の友人や家族を収容できるダイニングルームへと入ると、最高の洗練さが感じられます。贅沢な1階には、カスタムのバルクチーネキャビネットの後ろに隠された最新のグルメキッチンが待ち構えており、絶妙なオニキスのカウンタートップが特徴です。ダブルオーブンとウォーミングドロワーはミーレ製で、ガスストーブ、冷蔵庫、冷凍庫およびワインストレージはガゲナウ製、ホストのためにはフィッシャー&ペイケル製の食器洗浄機が備わっています。シェフのキッチンは、屋外バーベキューやカクテルパーティー、アルフレスコダイニングを楽しむための素敵なプライベートランドスケープガーデンテラスへと開かれています。
階段とエレベーターでこの優雅な家のすべての階へ移動できます。2階には、作動する暖炉がある居心地の良い図書館とテラスを見渡せるガス暖炉のあるリビングルームがあります。また、隠されたオリジナルのバー/ダムウェイターもあり、ゲストにサービスを提供する素晴らしい要素です。3階には、洗練された現代的な白いタイルのバスルーム、シャワー、ドレッシングミラーがあるほぼ同じ2つのベッドルームがあり、フルサイズのGE製洗濯機と乾燥機、シンク、素敵な収納スペースを備えたランドリーもあります。
4階は素晴らしいプライマリーベッドルームスイートに割り当てられ、彼と彼女のドレッシングエリアと、カスタムレザーのワードローブ、ウェットバー、冷蔵庫、ガス暖炉を備えたプライベートオフィス/リビングルームがあります。非常に静かなベッドルームは、美しい庭と壮観な都市の景色を提供します。ビルトイン収納はすべてのスペースを巧みに利用し、カーテンの後ろに隠されています。プライマリー浴室は、デュアルシンクとスチームシャワー、リラックスできる浸かるバスタブを備えています。
この希少な住居を完成させるのは、ゲストベッドルームとフルバスルーム、キッチネットを備えたリビング/レクリエーションエリア、ワインセラー、トイレ、収納クローゼット、さらなるニーズのための別のストレージルームがある改装済みの仕上げられた地下室です。他のハイライトには、屋内全体にスピーカーを備えた最新のオーディオビジュアル設備や、快適さを最大限にするための中央暖房/冷房システムがあります。
何よりも、場所が最高で、駐車場が一軒隣にあり、マディソン・アベニューやフィフス・アベニューには高級レストランや高級小売店が数分の距離にあります。また、セントラルパーク、イーストリバーエスプラネード、エクイノックス、公共交通機関、その他の主要なアメニティも近くにあります。
Gorgeous 4-story Lenox Hill townhouse, blending classic prewar details and elegance with the contemporary allure resulting from a full, impeccable renovation! Situated on one of Manhattan's most desirable and exclusive tree-lined blocks, the 1870-built gem maintains its historic charm while reinvented as a modern showplace. A gated landscaped front entrance heightens curb appeal and welcomes you upon arrival.
Every detail is refined and immaculate, beginning with the grand entry hall that introduces you to utmost sophistication, in the dining room that can accommodate up to 10 members of your friends and family. Also on the luxurious first level awaits a stunning state-of-the-art gourmet kitchen, hidden behind custom Valcucine cabinetry and anchored by an exquisite onyx countertop. Double ovens and warming drawers are Miele, with gas stove, refrigerator, freezer and wine storage by Gaggeneau, and Fisher & Paykel dishwashers for the host. The chef's kitchen opens up into a lovely private landscaped garden terrace for enjoying outdoor barbecues, cocktail parties and alfresco dining.
Stairs and an elevator transport you to all levels of this gracious home. The second floor presents a cozy library with working fireplace, and living room with gas fireplace that overlooks the terrace. There's also a concealed original bar/dumbwaiter, a great element for serving guests. The third story is occupied by 2 almost identical bedrooms with sleek modern white tiled bathrooms with showers and dressing mirrors, as well as laundry featuring a full-size GE washer and dryer with a sink and nice storage area.
Level four is reserved for the fabulous primary bedroom suite with his and her dressing areas, and a private office/living room with custom leather wardrobe by Poliform, wet bar and fridge, plus a gas fireplace. The very quiet bedroom offers beautiful garden and spectacular city views. Built-in storage thoughtfully utilizes all the space and is tucked behind drapery. Your primary bath indulges with dual sinks, a steam shower and relaxing soaking tub.
Completing this rare residence is a renovated, finished basement with a guest bedroom and full bathroom, sitting/rec area with kitchenette, wine cellar, powder room, storage closets, and separate storage room for extra needs. Other highlights include state-of-the-art audio-visual with speakers throughout, and central heating/cooling for optimal comfort.
Best of all is the location, with a parking garage one door down, and fine restaurants and upscale retail on Madison and Fifth Aves mere minutes away. Also close by is Central Park, the East River Esplanade, Equinox, public transportation and other prime amenities.
This information is not verified for authenticity or accuracy and is not guaranteed and may not reflect all real estate activity in the market. ©2025 The Real Estate Board of New York, Inc., All rights reserved.







