| ID # | RLS20006501 |
| 物件の詳細 | The Potter Building 3 寝室, 2 バスルーム, 内装: 1600 ft2, 149m2 (DOM): 339 days |
| 建築年 | 1886 |
| 管理費 | $4,690 |
| 地下鉄 | 2 分: J, Z, A, C, R, W |
| 3 分: 2, 3, 4, 5, 6 | |
| 4 分: E | |
| 6 分: 1 | |
![]() |
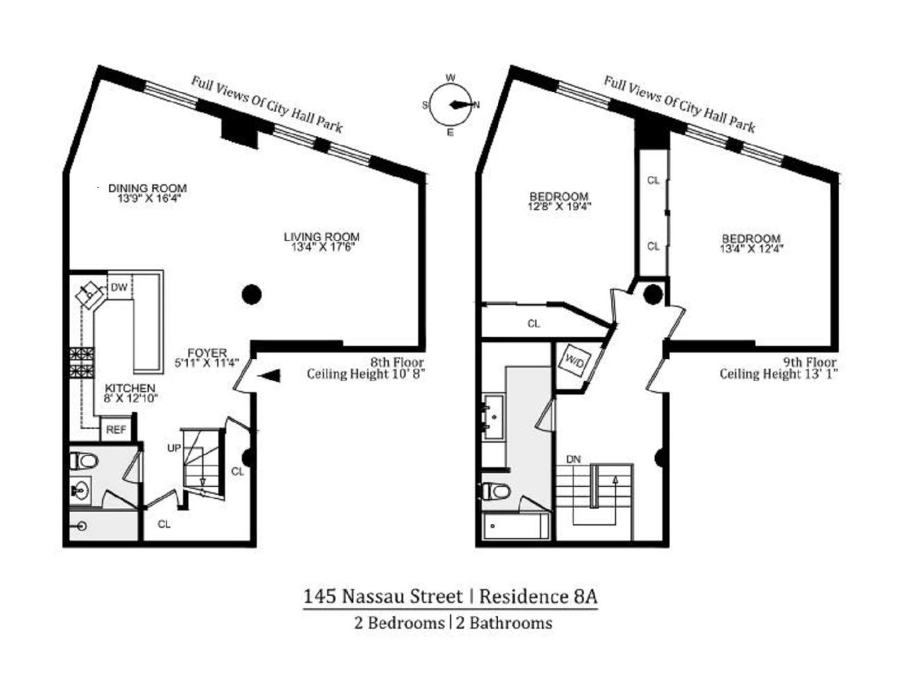
ポッター・ビル 145 ナッソー・ストリート、アパート 8A
ダウンタウン・マンハッタン 2-3 ベッドルーム デュプレックス 1,600 平方フィート シティホールパークのアイコニックな景色
広々とした、美しく装飾されたダウンタウンの家をお探しでしたら、ここでその探求は終了します。このビル名にふさわしいポッター・ビルのアパート 8Aは、約1,600平方フィートの空気感あふれる明るく、プライベートで、驚くほど静かな居住空間を提供しており、すべての窓からシティホールパークの妨げのない眺めを楽しめる稀なデュプレックスロフトです。現在、2ベッドルームの住居として構成されており、この家は驚くべき柔軟性を提供します:代替の間取りに示されているように、メインの下層階に3番目のベッドルームまたはホームオフィスを簡単に作成できます(理事会の承認が必要です)。
メインレベル
エントリーレベルでは、11フィートのビーム天井と、大きな公園とスカイラインのビューをフレームに持つ3つの大きな窓が定義する広々としたリビング・ダイニングエリアへと迎え入れられます。西向きの窓からは、一日中自然光が溢れ、温かく壮大な雰囲気を生み出します。この階には、ステンレス製の家電、磨かれた黒い花崗岩のカウンタートップ、カスタムの洋梨の木製キャビネット、そして新しいフローリングを備えたシェフ向けのキッチンがあります。最近改装されたフルバスルームと、階段の下に巧妙に統合された収納が美しさと機能性を提供し、この階を完成させています。
アッパーレベル
アッパーレベルに上がると、貴族的な13フィートの天井が、シティホールパークを見下ろす2つの広々としたベッドルームをいっそう引き立てています。主寝室のバスルームはスタイリッシュに改装され、広々としたカウンタースペースと収納スペースが豊富に備えられており、廊下にあるクローゼットには現代的な便利さのために洗濯機と乾燥機が収められています。
ビルの説明
1886年に建築家ノリス・G・スタークウェザーによって設計されたポッター・ビルは、ニューヨークで最も称賛されるクイーン・アン様式建築の一例であり、特徴的な赤レンガ、ブラウンストーン、テラコッタのファサードを持っています。1980年に共同住宅に改装され、1996年にランドマーク指定されたこの11階建て41ユニットのビルは、細心の注意を払って維持管理され、考えられた更新が施されています:
ロビーの改装(2010年)
エレベーターの交換(2012年)
窓の交換(2015年)
新しく整備された廊下と造園された屋上デッキ
住民は、注意深いオンサイトのスーパーバイザー、現代的なビデオ/キー用セキュリティシステム、そして壮観なスカイラインの景色を楽しめる共用の屋上デッキを享受しています。ビルはペットフレンドリーで、維持管理費は約67%が税控除可能です(会計士に相談してください)。
トライベッカ、金融街、シーポート地区、シティホールパークの交差点に完璧に位置しているポッター・ビルは、複数の地下鉄路線と主要な交通ハブへのアクセスを簡単にし、魅力的で便利な場所となっています。
Read the English version or choose another language
This information is not verified for authenticity or accuracy and is not guaranteed and may not reflect all real estate activity in the market. ©2025 The Real Estate Board of New York, Inc., All rights reserved.







