| MLS # | 838297 |
| 税金(年間) | $3,214 |
| 燃料の種類 | 電気 Electric |
| 暖房タイプ | 電気 Electric |
| バス | 1 分: Q23 |
| 4 分: Q48 | |
| 7 分: Q66, Q72 | |
| 地下鉄 | 4 分: 7 |
| LIRR | 1.1 マイル: "Mets-Willets Point" |
| 1.8 マイル: "Flushing Main Street" | |
![]() |
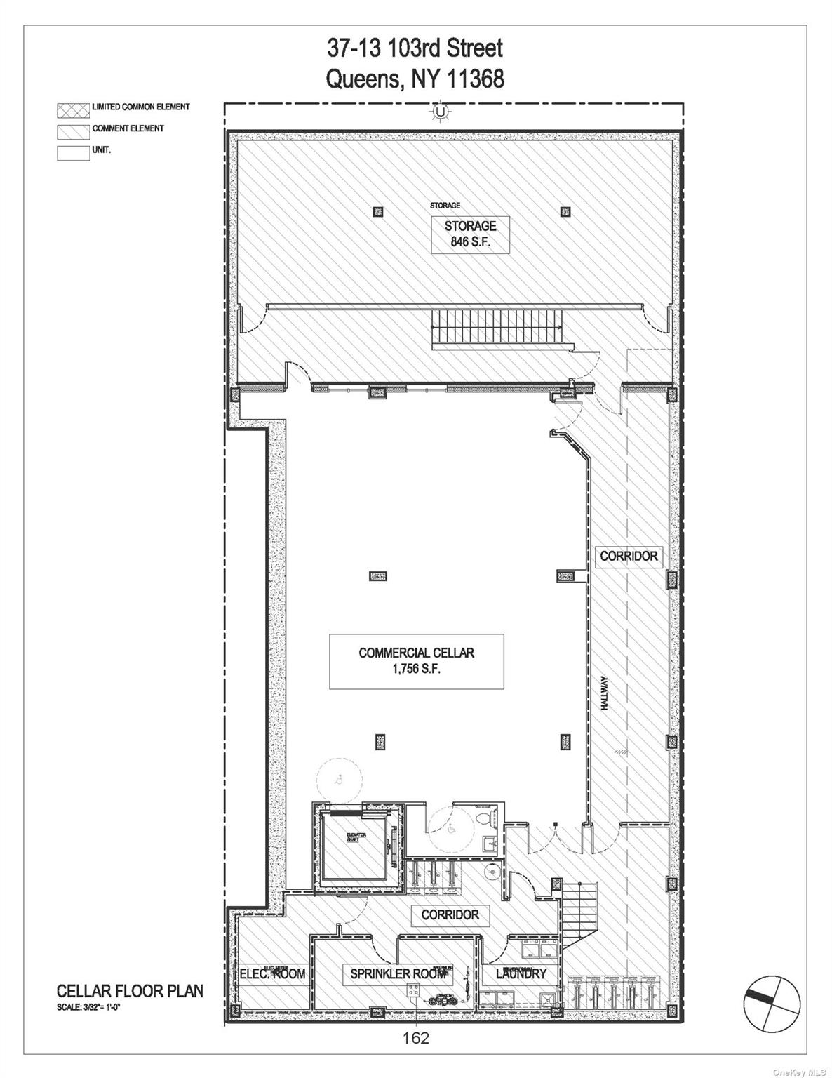
素晴らしい投資機会!広々とした低層の小売コンドミニアム物件で、25年間の税金免除があります。約1,756平方フィートの内部スペース、高い視認性、多くの人通り。お見逃しなく!
Great investment opportunity! A spacious lower level retail condo property with 25 years tax abatement. About 1,756sf interior space, high visibility, heavy foot traffic. Don't Miss It!
This information is not verified for authenticity or accuracy and is not guaranteed and may not reflect all real estate activity in the market. Listing courtesy of P R O Links Realty Inc © 2026







