| ID # | RLS20010827 |
| 物件の詳細 | 1 寝室, 2 バスルーム, 食器洗い機, 内装: 1439 ft2, 134m2 |
| 建築年 | 1931 |
| 管理費 | $535 |
| 税金(年間) | $4,692 |
| バス | 0 分: B46 |
| 1 分: B52 | |
| 4 分: B38 | |
| 5 分: B47, Q24 | |
| 6 分: B15 | |
| 7 分: B26 | |
| 地下鉄 | 6 分: J |
| 8 分: Z | |
| LIRR | 1.2 マイル: "Nostrand Avenue" |
| 1.7 マイル: "East New York" | |
![]() |
新しい開発 クラシックなブラウンストーンを洗練された現代的な魅力で再構築。
マルコム・X・ブルバードの歴史的なブラウンストーンに位置するこの建物は、クラシックなディテールと現代的な快適さを融合させています。高い天井、オーバーサイズの窓、エレガントなキッチン、最先端の気候制御システムなど、考慮されたデザインが復元された世紀転換期の壁の内側に収められています。全く新しい電気、配管、床、水道管、スプリンクラーシステムなどによって心の安らぎを体験してください。
ブルックリンの新築物件の多くとは異なり、この建物は高級カスタム仕上げと著名な建築事務所アレックスアレンスタジオによる卓越したデザインで際立っています。すべてのディテールが思慮深く作り込まれ、あなたのライフスタイルに特化した空間を生み出しています。このレベルの品質と craftsmanship では、市場のどこにもより良い価値は見つかりません。
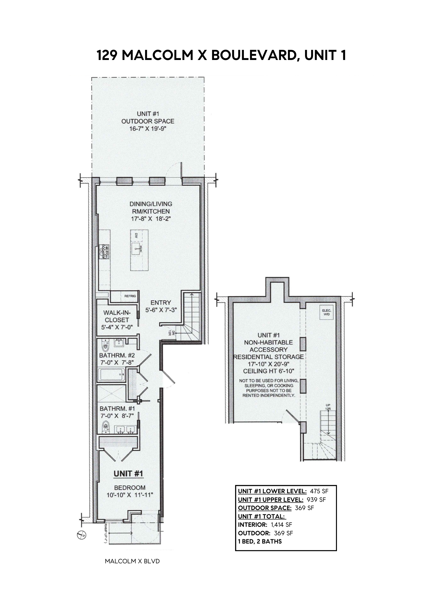
ユニット#1はバリアフリー/ADA準拠。2階にわたる広々とした1,439平方フィートの居住空間を提供し、現代のライフスタイルに合わせて考えられています。巨大な天井を持つオープンでロフトのようなインテリアは、369平方フィートのプライベートな屋外スペースに開かれています。さらに、内部階段と下階のレクリエーションルームがタウンハウスの雰囲気を加えています。
ユニットには、温水の石灰岩の床を持つバスルーム、たっぷりの収納、ユニット内洗濯機、高効率の暖房と冷却を備えた機能的で便利な要素が特徴です。デザインはカスタムミルワークや装飾、ヘリンボーンの床、ヨーロッパ製の三重窓が施され、妥協されることはありません。
活気あるベッドフォード・スティーヴェサントの近く、ブッシュウィックの境界に位置しています。日が沈むとレストランやバーのドアが開きます:ダイナコでのカクテル、ピーチズ・ホットハウスでのナッシュビル風フriedチキン、サラギーナでのナポリ風ピザ。ウィノナズでナチュールワインを飲みながら、サンコファ・アバン・ベッド&ブレックファーストでジャズを楽しむか、ベッド・スティーの緑地で屋外映画を観ることもできます。あなたが求めるものが何であれ、ベッド・スティーには誰にでも合うものがあります。
近くのJトレインと複数のバスも、マンハッタンや他の好きなブルックリンの地域への迅速かつ簡単なアクセスを提供します。
そのプライムなロケーションと現代的なアメニティによって、129マルコム・X・ブルバードはユニークな建物であり、未来への素晴らしい投資です。
引き渡しは2025年を予定しています。
完全なオファリング条件は、スポンサーから入手できるオファリングプランに記載されています。ファイル番号CD24-0096。スポンサー:アトリエ・マルコム・X・LLC、170ティラリー・ストリート、スイート704、ブルックリン、NY 11201
NEW DEV Reimagining a classic brownstone with sophistication and modern charm.
Outfitted in a historic brownstone on Malcolm X Boulevard, the building blends classic details with modern comfort. Thoughtful designs such as high ceilings, oversized windows, elegant kitchens and state-of-the-art climate control systems are all tucked inside the restored turn-of-the-century walls. Experience peace of mind with all-new electrical, plumbing, flooring, water main, sprinkler system and more.
Unlike most Brooklyn new development, this building stands out with high-end custom finishes and exceptional design by the renowned architecture firm AlexAllen Studio. Every detail has been thoughtfully crafted to create a space that feels tailored specifically to your lifestyle. With this level of quality and craftsmanship, you won’t find a better value anywhere else on the market.
Unit #1 is handicap accessible/ADA compliant. Offering an expansive 1,439 square feet of living space over two floors, thoughtfully designed to cater to a modern lifestyle. An open and loft-like interior with massive ceilings opens onto 369 square feet of private outdoor space. Additionally, an internal staircase and lower-level rec room adds to the townhouse feel.
Units feature functional and convenient elements such as bathrooms with heated limestone floors, generous storage, in-unit laundry, and high-efficiency heating and cooling. Design is never compromised with custom millwork and moldings, herringbone floors and triple-paned, tilt-and-turn windows custom made in Europe.
Located in the vibrant neighborhood of Bedford Stuyvesant, close to the Bushwick border. As the sun sets, restaurant and bar doors open: cocktails at Dynaco, Nashville-style fried chicken at Peaches Hot House, Neapolitan pizza at Saraghina. Sip on a natural wine at Winona’s. Catch some jazz at the Sankofa Aban Bed & Breakfast, or an outdoor movie screened in one of Bed-Stuy’s green spaces. Whatever you're craving, Bed-Stuy has something for everyone.
The nearby J train and multiple buses also offer quick and easy access to Manhattan and your other favorite Brooklyn neighborhoods.
With its prime location and modern amenities, 129 Malcolm X Blvd is a unique building and fantastic investment in the future.
Expected closings fall 2025.
THE COMPLETE OFFERING TERMS ARE IN AN OFFERING PLAN AVAILABLE FROM SPONSOR. FILE NO. CD24-0096. SPONSOR: ATELIER MALCOLM X LLC, 170 TILLARY STREET, SUITE 704, BROOKLYN, NY 11201
This information is not verified for authenticity or accuracy and is not guaranteed and may not reflect all real estate activity in the market. © 2026 The Real Estate Board of New York, Inc., All rights reserved.







