| ID # | RLS20011229 |
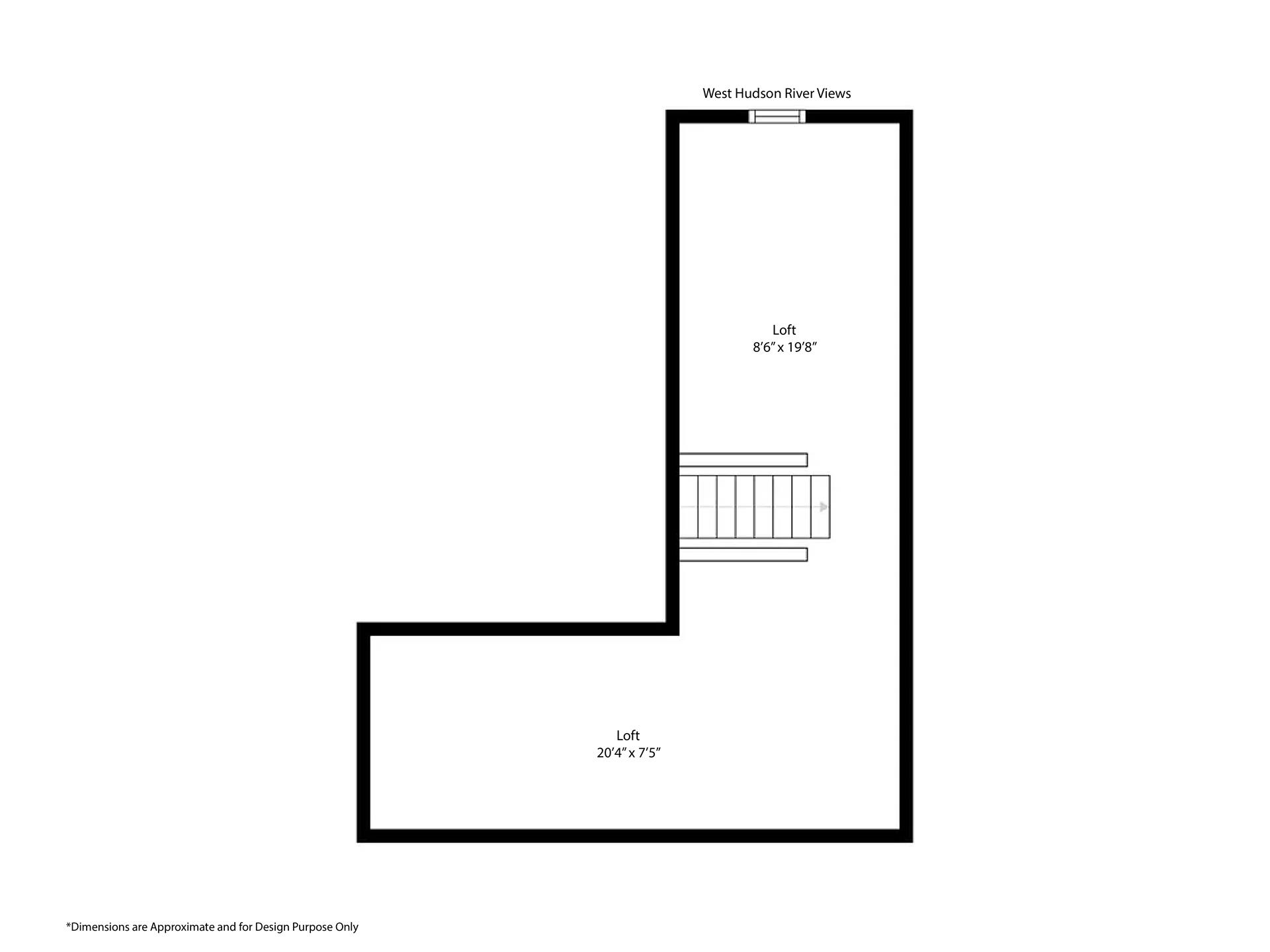
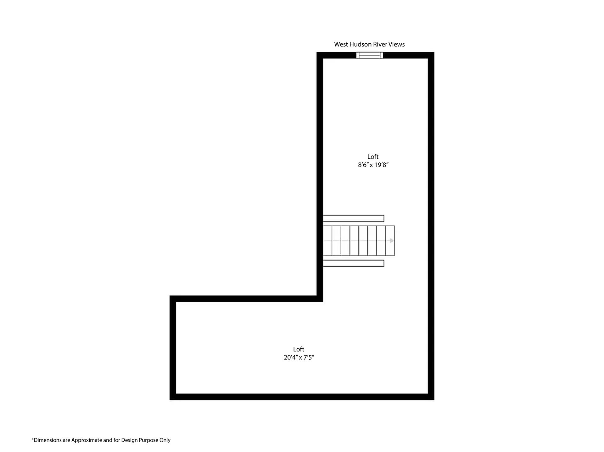
| 物件の詳細 | 4 寝室, 2 バスルーム, 1 ハーフバス, 洗濯機, 乾燥機, 内装: 1995 ft2, 185m2 (DOM): 222 days |
| 建築年 | 1926 |
| 管理費 | $2,147 |
![]() |
ハドソン川を見下ろす丘の上に位置するヴィラ・シャーロット・ブロンテは、ニューヨーク市で最も絵のように美しく、独占的な住居の一つです。1926年に建てられたこの魅力的な17ユニットの複合施設は、イタリアのヴィラの魅力を呼び起こし、比類のないプライバシー、美しさ、そしてパリセーズの息を呑むような景色を提供します。
この素晴らしい三階建ての家は、緑豊かな木々に囲まれたプライベートエントランスを備え、市の喧騒からの静かな隠れ家を創出しています。入ると、河の眺めと薪ストーブの暖炉が、夕日や雪の降るのを見ながらの居心地の良い夜を演出する完璧な雰囲気を作り出すリビングルームが迎えます。オーバーサイズのイートインキッチンは、追加のキャビネットを誇り、川を見下ろす大きな石のパティオにシームレスに接続しており、屋外での食事やエンターテイメントに最適です。1階には、立派なエントリーフォイエ、パウダールーム、広々としたコートクローゼットも含まれています。
2階にはカスタムクローゼットを備えた十分な広さの主寝室、2つの追加の寝室(1つには換気された洗濯機/乾燥機があります)、2つのフルバス、さらなるクローゼットスペースがあります。最上階は無限の可能性を秘めた仕上がりの空間で、自宅のオフィス、ゲストスイート、またはクリエイティブスタジオに最適です。2階と3階の両方からは素晴らしい川の景色が楽しめます。
最近のアップデートには、すべて新しいウィンドウトリートメント、新鮮な煙突工事、新しいカーペット、オーバーヘッド照明、カスタムクローゼット、新しい換気された洗濯機/乾燥機、および更新された暖房と冷却のコンプレッサーが含まれます。すべての詳細が丁寧に配慮されており、この時を超えた住居の中で現代的な快適さが確保されています。
メトロノース駅から短距離の場所に位置するこの家は、静かな田舎のような環境と、グランドセントラル駅までわずか20分でアクセスできる便利さの両方を提供しています。息を呑むような景色と比類のない静寂の感覚を持つこの機会は、見逃すことのできないチャンスです。
Perched atop a hill overlooking the Hudson River, Villa Charlotte Bronte is one of New York City's most picturesque and exclusive residences. Built in 1926, this enchanting 17-unit complex evokes the charm of an Italian villa, offering unparalleled privacy, beauty, and breathtaking views of the Palisades.
This stunning three-floor light filled home features a private entrance surrounded by lush greenery, creating a serene retreat from the city's hustle. Upon entry, you are welcomed by a living room, where river views and a wood-burning fireplace set the perfect ambiance for cozy evenings, whether watching the sunset or snowfall. The oversized eat-in kitchen boasts extra cabinetry and seamlessly connects to a large stone patio overlooking the river-ideal for outdoor dining and entertaining. The first floor also includes a gracious entry foyer, a powder room, and a spacious coat closet.
The second level is home to a generously sized primary bedroom with a custom closet, two additional bedrooms (one equipped with a vented washer/dryer), two full baths, and extra closet space. The top level is a finished space with endless possibilities-perfect for a home office, guest suite, or creative studio. Both second and third floors offer stunning river views.
Recent updates include all-new window treatments, fresh chimney work, new carpeting, overhead lighting, custom closets, a new vented washer/dryer, and updated heating and cooling compressors. Every detail has been thoughtfully attended to, ensuring modern comfort within this timeless residence.
Located just a short distance from the Metro-North station, this home offers the best of both worlds-peaceful, countryside-like surroundings with the convenience of reaching Grand Central Station in just 20 minutes. With breathtaking exposures and an unparalleled sense of tranquility, this is an opportunity not to be missed.
This information is not verified for authenticity or accuracy and is not guaranteed and may not reflect all real estate activity in the market. ©2025 The Real Estate Board of New York, Inc., All rights reserved.







