| ID # | 843154 |
| 建築年 | 1954 |
| 税金(年間) | $22,104 |
| 燃料の種類 | 天然ガス Gas |
| エアコン | セントラルエアコン Central Air |
![]() |
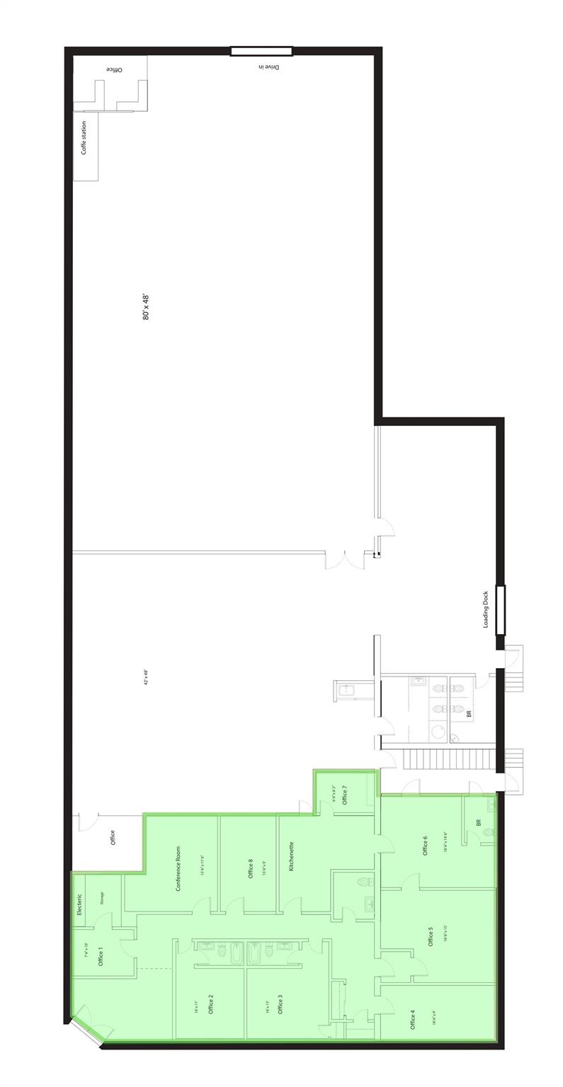
この広々とした3,500平方フィートの倉庫をご覧ください。さまざまな用途に最適です!現在、この物件は2階に分かれたオフィススペースとして構成されていますが、所有者は倉庫への改装を希望しています。暖房とセントラルエアコンが備わっており、天井の高さは11〜13フィートで、運営のニーズに完璧に応えます。さらに、建物内には4,700平方フィートの追加スペースも利用可能です。
広大な1.3エーカーの敷地は、十分な駐車スペースと便利なアクセスを提供し、裏には二次道路の入口があります。ルート32からすぐの場所に位置しており、この物件はアクセスしやすく、非常に目立ちます。この素晴らしい機会をお見逃しなく—ぜひお早めに内見の予約をしてください!
Discover this spacious 3,500 sq. ft. warehouse, ideal for a variety of uses! The property is currently configured as office space spread over two floors, but the owner is willing to convert it into a warehouse. It is equipped with heating and central air conditioning, and features a ceiling height of 11-13 ft, making it perfect for all your operational needs. Additionally, there is 4,700 sq. ft. of extra space available in the building.
The expansive 1.3-acre lot offers ample parking and convenient access, including a secondary road entrance at the rear. Located just off Route 32, this property is both accessible and highly visible. Don’t miss out on this fantastic opportunity—schedule your showing today! © 2025 OneKey™ MLS, LLC







