| ID # | RLS20015475 |
| 物件の詳細 | 5 寝室, 3 バスルーム, 1 ハーフバス, 食器洗い機, 内装: 3400 ft2, 316m2 (DOM): 229 days |
| 建築年 | 1905 |
| 税金(年間) | $7,464 |
| バス | 0 分: B44, B45 |
| 3 分: B43, B44+ | |
| 6 分: B49 | |
| 7 分: B65 | |
| 地下鉄 | 4 分: 3 |
| 6 分: 2, 5 | |
| LIRR | 0.5 マイル: "Nostrand Avenue" |
| 1.7 マイル: "Atlantic Terminal" | |
![]() |
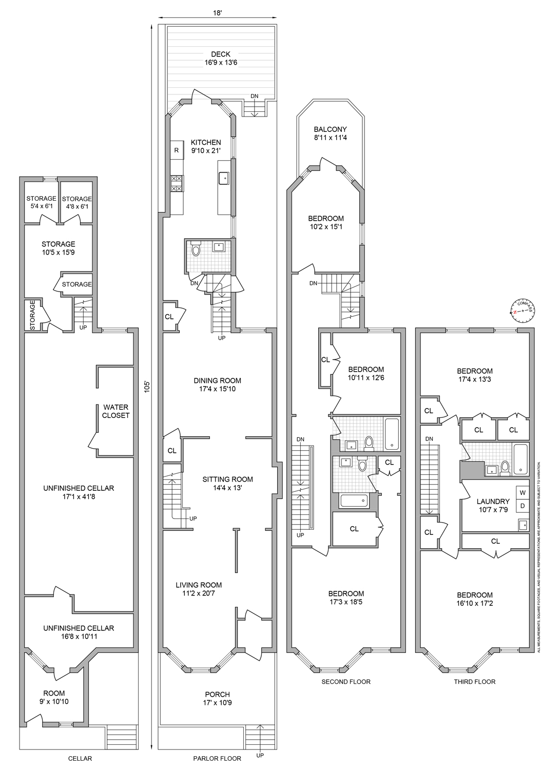
259 ニューヨークアベニューは、クラウンハイツの最も美しい歴史的なブロックの一つに位置する、息を呑むようなルネサンスリバイバルスタイルのタウンハウスです。この威厳ある石灰岩の住居は、3階建てと完全な地下室を含む4,000平方フィート以上の広さを誇り、歴史的な壮麗さと現代的な洗練さを見事に融合させています。元々は二世帯住宅として建設されましたが、現在は広々とした一戸建て住宅として配置され、楽しまれています。建築的な遺産を尊重しながら慎重にアップデートされたこの家は、複雑なモールディング、高い天井、光り輝く硬材の床を備えており、現代的なアップグレード、例えば最新の電気システムや中央空調がエレガントに補完しています。
快適さと優雅さを兼ね備えたこの家は、5つの寝室、3つ半のバスルーム、書斎、そして複数の明るいリビングエリアを提供しています。大きな窓から自然光が溢れ、家の中の素晴らしいディテールが際立っています。印象的なグランド階段は目を引く焦点となり、家の時代を超えた魅力を高めています。この特別な住居は、クラシックなエレガンスと現代的な利便性の完璧なバランスを保っています。
家の中心部分はシェフのキッチンで、高級LGの家電、クォーツのカウンタートップ、カスタムキャビネット、デザイナー照明が整っています。ここからバックヤードデッキに出ることができ、オープンエアでのエンターテイメントやリラックスに最適な場所です。
2階には贅沢なプライマリースイートがあり、2つのクローゼット、専用バスルーム、装飾的な暖炉があります。このフロアには、もう2つのキングサイズの寝室があります。3階はさらに柔軟性を提供し、2つの追加の寝室、フルバスルーム、および便利な広々としたランドリールームがあります。フル地下室は十分な収納スペースと直接のストリートアクセスを提供し、家の実用性を高めています。物件は元のキャラクターを保ちながら、思慮深いアップデートが行われています。
クラウンハイツの中心に位置するこの家は、プロスペクトパークやブルックリン植物園の豊かな緑から、近隣の賑やかなダイニングおよび文化シーンまで、ブルックリンの魅力をすぐそばで楽しむことができます。通勤は容易で、ノストランドアベニューの3号線、プレジデントストリートの2号線と5号線、さらに近くのバス路線やシティーバイクステーションへのアクセスが便利です。
259 New York Avenue is a breathtaking Renaissance Revival townhouse set on one of Crown Heights’ most picturesque, landmarked blocks. This stately limestone residence spans over 4,000 square feet across three stories and a full basement, seamlessly marrying historic grandeur with modern refinement. Originally built as a two-family home, it is currently configured and enjoyed as a spacious single-family residence. Meticulously updated with respect for its architectural legacy, the home showcases intricate moldings, soaring ceilings, and gleaming hardwood floors—elegantly complemented by contemporary upgrades, including a modernized electrical system and central air conditioning.
Designed for both comfort and elegance, the home offers five bedrooms, three and a half bathrooms, a study, and multiple sunlit living areas. Oversized windows flood the interiors with natural light, highlighting the exquisite details throughout. A striking grand staircase serves as a breathtaking focal point, adding to the home’s timeless charm. This extraordinary residence is a perfect balance of classic elegance and contemporary convenience.
The heart of the home is the chef’s kitchen, a culinary dream outfitted with high-end LG appliances, quartz countertops, custom cabinetry, and designer lighting. From here, pop out onto a backyard deck—an ideal setting for entertaining or unwinding in the open air.
The second floor is anchored by the luxurious primary suite, featuring two closets, an en-suite bath, and a decorative fireplace. Two additional king-sized bedrooms complete this level. The third floor offers even more flexibility, with two additional bedrooms, a full bathroom, and a spacious laundry room for ultimate convenience. A full basement provides ample storage and direct street access, enhancing the home’s practicality. The property has undergone thoughtful updates while preserving its original character.
Located in the heart of Crown Heights, this home offers the best of Brooklyn at your doorstep—from the lush greenery of Prospect Park and the Brooklyn Botanic Garden to the neighborhood’s thriving dining and cultural scene. Commuting is effortless with easy access to the 3 train at Nostrand Avenue, the 2 and 5 trains at President Street, as well as nearby bus routes and Citi Bike stations.
This information is not verified for authenticity or accuracy and is not guaranteed and may not reflect all real estate activity in the market. ©2025 The Real Estate Board of New York, Inc., All rights reserved.







