| ID # | RLS20015618 |
| 物件の詳細 | 13 寝室, 13 バスルーム, 1 ハーフバス (DOM): 307 days |
| 税金(年間) | $24,408 |
![]() |
316 プレザントアベニュー、ニューヨークシティのイーストハーレム地区、イースト116ストリートとイースト117ストリートの間。現在、競争力のある価格で1,500,000ドルで販売中。
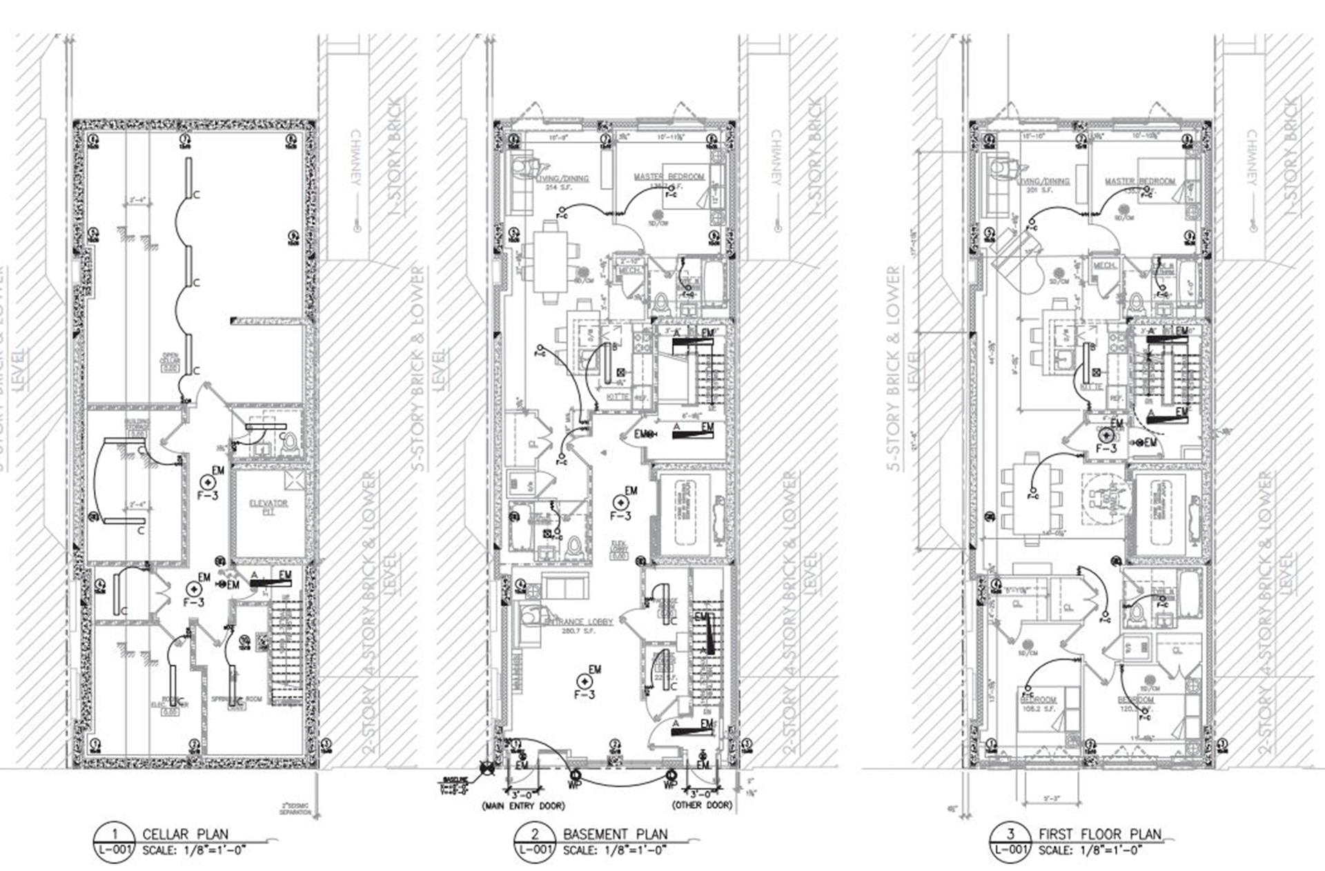
マンハッタンのプライムイーストハーレム地区にある空き地を購入する珍しく素晴らしい機会で、豪華な6階建て8ユニットのコンドミニアムのニューヨーク市および州の建設計画が承認されています。
幅25フィート、長さ98フィートの広々とした敷地。総面積:2,450平方フィート。壁は白塗りされ、防水処理されており、素晴らしい建設の準備が整っています。
提案された8ユニット(許可されているのは14ユニット)の6階建て住宅コンドミニアムビルで、地下室とペントハウスレベルがあります。建物の計画は、アンジェロ・NG + アンソニー・NG建築スタジオP.C.によって設計され、認証されています。
提案された住宅建設面積:約9,550.80平方フィート。
316 プレザントアベニューは、地域の誇るイーストリバープラザコンプレックス(コストコ、ALDIグロサリーなど)の角を曲がったところに位置しており、イーストリバーへのアクセスは、いずれの方向にも徒歩10分以内で行けます。
コンドミニアム複合体の承認された計画の詳細を含む、この物件に関する詳細についてはお問合せください。
ブロック:01715
ロット:0049
ゾーン地区:R7A
ゾーニングマップ:6B
最大FAR:4.0
Read the English version or choose another language
This information is not verified for authenticity or accuracy and is not guaranteed and may not reflect all real estate activity in the market. ©2025 The Real Estate Board of New York, Inc., All rights reserved.







