| ID # | RLS20015964 |
| 物件の詳細 | スタジオアパート, 洗濯機, 乾燥機, 内装: 1006 ft2, 93m2 (DOM): 204 days |
| 建築年 | 1928 |
| 管理費 | $1,393 |
| 税金(年間) | $21,420 |
| 地下鉄 | 1 分: 2, 3 |
| 2 分: J, Z, 4, 5 | |
| 4 分: R, W, 1, A, C | |
| 7 分: E | |
| 10 分: 6 | |
![]() |
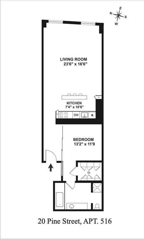
アパート516に入ると、20パインストリートにある1,006平方フィートの広々としたロフトが広がっています。この住居は、リッチなダークハードウッドフロア、高い天井、たっぷりのウォークインクローゼットスペースを誇ります。
スタイリッシュなシェフのキッチンは、グラニットカウンタートップと高級家電を備えており、オーブン・レンジ、引き出し式食器洗い機、冷蔵庫、さらに全自動洗濯機と乾燥機が一体化しています。
オーバーサイズのスパのようなバスルームは、浸かるためのバスタブと別々のレインシャワーを備えた隠れ家で、エレガントな輸入石で飾られています。ダークストainedハードウッドフロアは全体に広がり、洗練された雰囲気を演出しています。
20パインストリートの住民は、24時間対応のドアマンとコンシェルジュサービス、最新鋭のフィットネスセンター、スイミングプール、トルコ式ハマム、ゴルフシミュレーター、ビリヤードのある住民ラウンジなど、さまざまな設備を利用できます。1920年代のモルガン保証信託ビルであったこの住居は、精巧なアールデコ建築、豪華な大理石のロビー、豊かな歴史的背景を誇ります。
マンハッタンの最もprestigiousなエリアの一つに位置しているこの住居は、世界クラスのダイニング、ショッピング、エンターテインメント、効率的な公共交通へのアクセスが容易で、近くにはフルトンストリート駅があります。2、3、4、5、A、C、R、W、J、Z、およびPATHの電車が利用可能です。11号埠頭から水上タクシーで街を探索し、ブルックリン、クイーンズ、ガバナーズアイランド、さらにはロッカウェイビーチへ向かう途中で息を飲むような景色を楽しんでください。この建物は、公園、広場、専門店やグルメ市場、地元の博物館、サウスストリートシーポート、ピア17、ホールフーズマーケットなどのアトラクションからも徒歩圏内です。
2026年12月まで月額$111.25の評価があります。
Step into apartment 516, a spacious loft spanning 1,006 square feet at 20 Pine Street. This residence boasts rich dark hardwood floors, lofty ceilings, and an abundance of walk-in closet space.
The stylish chef's kitchen showcases granite countertops and high-end appliances, including an Oven/Range, Drawer Dishwasher, and Refrigerator and a washer/dryer all in one .
Indulge in the oversized spa-like bathroom, a haven with a soaking tub and a separate rain shower, adorned with elegant imported stone. The dark-stained hardwood floors extend throughout, adding to the sophisticated ambiance.
Residents of 20 Pine Street enjoy a host of amenities, including a 24-hour doorman and concierge service, a state-of-the-art fitness center, a swimming pool, a Turkish hammam, a golf simulator, and a residents' lounge with billiards. Originally the Morgan Guaranty Trust Building from the 1920s, this residence boasts exquisite Art Deco architecture, a grand marble lobby, and a rich historical backdrop.
Situated in one of Manhattan's most prestigious neighborhoods, this residence provides easy access to world-class dining, shopping, entertainment, and efficient public transit with the Fulton Street Station nearby. The 2, 3, 4, 5, A, C, R, W, J, Z, and PATH trains are within reach. Explore the city by water taxi from Pier 11, taking in breathtaking views on your way to Brooklyn, Queens, Governor’s Island, or even Rockaway Beach. The building is also a short distance from parks, plazas, specialty and gourmet markets, local museums, and attractions such as South Street Seaport, Pier 17, and Whole Foods Market.
Assessment of $111.25/month till December 2026.
This information is not verified for authenticity or accuracy and is not guaranteed and may not reflect all real estate activity in the market. ©2025 The Real Estate Board of New York, Inc., All rights reserved.







