| ID # | RLS20016604 |
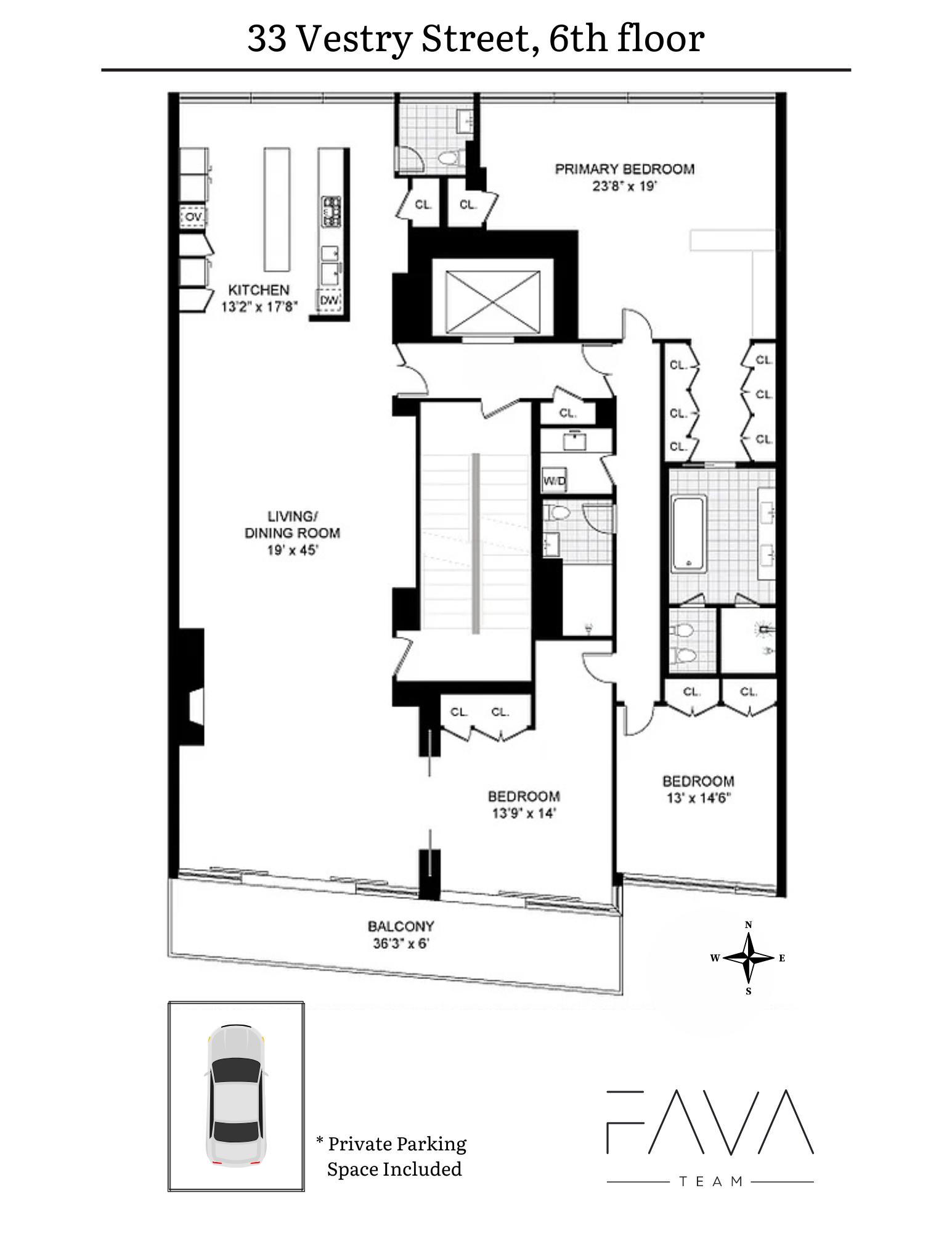
| 物件の詳細 | 3 寝室, 2 バスルーム, 1 ハーフバス, ガレージ, 内装: 3252 ft2, 302m2 (DOM): 215 days |
| 建築年 | 2008 |
| 管理費 | $5,579 |
| 税金(年間) | $29,796 |
| 地下鉄 | 3 分: 1 |
| 4 分: A, C, E | |
| 8 分: R, W | |
| 10 分: 2, 3, 6, N, Q | |
![]() |
販売にプライベート駐車スペースを含む!
トライベッカの最良の通りに位置する33ヴェストリーの6階は、著名な建築家ウィンカ・ダッベルダムによって設計された、独占的な7戸のブティックコンドミニアムの真の建築の傑作です。印象的な3252平方フィートの広さを誇るこの純粋な住居は、現在3ベッドルーム、2.5バスの聖域として設計されています。
自然光に満ちた壮大なグレートルームは、建物で唯一の南向きプライベートテラスに面しており、素晴らしいダウンタウンの景色を楽しめます。親密な瞬間や大規模なエンターテイメントのための息を呑むような背景を作り出します。南側のファサードに沿った床から天井までのイタリア製スライディングドアが外の景色を取り込み、インテリアのエレガンスと都市景観をシームレスに融合させます。
11フィート近くの高い天井を持つ主なリビングエリアは、世界クラスのアートを展示しながら、広々としたオープンコンセプトの空間を提供するようにデザインされています。
カスタムデザインのブルトハウプキッチンは、洗練されたアップルウッドキャビネット、ステンレス製のカウンタートップ、座席付きの目を引くラッカー仕上げのセントラルアイランドを備えた工芸品の傑作です。最上級のアプライアンスが、この料理の楽園を完璧にしています。
700平方フィートにも及ぶ洗練されたオアシスである主寝室は、広々とした睡眠エリア、特注のドレッシングエリア、プラチナラッカー仕上げでウェンゲ棚のカスタムモルテニクローゼットシステム、そして素晴らしいエンスイートバスを提供します。エレガントなバスの仕上げには、ノベルダクリームとグリス・デ・シエナ石灰岩、自由立ち式のボッフィバスタブ、スチームシャワー、そして輻射熱床が含まれており、洗練された贅沢を醸し出しています。
無限の南向きの光が入るセカンダリーベッドルームには、カスタムモルテニウォールユニットシステムがあり、汎用性のあるサードベッドルームには特注のボッフィ壁吊りユニットシステムが含まれています。このため、プライベートな隠れ家として機能するか、メインリビングスペースの延長として機能します。
スタイリッシュなパウダールームは、オリジナルデザイン後に追加され、SICISモザイクタイルとポンペイ石で飾られています。また、完全装備のカスタムランドリールームが追加の便利さを提供します。この家には、床から天井までのウールカーテンとルーゼンによって操作されるシアー、包括的なリモートセキュリティシステム、そして家全体に統合されたオーディオビジュアル配線が備えられています。
この非凡な提供を高めるのは、究極の都市の贅沢、プライベートな権利のある駐車スペースです。エレベーターから簡単にアクセスできるこの安全で目立たないガレージの入口では、外に出たり、他の人に出会ったりすることなく、自宅から直接車に乗り込むことができます。そして次の目的地に向けて出発します。
2012年に完成した33ヴェストリーは、トライベッカで最も人気のある住所の1つであり、創設以来の再販は1回のみです。この特別な住居は、マンハッタンで最も魅力的な場所の1つにおいて、比類なき家を所有する稀な機会を提供します。
Private Parking Space Included in the Sale!
Nestled on the finest street in Tribeca, the Sixth Floor of 33 Vestry is a true architectural masterpiece in an exclusive seven-residence boutique condominium, designed by the renowned Winka Dubbeldam. Spanning an impressive 3,252 square feet, this pristine residence is currently configured as a three-bedroom, two-and-a-half-bath sanctuary.
Bathed in natural light, the grand great room opens onto the only south-facing private terrace in the building with a spectacular downtown view, creating a breathtaking backdrop for both intimate moments and grand entertaining. Floor-to-ceiling Italian sliding doors along the southern facade invite the outdoors in, seamlessly blending interior elegance with the cityscape beyond.
With soaring ceilings just shy of 11 feet, the main living area was designed to showcase world-class art while offering an expansive, open-concept space.
The custom-designed Bulthaup kitchen is a masterpiece of craftsmanship, featuring sleek applewood cabinetry, stainless-steel countertops, and a striking lacquer-finished central island with seating. Top-of-the-line appliances complete this culinary haven.
The primary suite, an oasis of sophistication spanning 700 square feet, offers a spacious sleeping area, a bespoke dressing area, a custom Molteni closet system in Platinum Lacquer with Wenge shelving, and a stunning en-suite bath. Exquisite bath finishes include Novelda cream and Gris de Sienna limestone, a freestanding Boffi tub, a steam shower, and radiant heated floors, all exuding refined luxury.
The secondary bedroom, with endless southern light, features a custom Molteni wall unit system, while the versatile third bedroom includes a bespoke Boffi wall-suspended unit system, allowing it to function as either a private retreat or an extension of the main living space.
A chic powder room, adorned with SICIS Mosaic Tile and Pompeii Stone, was added post-original design, while a fully equipped custom laundry room provides additional convenience. The home is appointed with floor-to-ceiling wool curtains and shears operated by Lutron, a comprehensive remote security system, and integrated audio-video wiring throughout.
Elevating this extraordinary offering is the ultimate city luxury: a private, deeded parking space. Effortlessly accessed via elevator, this secure and discreet garage entry allows you to step directly from your home into your vehicle—without stepping outside or encountering a single soul—before heading off to your next destination.
33 Vestry, completed in 2012, remains one of Tribeca’s most coveted addresses, with only one prior resale since its inception. This exceptional residence presents a rare opportunity to own an unparalleled home in one of Manhattan’s most sought-after locations.
This information is not verified for authenticity or accuracy and is not guaranteed and may not reflect all real estate activity in the market. ©2025 The Real Estate Board of New York, Inc., All rights reserved.







