| ID # | RLS20019618 |
| 物件の詳細 | One57 2 寝室, 2 バスルーム, 1 ハーフバス, 洗濯機, 乾燥機, 内装: 1985 ft2, 184m2 (DOM): 187 days |
| 建築年 | 2013 |
| 地下鉄 | 2 分: N, Q, R, W |
| 3 分: F | |
| 4 分: B, D, E | |
| 5 分: A, C, 1 | |
| 8 分: M | |
![]() |
ワン57コンドミニアムの贅沢な生活の極致に足を踏み入れてください。これは、世界的に有名なプリツカー賞受賞建築家クリスチャン・ド・ポルザンパルクによって設計された建築の傑作です。この象徴的なタワーは、ニューヨーク市で最も贅沢な住居の1つとして称賛されており、中央公園、主要な文化およびエンターテイメント施設、著名なレストラン、独占的なショッピングのすぐ近く、名高い57丁目の回廊の中心に位置しています。
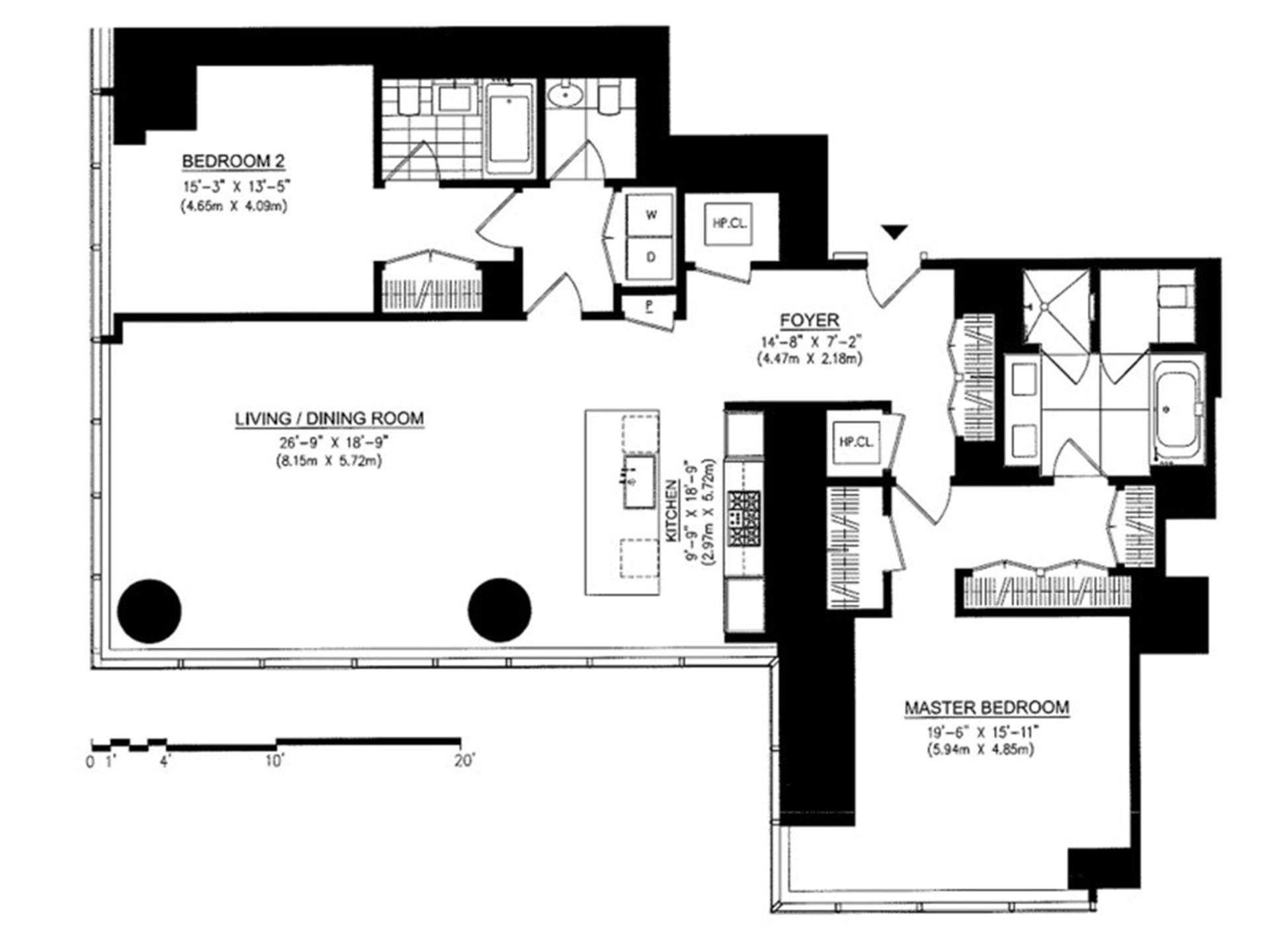
マンハッタンの40階上にあるこの広々としたコーナー住戸は、1,985平方フィートで、2つのベッドルームと2.5のバスを提供しています。この住戸は南西の向きで、市のスカイラインの息を呑むような景色を提供します。エレガントな foyer を通って、オープンシェフキッチンを備えた拡張されたグレートルーム(約27フィートx19フィート)へと進みます。キッチンは、組み込みのシーティングがある大きなアイランド、ダイヤモンドフォールの花崗岩のカウンタートップ、プロ用のアプライアンス、デバイゼスのスモールボーンによって手作りされたカスタムキャビネットを備えた、料理愛好家の夢です。
マスターベッドルームは、南西の向きで、広大なウォークインクローゼットと専用バスルームを備えた贅沢の聖域です。マスターバスルームは、特に深いジャグジー浴槽、別のシャワー、ネロボダ大理石の天板を持つカスタム木製洗面台、LED照明付きの壁面に埋め込まれた薬箱、放射床暖房、イタリアのスタツィオリオ大理石のスラブで装飾されています。セカンドベッドルームには、カスタムバニティ、白いクォーツ石で覆われた下部に取り付けられた洗面台、埋め込み式の薬箱、ビアンコ・ドロマイトの大理石の床と壁がある専用バスも備えています。
エレガントなパウダールームには、磨き抜かれた黒い花崗岩で皮ごと覆われた洗面台、ブラックガラスの統合シンク、ドルンブラハトの蛇口、白いオニキスのスラブの床と壁があります。室内は、10フィート8インチの天井高、床から天井までの防音窓、ソリッドリフトソーンオークのエボニーの床、最先端のマルチゾーン温度管理システムで贅沢な雰囲気を醸し出しています。
ワン57は、次のような比類のないサービスとアメニティを提供しています:
- 24時間ドアマン/コンシェルジュ
- プライベートダイニング&ファンクションルーム
- フルケータリングキッチン
- ビリヤードルームと24フィートの水槽を備えた図書室
- アート&クラフトアトリエルーム
- 映画視聴およびパフォーマンスルーム
- プライベートフィットネスセンターとヨガスタジオ
- 控えめな追加の58丁目入口
- 敷地内駐車場
- ペット洗い場
住民はまた、パークハイアットホテルのサービスへの限定アクセスも楽しむことができ、ホテルのトリプルハイトの屋内プール、スパ、スチームルーム、カスタムデザインのジャグジーおよびスパポーチ、5階のバーとレストランへの直接エレベーターアクセスがあります。ニューヨーク市の中心で洗練とエleganceが出会うワン57で、究極の贅沢な生活を体験してください。
Step into the epitome of luxury living at One57 Condominium, an architectural masterpiece designed by the world-renowned, Pritzker Prize-winning architect Christian de Portzamparc. This iconic tower, heralded as one of NYC's most luxurious residence, is situated in the heart of the city on the prestigious 57th Street corridor, just steps away from Central Park, premier cultural and entertainment venues, celebrated restaurants, and exclusive shopping.
Perched 40 floors above Manhattan, this spacious corner residence spans 1,985 square feet, offering 2 bedrooms and 2.5 baths. The residence boasts south and west exposures, providing breathtaking views of the city skyline. Enter through a gracious foyer that leads to an expansive Great Room, nearly 27 by 19 feet, featuring an open Chef's kitchen. The kitchen is a culinary dream, equipped with a large island with built-in seating, diamond fall granite countertops, professional appliances, and handcrafted custom cabinetry by Smallbone of Devizes.
The Master Bedroom is a sanctuary of luxury with south and west exposures, a vast walk-in closet, and an en-suite bath. The master bath is adorned with an extra-deep Jacuzzi tub, separate shower, custom wood vanity with under-mount sinks topped by Nero Voda marble, recessed medicine cabinets with LED lighting, radiant floor heating, and walls of Italian Statuario marble slab. The second bedroom also includes an en-suite bath with a custom vanity, under-mount sink topped with white quartzite, recessed medicine cabinets, and Bianco Dolomite marble floors and walls.
An elegant powder room features a vanity clad in polished black granite with a black glass integrated sink, Dornbracht faucet, and white onyx slab floors and walls. The interior exudes opulence with 10" 8" ceiling heights, floor-to-ceiling soundproof windows, solid rift sawn oak ebony floors, and a state-of-the-art, multi-zone climate control system.
One57 offers an unparalleled level of service and amenities, including:
- 24-Hour Doorman/Concierge
- Private Dining & Function Room
- Full Catering Kitchen
- Library with Billiards Room and 24-foot Aquarium
- Arts & Crafts Atelier Room
- Screening and Performance Room
- Private Fitness Center and Yoga Studio
- Discreet Additional 58th Street Entry
- On-Site Parking Garage
- Pet Wash Room
Residents also enjoy exclusive access to the services of the Park Hyatt Hotel, with direct elevator access to the hotel's triple-height indoor swimming pool, spa, steam rooms, custom-designed Jacuzzi and spa portico, and fifth-floor bar and restaurant. Experience the ultimate in luxury living at One57, where sophistication and elegance meet in the heart of New York City.
This information is not verified for authenticity or accuracy and is not guaranteed and may not reflect all real estate activity in the market. ©2025 The Real Estate Board of New York, Inc., All rights reserved.







