| ID # | 854206 |
| 物件の詳細 | 4 寝室, 4 バスルーム, 1 ハーフバス, 食器洗い機, 洗濯機, ガレージ, エアコン, 外装: 0.87 エーカー, 内装: 4730 ft2, 439m2 (DOM): 183 days |
| 建築年 | 2025 |
| 税金(年間) | $60,700 |
| 燃料の種類 | 天然ガス Gas |
| 暖房タイプ | 床/壁暖房 Radiant (Floor/Wall) |
| エアコン | セントラルエアコン Central Air |
![]() |
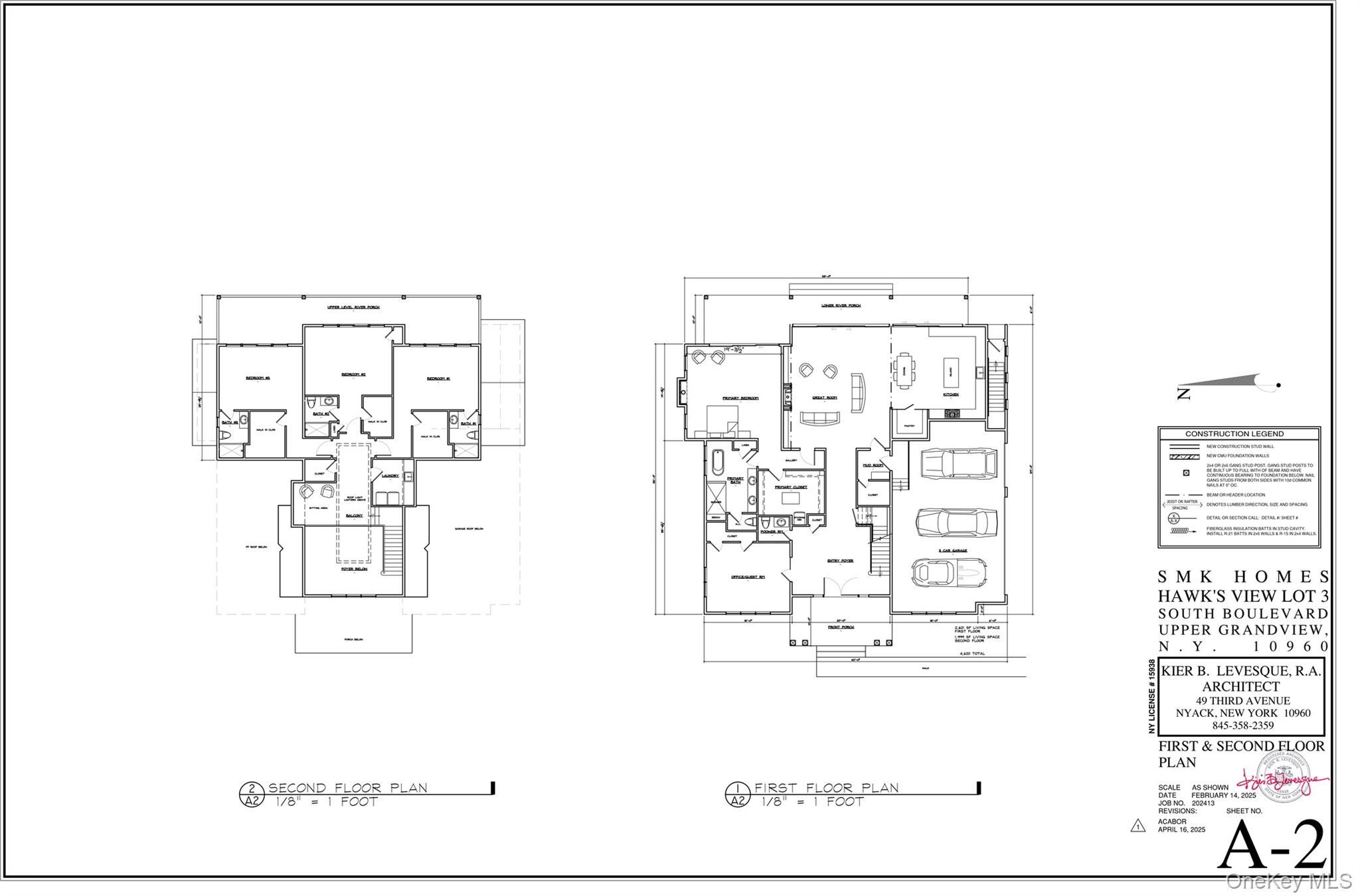
ジョージ・ワシントン橋からわずか25分の場所にあるこの「モダンバンハウス」4,700平方フィートの家は、アッパーグランドビューの崖の上に建ち、ハドソン川とクオモ/タパンジー橋の圧倒的で比類のない景色を楽しむことができます。建設はすぐに始まりますが、現在、買い手はこの模範的な物件に自らの創造性を刻むユニークな機会を持っています。ハードウッドフロア、10フィートの天井、ドレッシングルームにプライベートランドリーがある1階の主寝室、ガス暖炉、贅沢なスパのようなバス、そして消えゆくエッジの温水塩水の地下プールを見渡す54フィートの青石のデッキに通じるドアなど、素晴らしい特徴が揃っています。シェフのキッチンと大きなリビング/ダイニングルームは、開放的でありながら定義された間取りを楽しんでいます。メインフロアにはオフィスがあり、2階のエントリーがあります。2階には他の3つの寝室がすべてエンスイートで、すべてが裏庭とプール、さらに美しいハドソンバレーとハドソン川の50マイルの景色を見渡す2階の54フィートのデッキに出られます。安心を提供するために、全館内スプリンクラーシステムと24KWの全館発電機があります。また、最も目の肥えた園芸家を喜ばせるように設計された景観プランもあります。カヤックやパワーボート、セーリングから、活気ある村の生活と文化まで、ナイアックとピアモントが提供するすべてをお楽しみください。ナイアックをあなたの家にしてください。これは、経験30年の地元の建設業者SMKコンストラクションが提供するさらなる品質の高い家です。
Located only 25 minutes to the George Washington Bridge, this "Modern Barnhouse" 4,700 square foot home sits perched atop the Cliffs of Upper Grandview and possesses commanding and unparalleled views of The Hudson River and the Cuomo/Tappan Zee Bridge. Construction will begin soon and at present, buyers have the unique opportunity to make their custom choices, placing their own stamp of creativity upon this exemplary property. You will find such fine features as hardwood floors, 10' high ceilings, a first floor primary suite with private laundry in the dressing room, gas fireplace, a luxurious spa-like bath, and doors to the 54' bluestone deck overlooking the vanishing edge heated salt water inground pool. The chef's kitchen and great room/dining room enjoy an open yet defined floor plan. Main floor office, two story entry. The second level features the other 3 household bedrooms which are all en-suite and all exit onto the second level 54' deck overlooking the rear yard and pool and stunning 50 mile views of the lower Hudson Valley and the Hudson River. Peace of mind is the primary goal with full house interior sprinkler system and a 24 KW whole house generator. There is also a well designed landscape plan which will please the most discerning horticulturists. Enjoy all that Nyack and Piermont has to offer, from kayaking and power and sail boating, to vibrant village life and culture. Come, make Nyack your home. This is yet another quality home being offered by SMK Construction - a local builder with 30 years of experience, and an unmatched reputation. © 2025 OneKey™ MLS, LLC







