| ID # | RLS20021303 |
| 物件の詳細 | Linea 4 寝室, 3 バスルーム, 1 ハーフバス, 内装: 3812 ft2, 354m2 (DOM): 180 days |
| 建築年 | 2024 |
| 管理費 | $7,175 |
| 税金(年間) | $74,736 |
| 地下鉄 | 6 分: A, C, E |
| 7 分: L | |
| 8 分: 1 | |
| 10 分: 2, 3 | |
![]() |
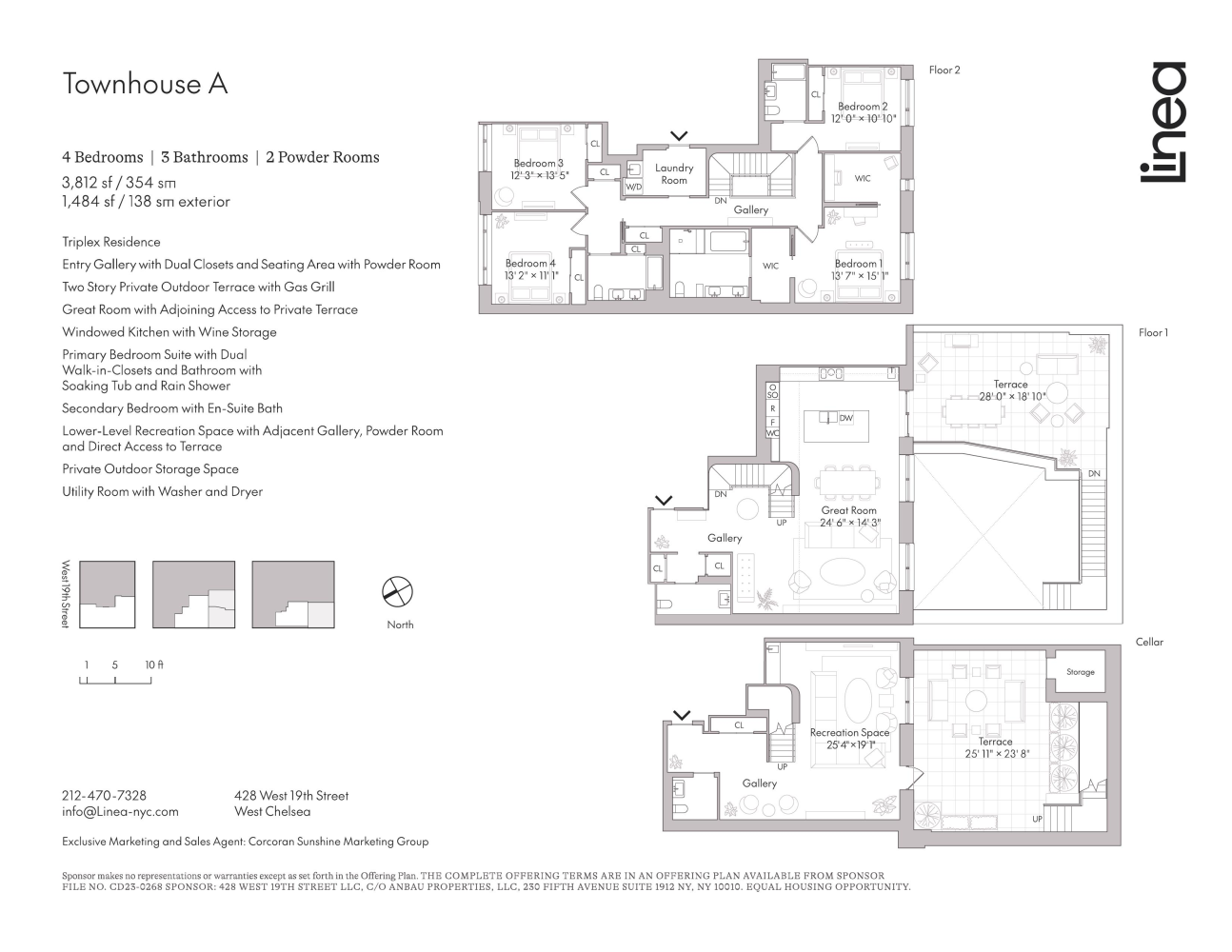
ハイラインとハドソンリバー公園から瞬時にアクセスできるウエストチェルシーのラインアに位置するタウンハウスAは、著名なBKSKアーキテクツによって設計された三層の四寝室レジデンスで、3つのバスルームと2つのパウダールームを備えています。このレジデンスは、広々とした3,812平方フィートの室内空間と、2層のテラスに広がる1,484平方フィートの屋外空間を誇り、完全なサービスを提供するコンドミニアムにおける理想的なタウンハウス生活を体現しています。この綿密にデザインされた現代的な家には、5.5インチ幅のプランクホワイトオークのフローリングや、メインレベルでの天井高が最大10フィートに達する特徴があります。このユニークな空間の各階には、彫刻的な内階段と住人専用のエレベーターの両方からアクセスできます。
メインレベルには、2つのコートクロゼットを備えた正式なエントリーギャラリーがあり、階段のオープンビューが広がっています。その先には、カスタムオープンキッチンを備えた24フィートのグレートルームがあり、MieleとWolfのガス及び誘導加熱コンロ、フルサイズのワイン冷蔵庫、統合シンク付きのKrionカウンタートップ、Kohlerの器具、スペースを節約するHafeleのレールシステムを使用した装飾タイルのバックスプラッシュ、カスタムのオークベニア仕上げおよびマットラッカー製のキャビネットが揃っています。窓の壁からは下のテラスを見下ろし、スライドドアを開けると、屋外キッチンとガスグリルを備えた、オーバーサイズの28フィート x 18フィートの上テラスに直接アクセスできます。
下層には、デン、オフィス、ゲストスイート、プレイルームとして使える25フィート x 19フィートの窓付きレクリエーションスペースがあり、25フィート x 23フィートのテラスの下層部分に開いています。両テラスレベルには、現代的な屋外階段からもアクセス可能で、下層は組み込み植栽と囲まれた収納スペースを提供し、自分自身の屋外プレイスペースには十分なスペースがあり、バスケットボールのフープを設置することもできます。
上層には、主寝室スイートがあり、2つのウォークインクローゼットと、カスタムフルーテッドの冷凍クルミベニア仕上げのバニティにCorianカウンタートップ、Kohler Puristのクローム製器具、練り仕上げのHaisa Lightマーブルフロア、カスタムクルミ製の収納ニッチを備えたスパのような5つの器具を持つ主バスがあります。
副寝室は広々としており、副バスには、練り仕上げのSilver Shadowマーブルタイルの床、ダンデライオングロッシータイルのスタックモザイクアクセントウォール、Corianカウンタートップとバニティを備えたカスタムクルミベニア仕上げのバニティ、KohlerとPorcelanosa製のソフトクローズトイレが設置されています。その他の便利な設備として、プログラム可能なNestサーモスタット、Miele製の洗濯機/乾燥機を備えたランドリールーム、Saltoアクセス制御があります。
ラインアの住民は、24時間365日有人のロビー、屋外キッチン付きのプライベート屋上テラス、最新鋭のフィットネスセンター、自転車駐車場、購入用のストレージ、パッケージおよび郵便室、地下レベルの商業用ランドリー設備を含む完全なアメニティスイートにアクセスできます。
独占的なマーケティングおよび販売エージェント:コルコラン サンシャイン マーケティング グループ。完全な提供条件は、スポンサーから入手可能な提供計画に記載されています。ファイル番号:CD23-0268。スポンサー:428 West 19th Street LLC、c/o Anbau Properties, LLC、230 Fifth Avenue、Suite 1912、ニューヨーク、NY 10010。物件住所:428 West 19th Street, NY, NY, 10011。公正な住宅機会。
Located moments from the High Line and Hudson River Park in West Chelsea, Townhouse A at Linea is a triplex four-bedroom residence with three bathrooms and two powder rooms, designed by acclaimed BKSK Architects. Boasting a generous 3,812 square feet of interior space and 1,484 square feet of outdoor space spread over a bi-level terrace, this residence epitomizes idyllic townhouse living in a fully serviced condominium. This meticulously detailed modern home includes 5.5-inch-wide plank white oak flooring, and ceiling heights soaring up to 10" on the main level. Each floor of this one-of-a-kind space is accessible by both a sculptural interior stair and the resident's elevator.
The main level features a formal entry gallery with two coat closets and an open view of the stair. Just beyond is 24" great room with a custom open kitchen complete with Miele and Wolf appliances including gas and induction cooktops, a full-size wine refrigerator, Krion countertops with integrated sinks, Kohler fixtures, decorative tile backsplashes with space saving Hafele railing systems, and custom oak veneered and matte-lacquer cabinetry. A wall of windows overlooks the terraces below and a sliding door offers direct access to the oversized 28" x 18" upper terrace outfitted with an outdoor kitchen and gas grill.
On the lower level, a 25'x19" windowed recreation space that can serve as a den, an office, a guest suite, or a playroom opens onto the 25" x 23" lower level of the terrace. Both terrace levels may additionally be accessed by a contemporary outdoor stair with the lower level offering built-in plantings and an enclosed storage area, with ample space for your own outdoor play space-even a basketball hoop.
On the upper level, the primary bedroom suite features dual walk-in closets and a spa like five-fixture primary bath with a custom fluted frozen walnut veneered vanity with Corian countertop, Kohler Purist chrome fixtures, honed Haisa Light marble floors, and a custom walnut storage niche.
Secondary bedrooms are graciously scaled and secondary baths feature honed Silver Shadow marble tile flooring, stacked mosaic accent wall in Dandelion Glossy tile, custom walnut veneered vanity with Corian countertop and vanity, fixtures by Kohler and Porcelanosa soft close toilet. Additional conveniences include with programmable Nest thermostats, a laundry room with a Miele washer/dryer, and Salto access controls.
Residents at Linea have access to a full amenity suite including 24/7 hour attended lobby, a private roof terrace with outdoor kitchen, state-of-the-art fitness center, bicycle parking, storage for purchase, package and mail room, and cellar-level commercial laundry facilities.
Exclusive Marketing and Sales Agent: Corcoran Sunshine Marketing Group. The complete offering terms are in an Offering Plan available from Sponsor, File No. CD23-0268. Sponsor: 428 West 19th Street LLC, c/o Anbau Properties, LLC, 230 Fifth Avenue, Suite 1912, New York, NY 10010. Property Address: 428 West 19th Street, NY, NY, 10011. Equal Housing Opportunity.
This information is not verified for authenticity or accuracy and is not guaranteed and may not reflect all real estate activity in the market. ©2025 The Real Estate Board of New York, Inc., All rights reserved.







