| ID # | RLS20021716 |
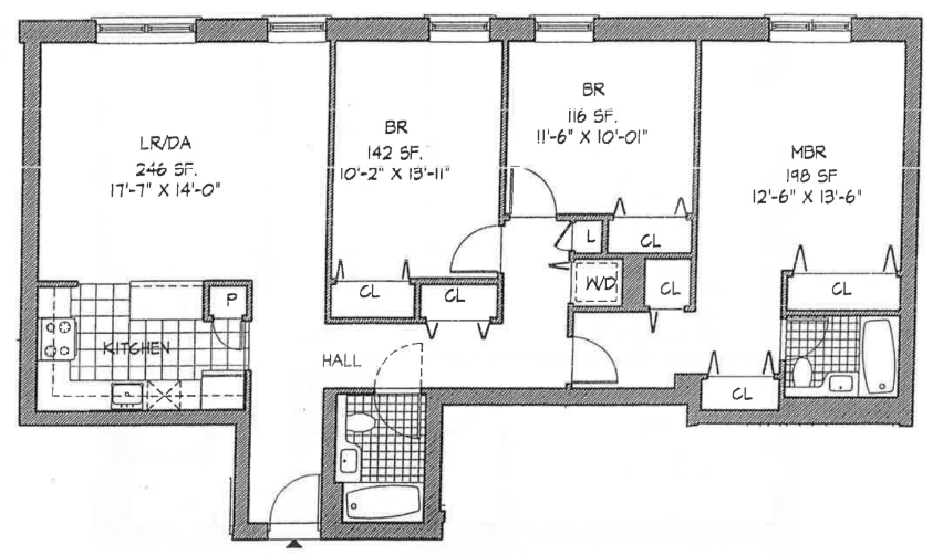
| 物件の詳細 | 3 寝室, 2 バスルーム, 食器洗い機, ガレージ, 内装: 1300 ft2, 121m2 (DOM): 214 days |
| 建築年 | 2003 |
| 管理費 | $1,339 |
| 地下鉄 | 4 分: B, C |
| 5 分: A, D | |
| 8 分: 2, 3 | |
![]() |
この広々としたハーレムの住居で、快適さ、便利さ、そしてスタイルの完璧な調和を見つけてください。主要なロケーションに位置するこの家は、モダンなアメニティ、考え抜かれたレイアウト、豊富な自然光を提供します。
この家には、三つの寝室、二つのフルバスルーム、そして各部屋にある通気性の良いエアコンがあります。更新された通り抜けキッチンはステンレス鋼の家電を備えており、室内の洗濯機/乾燥機は日常の贅沢を加えています。穏やかな西向きの景色はタウンハウスの庭と建物の美しい庭園を望み、街の中心にいながらも静かな雰囲気を提供します。
建物のアメニティには、プライベートコートヤード、新しく改装されたジム、防犯カメラ、常駐の管理人、自転車置き場、そして現地のガレージがあります。通勤は楽々で、BおよびC線がすぐ近くにあり、A線は10分以内でミッドタウンへの直通アクセスを提供し、2線も数ブロック先にあります。この完璧なロケーションには、いくつかの飲食店、小売店、公園があります。
現在、577ドルの特別評価が進行中です。
この人気のある地域でのこの特別な機会をお見逃しなく—今日、内見の予約をしましょう!
Discover the perfect blend of comfort, convenience, and style in this spacious Harlem residence. Situated in a prime location, this home offers modern amenities, a thoughtful layout, and abundant natural light.
This home features a spacious layout with three bedrooms, two full bathrooms, and through-wall air conditioning in every room. The updated pass-through kitchen boasts stainless steel appliances, and the in-unit washer/dryer add a touch of everyday luxury. Enjoy serene, west-facing views over townhouse gardens and the building’s beautifully landscaped courtyard—providing a tranquil atmosphere right in the heart of the city.
Building amenities include a private courtyard, a newly renovated gym, video security, a live-in superintendent, bike storage, and an on-site garage. Commuting is effortless, with the B and C trains just steps away, the A train offering direct midtown access in under 10 minutes, and the 2 train only a few blocks away. This perfect location hosts several eateries, retails shops and parks.
There is an ongoing assessment of $577.
Don't miss this exceptional opportunity in this sought-after neighborhood—schedule your viewing today!
This information is not verified for authenticity or accuracy and is not guaranteed and may not reflect all real estate activity in the market. ©2025 The Real Estate Board of New York, Inc., All rights reserved.







