| ID # | RLS20024368 |
| 物件の詳細 | Apple Bank Bldg 4 寝室, 4 バスルーム, 1 ハーフバス, 内装: 4055 ft2, 377m2 (DOM): 169 days |
| 建築年 | 1927 |
| 管理費 | $7,691 |
| 税金(年間) | $79,896 |
| 地下鉄 | 2 分: 1, 2, 3 |
| 8 分: B, C | |
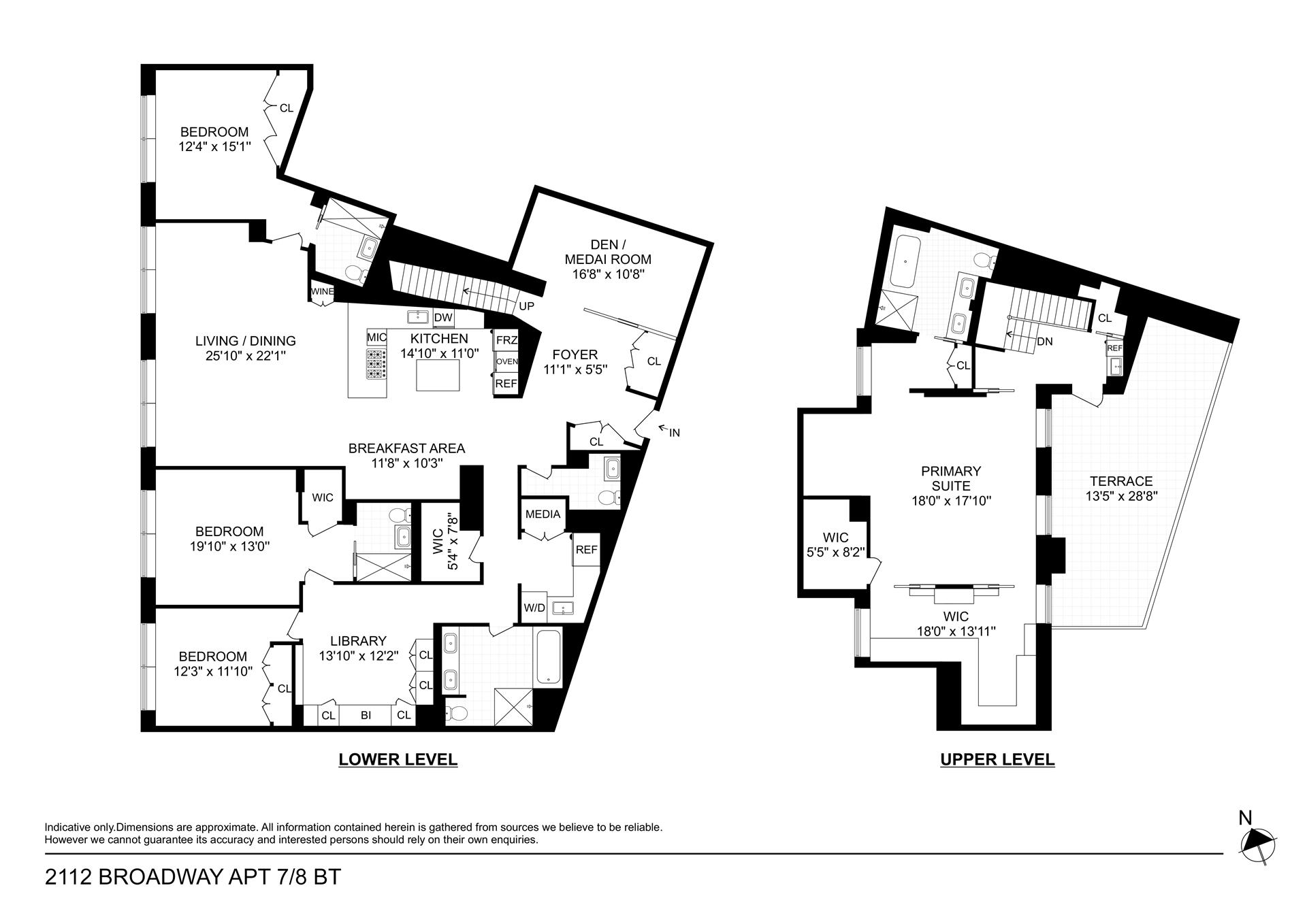
![]() |
時代を超えた洗練が感じられるランドマーク・アップルバンク・コンドミニアム
4,055平方フィートの洗練されたアッパーウエストサイドの生活空間に足を踏み入れてください。この4ベッドルームプラスデン、4.5バスのデュプレックスは、9'2"の天井、西向きの光、8インチ幅のホワイトオークの床が、どこにいても穏やかな洗練を感じさせる、スケール、快適さ、クラフトマンシップが細部にわたって融合しています。
家の中心には、GaggenauとMieleの家電、70本用のワイン冷蔵庫が2台、ゴミ処理装置、シームレスな機能と形を実現するスリムなポップアップコンセントを備えたカスタムイタリアンキッチンがあります。
広々とした玄関、オープンギャラリー/ラウンジ、そして適切なサイズの3つのベッドルームが、この階を娯楽や日常生活に最適な空間にします。換気されたランドリールームには、フルサイズのエレクトロラックス製洗濯機、組み込み式の加湿器、サブゼロ冷蔵庫、作業用シンク、豊富なキャビネットがあり、オーバーサイズのアイテム用の商業用ランドリールームへのアクセスも可能です。
上階には、穏やかな逃避の場であるプライマリースイートがあり、居心地の良いシッティングコーナー、大きなウオークインクローゼット、ディープソーキングバスタブ、放射状加熱の床、ガラス張りのシャワーを備えたスパ品質のバスが完備されています。382平方フィートの植栽テラスには、近くのコーヒーステーションもあり、屋内外の生活を effortless に楽しむことができます。
ビルとライフスタイル
1928年に建設され、2006年に改装されたアップルバンク・コンドミニアムは、建築的な壮大さと現代的な贅沢が見事に融合した稀有な存在です。28軒の住戸しかないこのフルサービスの白手袋ビルは以下の施設を提供します:
24時間のドアマンと常駐管理人、ペロトンとペロトントレッドミルを備えたフィットネスセンター、ペットグルーミングステーション、安全な自転車収納、住民用ランドリールーム、各住戸に個別の郵便受け
ブロードウェイとアムステルダムアベニューの間に理想的に位置し、セントラルパーク、リバーサイドパーク、リンカーンセンター、1/2/3地下鉄路線、および市内の最高のダイニングと文化がすぐそばにあります。
Timeless Sophistication at the Landmark Apple Bank Condominium
Step into 4,055 square feet of refined Upper West Side living at its finest. This 4-bedroom plus den, 4.5-bath duplex blends scale, comfort, and craftsmanship in every detail-where 9'2" ceilings, western light, and 8-inch-wide white oak floors create a sense of calm sophistication throughout.
At the heart of the home, a custom Italian kitchen anchors the main level with Gaggenau and Miele appliances, dual 70-bottle wine fridges, garbage disposal, and sleek pop-up outlets for seamless function and form.
A gracious foyer, open gallery/lounge, and three well-proportioned bedrooms make this floor ideal for entertaining or everyday living. The vented laundry room offers full-size Electrolux machines, a built-in humidifier, Sub-Zero refrigerator, utility sink, and abundant cabinetry-plus access to a commercial laundry room for oversized items.
Upstairs, the primary suite is a serene escape featuring a cozy sitting nook, oversized walk-in closet, and spa-quality bath with deep soaking tub, radiant heated floors, and glass-enclosed shower. A 382-square-foot planted terrace, complete with nearby coffee station, invites effortless indoor-outdoor living.
Building & Lifestyle
Originally built in 1928 and converted in 2006, the Apple Bank Condominium is a rare blend of architectural grandeur and modern luxury. With only 28 residences, this full-service, white-glove building offers:
24-hour doorman & live-in superintendent Fitness center with Peloton and Peloton treadmill Pet grooming station Secure bike storage Residents' laundry room Individual mailboxes for each home Ideally located between Broadway and Amsterdam Avenue, you're moments from Central Park, Riverside Park, Lincoln Center, the 1/2/3 subway lines, and the city's best dining and culture.
This information is not verified for authenticity or accuracy and is not guaranteed and may not reflect all real estate activity in the market. ©2025 The Real Estate Board of New York, Inc., All rights reserved.







