| ID # | RLS20024917 |
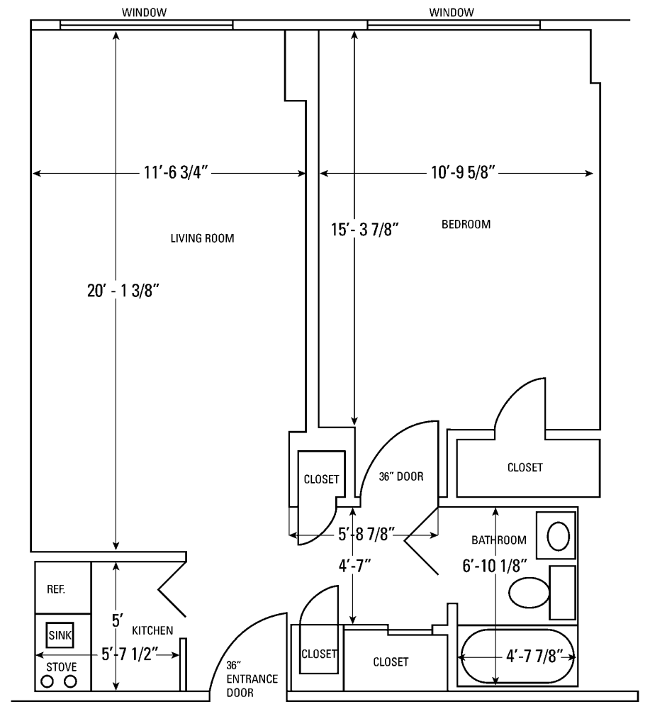
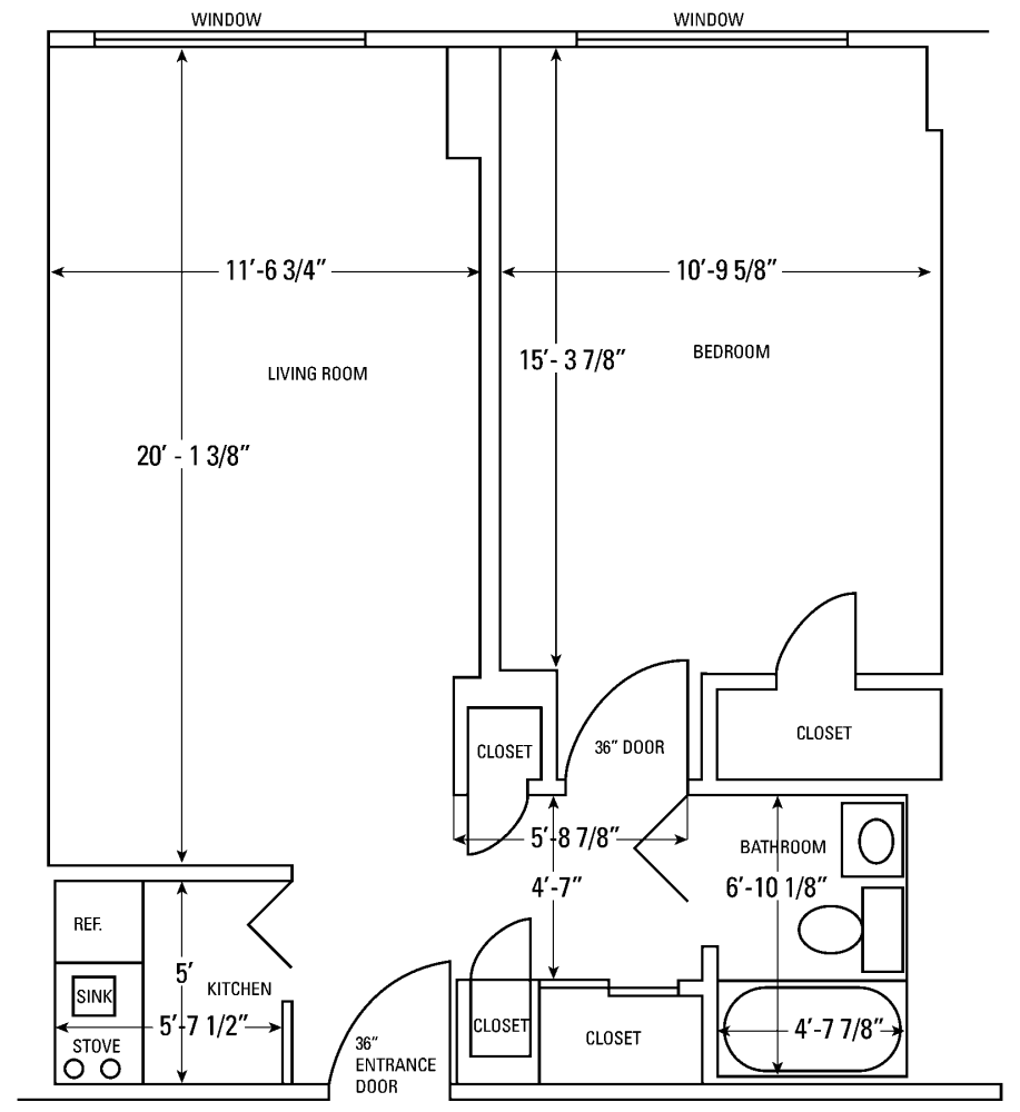
| 物件の詳細 | Isabella House 1 寝室, 1 バスルーム (DOM): 166 days |
| 建築年 | 1973 |
| 地下鉄 | 3 分: 1 |
| 10 分: A | |
![]() |
特別な機会:62歳以上の大人のための独立生活
- 毎日の昼食と夕食
- すべての公共料金と基本のケーブルテレビ
- 魅力的なレクリエーションおよび運動プログラム
- 音楽、アート、文化イベント
- 24/7のセキュリティで安心
- 屋外庭園
- 無料の訪問者用駐車場
- ADA対応のバスルーム
- 公共交通機関への便利なアクセス
- 敷地内のヘアサロン(追加料金)
- 泊まりのゲスト用宿泊施設(追加料金)
- ペットはケースバイケースでの対応
お部屋から息をのむようなニューヨーク市のスカイラインを楽しんでください。手入れの行き届いた庭で朝の飲み物を楽しむのに最適な場所です。
新品で、未入居 - 思慮深く改装され、あなた自身の空間にする準備が整っています。
- 1か月分の家賃のデポジットが必要です
- 申請料20.00ドル
- 見学の予約を希望されますか?今すぐお問い合わせください!
A Special Opportunity for Adults 62+
Independent Living
Daily lunch & dinner
All utilities plus basic cable
Engaging recreational & exercise programs
Music, art & cultural events
24/7 security for peace of mind
Outdoor garden
Free on-site visitor parking
ADA-accessible bathrooms
Convenient access to public transportation
On-site hair salon (extra charge)
Lodging for overnight guests (extra charge)
Pet's on a case by case basis
Experience the breathtaking New York City skyline views right from your living room. Enjoy the beautifully manicured garden, a perfect spot to sip your morning beverage.
Brand new, never lived in - thoughtfully renovated and ready for you to make it your own.
One month rent deposit is required
$20.00 application fee
Would you like to schedule a tour? Contact us today!
This information is not verified for authenticity or accuracy and is not guaranteed and may not reflect all real estate activity in the market. ©2025 The Real Estate Board of New York, Inc., All rights reserved.







