| MLS # | 864940 |
| 建築年 | 1950 |
| 税金(年間) | $33,711 |
| 燃料の種類 | 天然ガス Gas |
| エアコン | セントラルエアコン Central Air |
| LIRR | 0.5 マイル: "Westwood" |
| 0.7 マイル: "Malverne" | |
![]() |
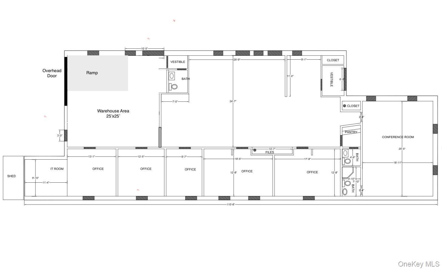
美しいプライムオフィススペースがリンブルック5コーナーのすぐそばにあります。リンブルック駅まで0.8マイル、マルヴァーンLIRRまで0.7マイルです。角には複数のバス停があります。
個別のオフィススペースは1,000ドルからスタートします。
最大3712平方フィートが月額35ドル/平方フィートで利用可能です(公共料金/CAM別)。
後方エリアは約1,100平方フィートで、別々の暖房/冷房の2つのオフィス、倉庫、9'-9"x 8'-9"のオーバーヘッドドアと1/2バスルームがあります。後方には取り外されたパントリーエリアがあり、再設置可能です。そのスペースは2,950ドルです。
前方エリアは約2,617平方フィートで、別々の暖房/冷房があり、シャワー付きのフルバスルーム、ハーフバスルーム、パントリーエリアがあります。全体の前方スペースは7,450ドルです。
建物には高い天井があり、自然光がたくさん入ります。鍵のないエントリーとカメラが設置されたガラスのロビーエリアがあります。
駐車場は12台分あります。適切な取引のために、カスタマイズして分割することが可能です。
Beautiful, prime office space located right at the Lynbrook 5 corners. 0.8 miles to Lynbrook train. 0.7 miles to Malverne LIRR. Multiple bus stops on the corner.
Individual office space starting at $1000.
Up to 3712 sqft available at $35/sqft per month plus utilities/CAM.
The rear area is about 1100sqft with separate heat/air 2 offices, warehouse, 9'-9"x 8'-9"overhead door in rear and 1/2 bath. There was a pantry area in the back that was removed but can be reinstalled. That space is $2950.
The front area is about 2617 sqft with separate heat/air and has a full bath with shower, a half bath and pantry area. The entire front space is $7450.
The building has high ceilings, lots of natural light, glass lobby area with keyless entry and cameras throughout.
There is parking for 12 cars. Can build to suit and subdivide reasonably for the right deal. © 2025 OneKey™ MLS, LLC







