| ID # | 865800 |
| 物件の詳細 | 4 寝室, 2 バスルーム, ガレージ, 外装: 0.18 エーカー, 内装: 1749 ft2, 162m2 (DOM): 163 days |
| 建築年 | 1950 |
| 税金(年間) | $13,678 |
![]() |
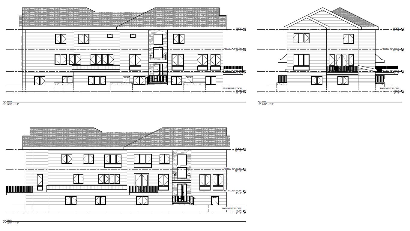
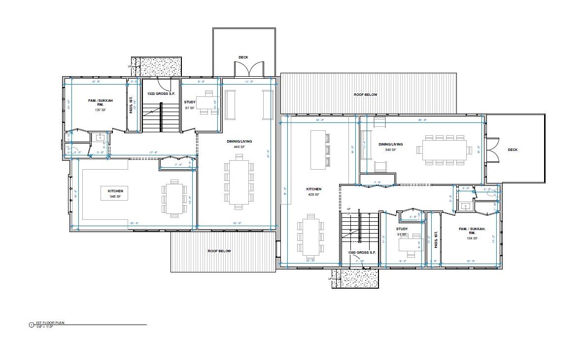
春谷の優良地に建築可能な区画 – 前面および背面の建設が承認済み
春谷の中心部に建築する素晴らしい機会です!この建築可能な区画には、美しい前面および背面の開発計画が承認されています – 添付の建築図面をご覧ください。開発業者または最終使用者のいずれにとっても、この地域で最も望ましい近隣の一つで直ちに建設を開始する珍しいチャンスです。
Shovel-Ready Lot in Prime Spring Valley – Approved for Front & Back Build
An exceptional opportunity to build in the heart of Spring Valley! This shovel-ready lot comes with approved plans for a beautiful front and back development – see attached architectural renderings. Whether you’re a developer or end-user, this is a rare chance to start building immediately in one of the area’s most desirable neighborhoods. © 2025 OneKey™ MLS, LLC







