| ID # | RLS20026687 |
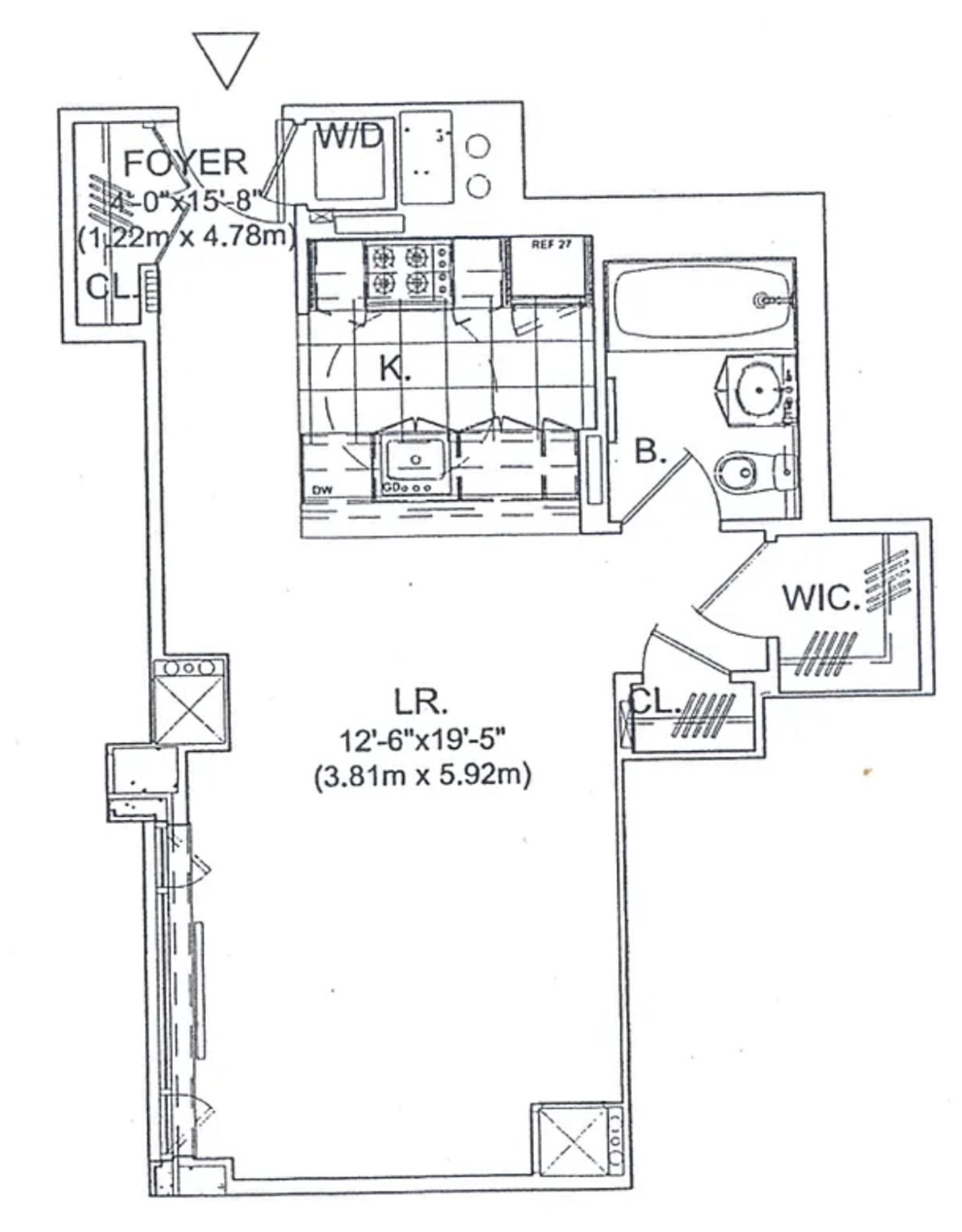
| 物件の詳細 | The Harrison スタジオアパート, 洗濯機, 乾燥機, 内装: 532 ft2, 49m2 (DOM): 158 days |
| 建築年 | 2007 |
| 管理費 | $828 |
| 税金(年間) | $12,108 |
| 地下鉄 | 3 分: 1 |
| 5 分: 2, 3 | |
| 9 分: B, C | |
![]() |
希少なKラインスタジオ、ロバート・A・M・スターンによって設計され、Related Companiesが開発したアッパーウエストサイドの premier コンドミニアムビルの灯台です。
- 2026年6月30日までのテナントが入居中で、家賃は$3,950です。
ユニット内に洗濯機と乾燥機を備えた豪華なスタジオで、エントリーフォイヤーがエレガントなフルシェフのキッチンへと導きます。白いクォーツサイトのオープンカウンタートップとバックスプラッシュがあり、高級な家電(サブゼロの冷蔵庫、バイキングのストーブ/オーブン、ミーレの食器洗い機)が備わっています。10フィートの天井と西向きの大きな窓から自然光が差し込みます。ウォークインを含む3つの大型クローゼット、フルバスルーム、広々としたリビングスペースがあります。
卓越したRelated Signatureコンシェルジュと24時間のドアマン、常駐のレジデントマネージャー、バイキングのBBQグリルと庭を備えた居住者ラウンジ、手入れの行き届いた別の屋上テラス、改装された居住者用ジム、子供の遊び場、そしてビルへの入り口があるガレージ駐車場を含むアメニティがあります。エクイノックスのメンバーのために、ハリソンの住民は76丁目エクイノックスの場所に直接プライベートエレベーターアクセス(特別な住民割引メンバーシップのオプションあり)があります。
すべて、自然史博物館、UWSの最高のショッピングとレストラン、セントラルパーク、リバーサイドパークまですぐのところにあり、すべての交通機関へのアクセスも便利です。
Rarely available K line Studio, Designed by Robert A.M. Stern, is the beacon of Upper West Sides" premier condo building developed by Related Companies.
- Tenant in place until 06/30/26 paying $3,950
A luxurious studio w/ W&D in unit, entry foyer invites you into the elegant full chef's kitchen open counter top w/ white quartzite & backsplash and comes w/ high end appliances: Subzero refrigerator, Viking stove/oven, Miele dishwasher. 10" ceiling and large window welcomes natural light from West exposure. Ample storage w/ 3 large closets including a walk-in, a full bathroom and spacious living space.
Exceptional Related Signature Concierge and 24-hour doorman, live-in resident manager and amenities including residence lounge w/ outdoor seating w/ Viking BBQ Grill and garden, a separate manicured roof top terrace, a renovated resident gym and child's playroom, and garage car park w/ entry to building. For the Equinox members, Harrison residents exclusively have direct private elevator access to the 76th Street Equinox location (w/ option for special resident membership discount).
All just steps away from The Museum of Natural History, the best shopping and restaurants in the UWS, Central Park and Riverside Park, and is convenient to all transportation.
This information is not verified for authenticity or accuracy and is not guaranteed and may not reflect all real estate activity in the market. ©2025 The Real Estate Board of New York, Inc., All rights reserved.







