| ID # | RLS20026301 |
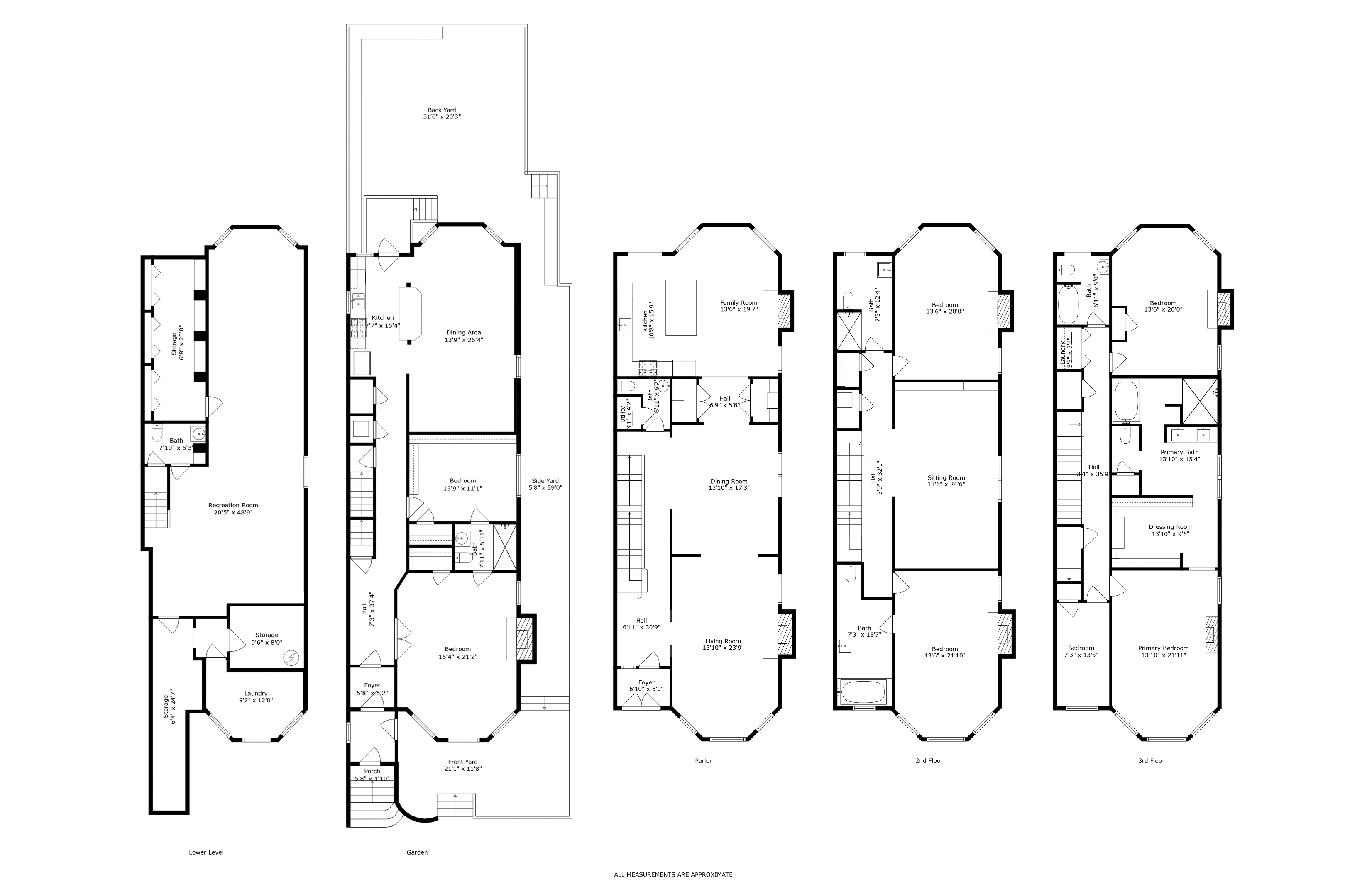
| 物件の詳細 | 6 寝室, 5 バスルーム, 2 ハーフバス, 食器洗い機, 洗濯機, 乾燥機, ガレージ, 内装: 6600 ft2, 613m2 (DOM): 187 days |
| 建築年 | 1920 |
| 税金(年間) | $25,152 |
| 地下鉄 | 2 分: A, C, B, D |
| 6 分: 1 | |
| 10 分: 3 | |
![]() |
驚くべきデザイナータウンハウス
147丁目の角に位置するこの広々とした23フィート幅のセミデタッチドハウスに足を踏み入れた瞬間、修復されたオリジナルのディテールと洗練された現代デザインのシームレスな融合に魅了されることでしょう。現在はオーナーのトリプレックスに構成されており、訪問者の家族やゲストのためのプライバシーを提供するための理想的なガーデンレベルのアパートメントや、別の賃貸ユニットとしても利用可能です。各ユニットにはプライベートエントランスがあります。
この6,600平方フィートの家の隅々まで、愛情を込めて修復された戦前のディテールを見せるように美しくキュレーションされており、HVACユニットを含むすべてのシステムがアップグレードされています。各フロアには個別のNESTコントロールがあり、7つの機能するガス暖炉、1階と2階、ガーデンにワイヤレススピーカーがあります。
パーラーフロア: メインエントランスは、豊かな木工作品と優雅に配置されたヘリンボーンの床タイルを披露することで、訪れる人にこれから楽しめる内容を予見させます。パーラーフロアには、柔らかい曲線を描くベイウィンドウと暖炉を備えたエレガントな前面リビングルームがあり、インプレッシブなフォーマルダイニングルームに開放しています。ダイニングルームのすぐ外には、シックなパウダールームがあります。太陽が差し込む、実用的かつ美しいアイランドキッチンには、複雑な装飾木工、大きなパントリー、カスタムキャビネット、オープンシェルフ、高級家電があり、庭を見ながら朝食を楽しめます。
セカンドフロア:優美な階段を上がった2階には、大きなスプリットベッドルームが2室、暖炉付きのモダンなバスルームが2室、喧騒から離れてリラックスできる穏やかな中央のサロンがあります。サロンは、コンベントアベニューの静かな景色を眺め、大きなチルト&ターンウィンドウがあり、印象的なオリジナルの鍛鉄ジュリエットバルコニーに開放しています。
サードフロア:さらにもう一段階上がった最上階は、スカイライトで覆われています。この静かなフロアには、豪華なプライマリーバスルーム付きの主寝室があります。もうひとつの大きな寝室があり、小さな5番目の寝室またはホームオフィスとして利用できる部屋もあります。同様に重要なのは、フルサイズの洗濯機と乾燥機が備えられたランドリーエリアです。
ガーデンフロア(別ユニット):ガーデンアパートメントは、仕上げられた地下室へのアクセスがあるフロアスルーユニットです。優雅にカーブしたベイウィンドウと美しいオリジナルの暖炉を備えた魅力的なこのアパートメントには、大きなガラスで囲まれた立って使用するシャワー、最近使用されていた憧れのウォークインクローゼット、広々としたオープンキッチン、ダイニング、リビングルームがあります。キッチンからは、Greenery NYCによってデザインされた静かなプライベートガーデンへのアクセスがあります。グリルを楽しんだり、エンターテインメントをしたり、屋外ダイニングを楽しんだりできます。
仕上げられた地下室:ガーデンフロアの下には、タイル張りの床、ハーフバスルーム、たくさんのストレージスペースがある仕上げられた地下室があります。この部屋は、レクリエーションルームや男性の隠れ家、ホームジム、または他のニーズに適した素晴らしい追加スペースです。家全体の面積は6,600平方フィートですが、この地下レベルを除くと、上部の4フロアの合計は5,275平方フィートです。
歴史的なハミルトンハイツ地域にあるシュガーヒル歴史地区のこのユニークな家で歴史を所有してください。19世紀初頭にアレクサンダー・ハミルトンが33エーカーの土地に建設したカントリーヴィラ「ハミルトングランジ」にちなんで名付けられました。既存の素晴らしい家々は主に19世紀後半から1930年代にかけて建設されました。コンベントアベニューの壮大で一貫した建物群は、この地域の豊かな歴史を呼び起こし、映画撮影や建築愛好家に人気のある場所となっています。このニューヨーク市の隠れた宝石をぜひご覧ください!ジャッキー・ロビンソンパークまで徒歩数分、セント・ニコラスパークも近くです。お気に入りの近隣レストランには、ハーレムパブ、オソ、シュガーヒルクリーマリー、チップカップ、ハンドプルヌードルがあります。
STUNNING DESIGNER TOWNHOUSE
From the moment you step inside this grand, 23'-wide, semi-detached home on the corner of 147th Street and picturesque Convent Avenue, you'll be enchanted by the seamless blend of restored original detail and pristine contemporary design. This is currently configured as an owner's triplex, with a garden level apartment that is ideal for providing privacy for visiting family, guests, or as a separate rental unit. Each unit has a private entrance.
Every inch of this 6,600 square foot home has been gorgeously curated to showcase the lovingly restored prewar details, while upgrading all systems, including HVAC units with separate NEST control on each floor, 7 functioning gas fireplaces, and wireless speakers on the first two floors and in the garden.
PARLOR FLOOR: The main entrance gives a preview of what is to come by showcasing the rich woodwork throughout as well as elegantly laid herringbone floor tile. The parlor floor hosts an elegant front living room with softly curving bay windows and a fireplace and opens into the impressive formal dining room with views onto Convent Avenue. A chic powder room is conveniently located just off the dining room. The sunny, eat-in-kitchen is as beautiful as it is practical with intricate ornamental woodwork, plenty of storage including a large pantry, custom cabinetry and open shelving and high end appliances. Enjoy your breakfast in this cheerful room, looking out into the garden.
SECOND FLOOR:
Up the graceful staircase on the second floor are two, large, split bedrooms each with a fireplace , 2 sleek modern bathrooms and a serene central sitting room ideal for unwinding away from the commotion downstairs. The sitting room looks out onto serene Convent Avenue with oversized Tilt & Turn windows that open onto striking original wrought iron Juliet Balcony.
THIRD FLOOR:
Up one more set of stairs to the top floor capped with a skylight. This serene floor hosts the primary bedroom which features a luxurious primary bathroom complete with double shower. Another large bedroom is on this floor along with a smaller 5th bedroom or potentially home office. Equally important is the laundry area with full-sized washer and dryer.
GARDEN FLOOR (Separate Unit):
The garden apartment is a floor through unit with access to the finished basement. With the same lovely curving bay windows and a beautiful original fireplace, this charming apartment has a fully tiled bathroom with large, glass enclosed standing shower, center room currently used as an envy-inducing walk-in closet, and a spacious open kitchen, dining and living room. Off of the kitchen, is access to the peaceful private garden designed by Greenery NYC. Enjoy grilling, entertaining and al fresco dining.
FINISHED BASEMENT:
Beneath the garden floor is a finished basement with tiled floors, a half bathroom and lots of room for storage. This room is great additional space for a rec room/man cave, home gym, or any other need you might have. The full square footage of the house is 6,600, but excluding this basement level, the top four floors total 5,275sqft.
Own a piece of history with this one-of-a kind home in the Sugar Hill Historic District within the larger Hamilton Heights neighborhood. Named after Alexander Hamilton, who built his country villa, Hamilton Grange, on 33 acres in the early 19th century, the existing magnificent homes were largely built between the late 19th century through the 1930's. Convent Avenue's majestic and cohesive buildings evoke the rich history of the neighborhood making it a popular location for film shoots and architecture enthusiasts. Come and see this hidden jewel of New York City! Jackie Robinson Park is just minutes away, as is St. Nicholas Park. Favorite neighborhood restaurants include Harlem Public, Oso, Sugar Hill Creamery, Chipped Cup, and Hand Pulled Noodle.
This information is not verified for authenticity or accuracy and is not guaranteed and may not reflect all real estate activity in the market. ©2025 The Real Estate Board of New York, Inc., All rights reserved.







