| ID # | RLS20028000 |
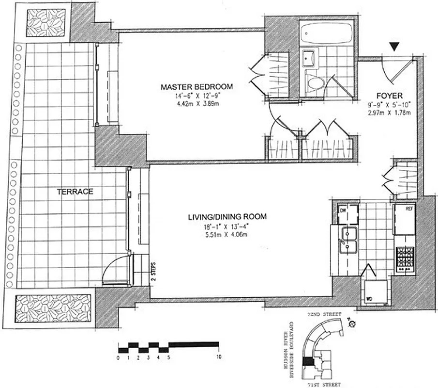
| 物件の詳細 | 1 寝室, 1 バスルーム, 洗濯機, 乾燥機, 内装: 825 ft2, 77m2 |
| 建築年 | 2004 |
| 地下鉄 | 6 分: 1, 2, 3 |
![]() |
唯一のリバー フェーシング、ハイ フロアの 1 ベッドルームで、大きな 261 平方フィートのセッティング テラス付き!プライベートな屋外スペースでリラックスし、美しいハドソン川と夕日をお楽しみください。他の主なアパートの特徴には、グラニットカウンタートップとステンレス製のアプライアンスを備えたポッゲンポールのパススルーキッチン、大容量のクローゼット、洗濯機/乾燥機が含まれます。ビルの特徴には、24 時間のホワイトグローブ コンシェルジュ サービスと常駐のレジデントマネージャー、2 つのプールを備えた 15,000 平方フィートのフィットネスセンター、サウナ、スチームルーム、マッサージルーム、有酸素運動スタジオ、男女別ロッカールーム、バレットパーキングガレージ、ドライクリーニングおよびハウスキーピングサービス、プライベートシアタールーム、ファンクションルーム、子供プレイルーム、そして手入れされた庭園コートヤードが含まれます。
The ONLY River-Facing, High-Floor 1-Bedroom with a Large 261sf Setback Terrace! Come relax on your own Private Outdoor Space and enjoy the beautiful Hudson River and Sunset Views. Other key apartment features include: Poggenpohl Pass-Through Kitchen with Granite Countertops and Stainless Steel Appliances - Abundant Closet Space - and Washer/Dryer. Building features include: 24hr White-Glove, Concierge Service & Live-In Resident Manager - 15,000sf Fitness Center with 2 Pools, Saunas, Steam Rooms, Massage Rooms, Aerobics Studio & Men's and women's locker rooms - Valet Parking Garage - Dry Cleaning and Housekeeping Services - Private Screening Room - Function Room - Children’s Playroom - and Landscaped, Garden Courtyard.
This information is not verified for authenticity or accuracy and is not guaranteed and may not reflect all real estate activity in the market. ©2025 The Real Estate Board of New York, Inc., All rights reserved.







