| ID # | RLS20028629 |
| 物件の詳細 | 2 寝室, 2 バスルーム, 食器洗い機, 洗濯機, 乾燥機, 内装: 1976 ft2, 184m2 (DOM): 211 days |
| 建築年 | 1900 |
| 管理費 | $650 |
| 税金(年間) | $8,472 |
| バス | 2 分: B61, B63 |
| 6 分: B57 | |
| 7 分: B103, B25, B26, B38, B41, B45, B52 | |
| 9 分: B62, B65 | |
| 地下鉄 | 6 分: R |
| 8 分: 4, 5, 2, 3 | |
| LIRR | 1.3 マイル: "Atlantic Terminal" |
| 2.8 マイル: "Nostrand Avenue" | |
![]() |
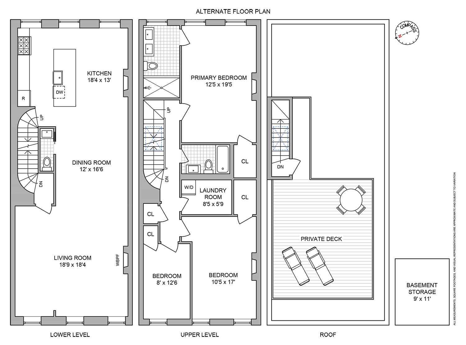
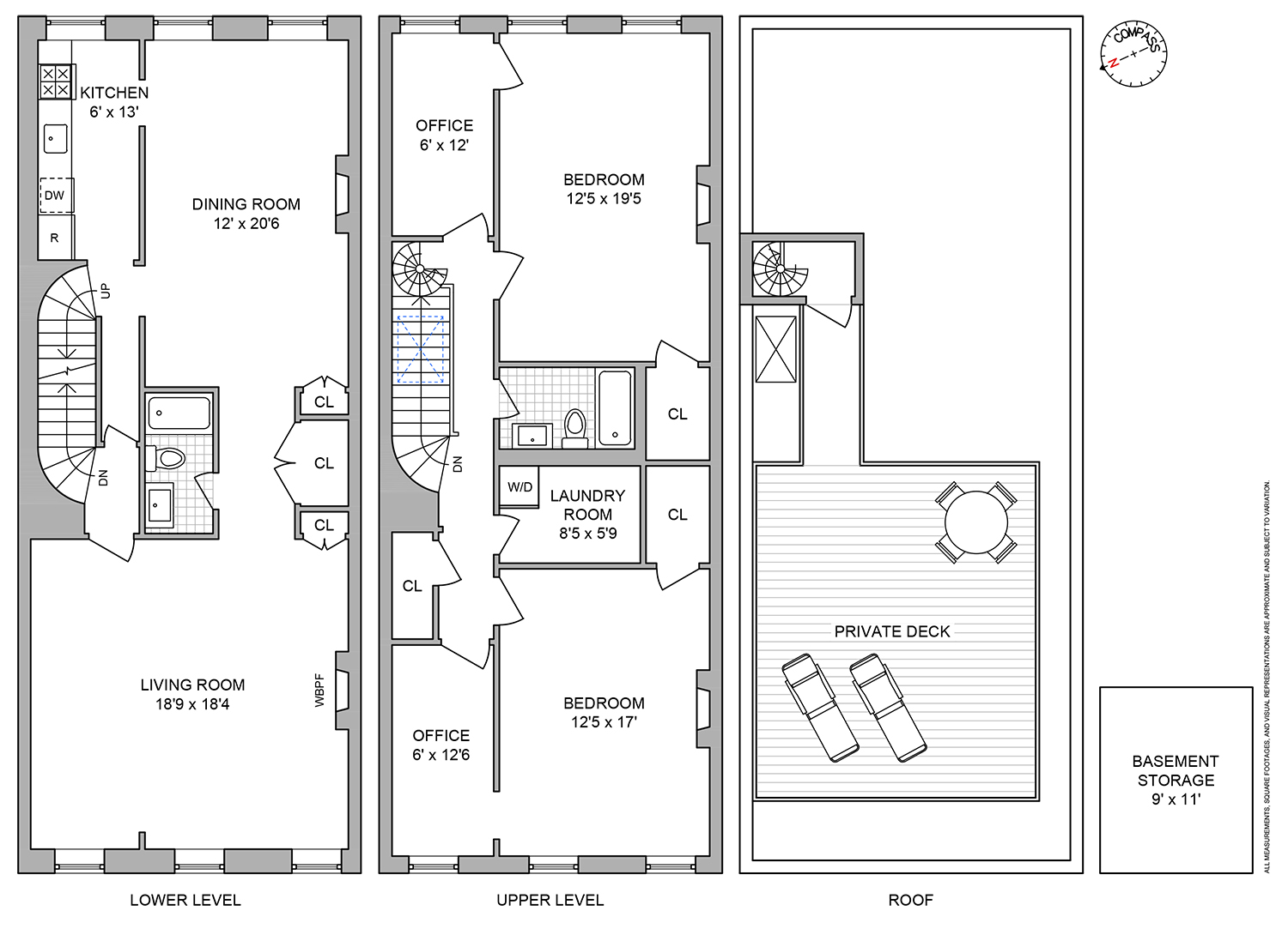
294 Hicksは、時代を超えた魅力に満ちた魅力的な歴史的住居であり、その最大の可能性を引き出すために洗練された目を待っています。これは、美しいキャンバスを深く個人的で本当に非凡なものに変えようとするビジョンを持つ人々にとっての貴重な機会です。あなたのインスピレーション、建築家、そして可能性の感覚を持ち込んでください。
プライベートなルーフトップテラスで、金色の光に包まれた街を見渡しながら朝を始めましょう。優雅に配置された2つの階にわたるこの住居は、豊かなオリジナルのオークフロアと作動する暖炉を備えています—4つの暖炉のうちの1つで、他の3つは完全に機能するように修復可能で、それぞれが素晴らしい大理石のマントルで飾られています。広々とした寝室が2部屋、静かなホームオフィスが2つ、フルバスルームが2つ、専用のランドリールーム、豊富なクローゼットスペース、風通しの良い天窓、別の地下収納を提供し、機能性と魅力の調和の取れたブレンドを実現しています。ニューヨーク市で最も活気に満ちて求められるコミュニティの中心部で、非常に低い月額支払いとブティック生活の魅力をお楽しみください。
ブルックリンハイツの最も魅力的なブロックの1つに位置するこの明るい聖域は、広々とした窓を通して日を迎え、日光が表面を優雅に舞うのを歓迎します。主要な交通機関の近くにユニークに位置するこの貴重な場所は、絵のように美しい連棟住宅、立派な一戸建て邸宅、緑豊かな公園、魅力的なブティック、文化的ランドマーク、モンタギュー通りやアトランティックアベニュー沿いの無限のダイニング、カフェ、ショッピングの目的地に囲まれています。
家以上の存在—これは体験です。歴史が隅々からささやく魂のある戦前の宝石であり、壮大で劇的な景色が時間をも停止させるように見えます。ここでは、時代を超えた魅力と現代的な快適さが静かな調和の中で共存しています。
294 Hicks is a charming historic residence filled with timeless character and it awaits a discerning eye to bring out its fullest promise. This is a rare opportunity for those with vision, ready to transform a beautiful canvas into something deeply personal and truly extraordinary. Bring your inspiration, your architect, and a sense of possibility.
Begin your mornings on a private rooftop terrace as the city stretches out before you, bathed in golden light. Spanning two gracefully appointed floors, this residence showcases rich original oak floors and a working fireplace—one of four, with three others that can be restored to full functionality—each framed by an exquisite marble mantel. With two generously sized bedrooms, two peaceful home offices, two full baths, a dedicated laundry room, abundant closet space, airy skylights, and separate basement storage, this home offers a harmonious blend of functionality and charm. Enjoy exceptionally low monthly payments and the allure of boutique living in the heart of one of Brooklyn’s most vibrant and sought-after communities.
Nestled on one of Brooklyn Heights’ most enchanting blocks, this luminous sanctuary welcomes the day through generous windows, where sunlight dances across the surfaces with effortless grace. Uniquely situated near major transportation options—including key subway lines and the NY Waterway to Wall Street—this prized location is nestled among picturesque row houses, grand single-family mansions, lush parks, charming boutiques, cultural landmarks, and the endless dining, café, and shopping destinations along Montague Street and Atlantic Avenue.
More than a home—this is an experience. A soulful pre-war gem that whispers history from every corner, where soaring, dramatic views seem to suspend time itself. Here, timeless charm and modern comfort coexist in quiet harmony.
This information is not verified for authenticity or accuracy and is not guaranteed and may not reflect all real estate activity in the market. ©2025 The Real Estate Board of New York, Inc., All rights reserved.







