| ID # | RLS20028784 |
| 物件の詳細 | スタジオアパート, 3 ハーフバス, 内装: 5800 ft2, 539m2 (DOM): 152 days |
| 建築年 | 2007 |
| 管理費 | $1,200 |
| 税金(年間) | $54,588 |
| 地下鉄 | 6 分: C, E |
| 7 分: 1 | |
| 8 分: A, B, D | |
| 9 分: N, Q, R, W | |
![]() |
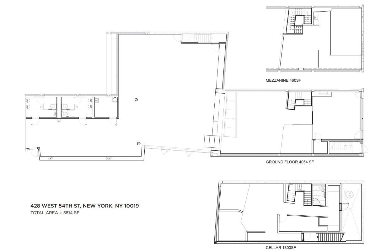
デザイナーが改装したオフィス/小売スペースで、54丁目に25フィートの店舗前面がある。ディロンコンドミニアムの一部だが、別の入口がある。
1階 - 4054平方フィート:ロビーと受付、オープンスペース、トイレ2つ(男性用と女性用、それぞれ2つの個室付き)および収納。
地下 - 1300平方フィート:オフィス2室、共用エリア、収納、キッチン、トイレ1つ。54丁目から地下への直接アクセスもある。
メザニン - 460平方フィート:簡易キッチン、デスク用のオープンスペース。
54丁目から2つのアクセスがあり、またディロンコンドミニアムの53丁目側にあるスペースの裏口もある。
多くの天窓があり、北向き、南向き、東向きの自然光がたくさん入る。
トップロケーションで、コロンバスサークル、50丁目の地下鉄、タイムズスクエアに近く、近くには多くのレストランやバーがある。
月額共益費は約$1200。
月額税金は$4549。
5%のコブローカー手数料
また、賃貸としても利用可能で、金額は$48,500です。
Designer renovated Office/Retail space, with 25ft storefront on 54th street. Part of the Dillon Condominium, but with separate entrance.
Ground floor - 4054 SF: lobby and reception and open space, 2 bathrooms (men and women, with 2 stalls each) and storage.
Basement - 1300 SF: 2 offices, one common area, storage, kitchen, one restroom. There is also direct access from the 54th street directly into the basement.
Mezzannine - 460 SF: kitchenette, open space for desks.
There are 2 accesses from 54th street, as well as a private door in the back of the space, from the Dillon Condominium, on 53rd st.
Lots of natural light, with many skylights and north, south and east exposure.
Top location, close to Columbus Circle, 50th St Subway and Times Square, with many restaurants and bars nearby.
Monthly common charges are Approx $1200.
Monthly taxes are $4549.
5% Co Broke
It is also available TO RENT asking $48,500
This information is not verified for authenticity or accuracy and is not guaranteed and may not reflect all real estate activity in the market. ©2025 The Real Estate Board of New York, Inc., All rights reserved.







