| MLS # | 874778 |
| 物件の詳細 | 7 寝室, 7 バスルーム, 1 ハーフバス, 食器洗い機, 洗濯機, ガレージ, エアコン, 外装: 0.57 エーカー, 内装: 5900 ft2, 548m2 (DOM): 148 days |
| 建築年 | 2025 |
| 税金(年間) | $7,500 |
| エアコン | セントラルエアコン Central Air |
| LIRR | 3.5 マイル: "Southampton" |
| 3.7 マイル: "Hampton Bays" | |
![]() |
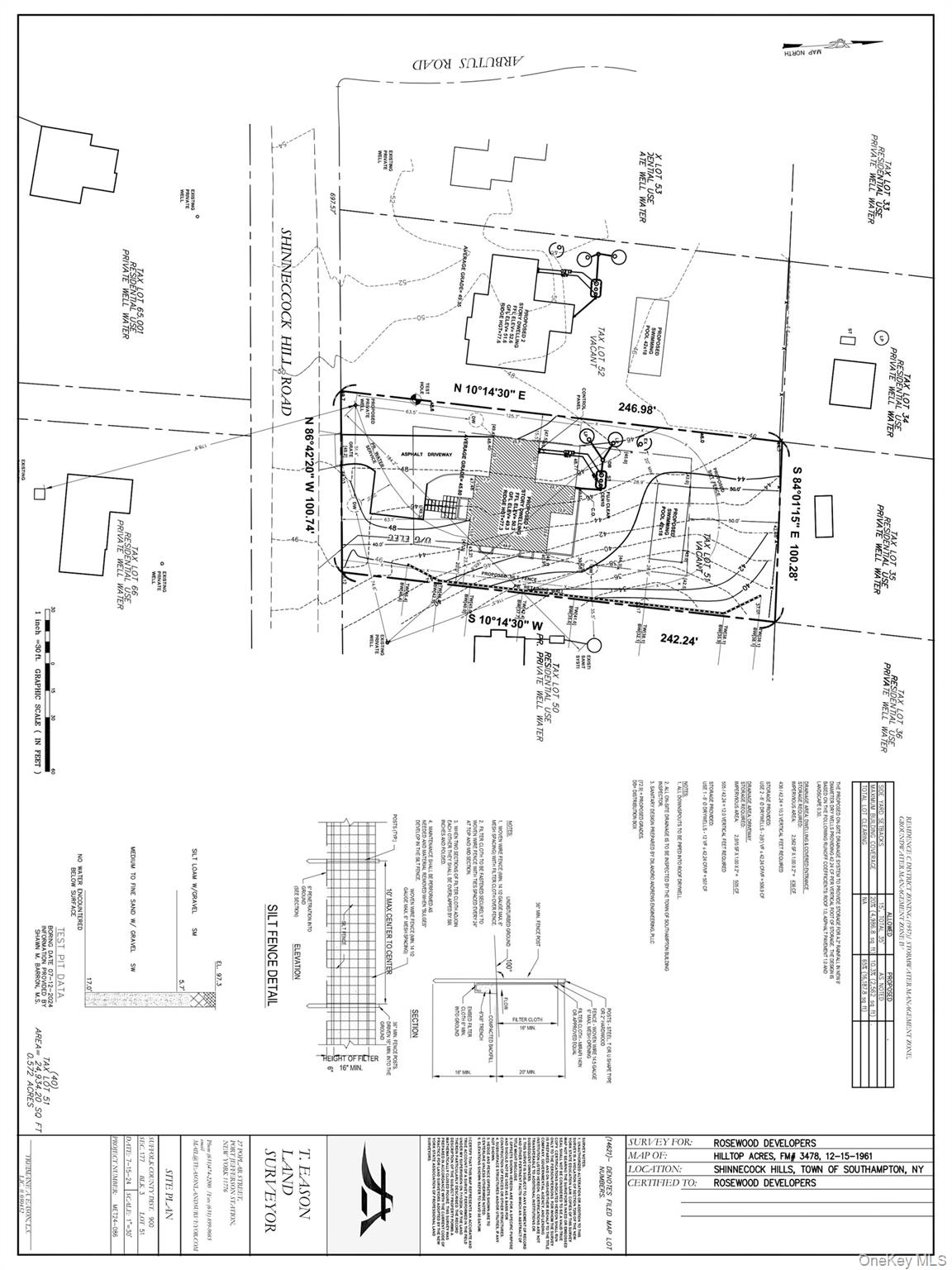
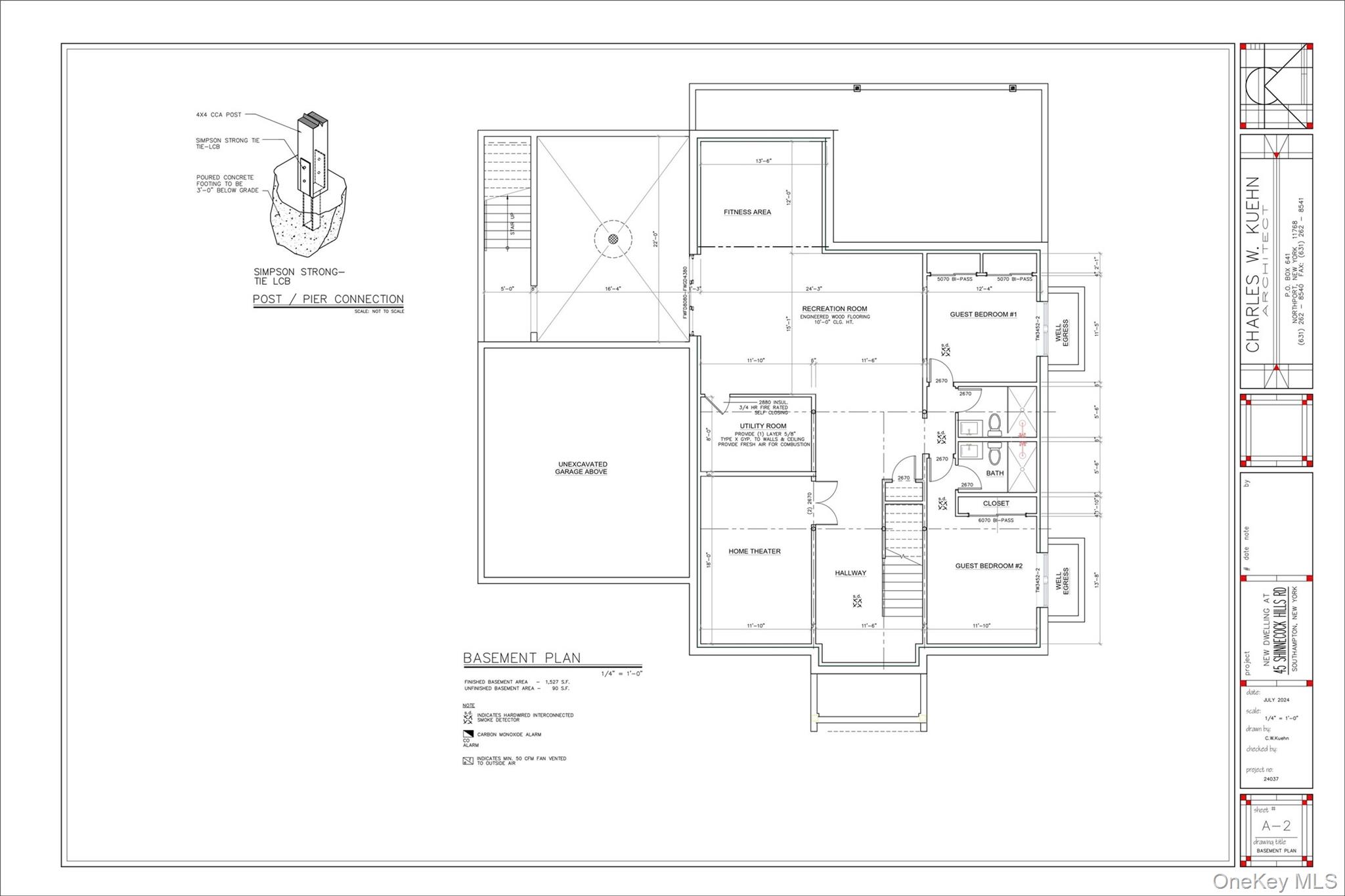
この魅力的な5900平方フィートの新しいトランジショナルホームは、シニコックゴルフコース、美しい自然保護区、そしてシニコック湾の間に位置する2つのうちの1つで、現在完成に近づいています。こちらはまだ販売中ですが、もう一つはすでに売却済みです。プレ完成段階では購入者によるカスタマイズが可能ですが、ほぼ完成に近づいているため急ぐ必要があります。街にはハイキングコースを備えた大きな自然保護区へのアクセスがあり、ゴルフコース、村、マリーナ、ビーチにも車で数分でアクセスできます。これらの住宅は実力派のペアです。各住宅は7つの寝室、7.5のバスルーム、広々とした0.56エーカーの敷地を有し、どちらも非常に美しい緩やかな丘陵地に、20×42フィートのガナイトプールとスパ、素晴らしい既存および予定の田舎風景を楽しむことができます。ビルダーであるローズウッドデベロッパーズは、長く続く品質と特異性、比類のないディテールの仕上げ、無欠の評判、そして建築および販売するすべての住宅に対する最高の技術と材料へのコミットメントで知られています(最近では74シニコックヒルズRd.、サウサンプトンと84および88サウスカントリーRd.、レンセムバーグ、593フライングポイントRd.、ウォーターミル - すべて販売済みです。グーグルで調べてみてください)。これらの傑作は、高い天井と考え抜かれた間取り/フロープランの使用により、オープンな居住空間を最大化するクリエイティブな建築を通して、ハンプトンズのラグジュアリーな生活体験を強調します。オープンキッチンコンセプトは、素晴らしいシェフのキッチン、プロフェッショナルな家電、複数のシンク、そして美しい滝とテーブル付きのクォーツカウンタートップを特徴とします。この中央に位置する近隣地域は、ニューヨーク市からのアクセスの良さ、サウサンプトン村への近接性、複数の世界クラスのゴルフコース、サウサンプトンの多くの手つかずのビーチのおかげで、新しいラグジュアリー建設の魅力的な場所となっています。さらに、この近隣地域は、敷地内の自然保護区のトレイル、南ハイウェイおよび湾、そして近接するマリーナや海のビーチへ直通するプライベート接続パスを介して、ハイキング、自転車、ボート、海洋生物を好む人々に特別な関心を引き寄せています。このサウサンプトンのスポットは、長い島のノースフォークへの入り口としても知られ、多くの週末アトラクション、ワイナリー、蒸留所、ゴルフコース、マリーナがあります。ぜひ、ローズウッドデベロッパーズの住宅を見学するためにご連絡ください。
This handsome 5900 square foot new Transitional home is one of two that are being completed now that will be nestled squarely in between the Shinnecock Golf Course, a beautiful nature preserve and the Shinnecock Bay. This one is still available the other is already sold. Pre-completion allows for some buyer customization but you need to hurry as its almost complete. Enjoy access to a large nature preserve with hiking trails on the street and access to the golf courses, village, marinas and beaches within minutes by car. These homes are a solid pair of Aces. Each will enjoy 7 bedrooms, 7.5 baths, a generous .56 acre property - both with extremely picturesque, gently rolling rear yards that will each enjoy a 20 x 42 ft. gunite pool with spa, and magnificent existing and planned country landscaping. The builder, Rosewood Developers, is known in the industry for building homes of lasting quality and distinction, finishes of incomparable detail, their flawless reputation, and their commitment to the highest standard of skill and materials for each home that they build and sell (most recently 74 Shinnecock Hills Rd., Southampton and 84 and 88 South Country Rd., Remsenburg., and 593 Flying Point Rd., Watermill - All sold - google them). These masterpieces will underscore the Hamptons luxury living experience through creative architecture that maximizes open living space through the use of high ceilings and a well thought out floor/flow plan. The open kitchen concept will feature a magnificent chef's kitchen, professional appliances, multiple sinks and a gorgeous waterfall and seated quartz countertop. The centrally located neighborhood has become a magnet for new luxury construction because of it's ease of access from New York City, it's proximity to Southampton Village and multiple world class golf courses, and the many pristine beaches of Southampton. Additionally, this neighborhood is attracting a special interest for those who favor hiking, bicycling, and boating and marine life because of the trails in the on premise nature preserve and bike, e-bike, or scooter access via private connecting path that leads directly to the South Highway and bay, multiple marinas and ocean beaches just to the south of the neighborhood. This Southampton spot is also known as the gateway to the Northfork of Long Island with it's plethora of weekend attractions like vineyards, distilleries, golf courses, and marinas. Please contact us for a tour of a Rosewood Developers home today. © 2025 OneKey™ MLS, LLC







