| ID # | RLS20029756 |
| 物件の詳細 | 4 寝室, 3 バスルーム, 1 ハーフバス (DOM): 145 days |
| 建築年 | 1910 |
| 地下鉄 | 2 分: F, Q |
| 4 分: 6 | |
| 5 分: N, W, R, 4, 5 | |
![]() |
860レキシントンアベニューへようこそ!
珍しく出てくる、大きな改装済みの真の4ベッドルームデュプレックスアパートメント、プライベートルーフデッキ付き。
このビルには商業スペースが1つと住宅が1つだけあり、とてもプライベートです。ビルは全面的に改装され、美しく復元されたディテールが驚くべきモダンなヨーロッパの設備、クォーツ石の壁、オリジナルの露出したレンガの壁、LED照明と融合しています。天井は9フィートから10フィート、オリジナルの手すりがあります。
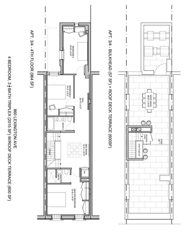
この広々とした2,000平方フィート以上の4ベッドルーム3.5バスのデュプレックスは、3階と4階全体を占有し、600平方フィートのプライベート屋上には息を飲むような都市の景色が広がっています。屋上は全体の屋根を覆っており、屋外活動に十分なスペースがあります(朝日ヨガ、夕日瞑想、ディナーやイベントの開催を考えています)。
オープンフロアプランの1階は、オープンキッチン、大きなリビングスペース(オリジナルの装飾的な暖炉付き)、1ベッドルーム、1.5バスで構成されています。キッチンにはヨーロッパの電化製品と設備、グレーのソフトクローズ木製キャビネット、裏面が塗装されたガラスのバックスプラッシュ、追加のワイン冷蔵庫、たっぷりの収納スペースがあります。
2階には3ベッドルーム、2バス、追加のリビングルームスペース/メディアルームまたは図書室があり、ここは完璧な家となります。
3.5バスは床から天井までタイル張りで、モダンなヨーロッパの設備、すべてガラスのシャワードア、ロバーンキャビネット、拡大鏡付きミラーで仕上げられています。
このユニットはホワイトオークのハードウッドフロア、中央空調、ランタルラジエーター、ヨーロッパ製のハードウェア、オリジナルの装飾的な暖炉、すべて新しい音遮断ウィンドウ、南、東、西の露出、十分なクローゼットスペース、ベッドルームの黒遮光シェード、すべての窓にソーラーシェード、ハードワイヤードデータおよびケーブル受信器、サイドレビデオインターホン、洗濯機と乾燥機が備わっています。
これはプライムなアッパーイーストサイドの完璧な家です!
Welcome to 860 Lexington Avenue!
Rarely Available, Large, Renovated True 4 Bedroom Duplex Apartment with Private Roof Deck.
The building has only 1 commercial and 1 other residential. Very private. The building has been gut renovated, with beautifully restored details fused with stunning modern European fixtures, quartzite walls, original exposed brick walls and LED lighting, 9 to 10 ft ceilings, original banisters
This spacious 2,000+ sq. ft. 4 bedroom 3.5 bath duplex occupies the whole 3rd and 4th floor and includes a 600 sq. ft. private rooftop with breathtaking city views. The rooftop runs through the whole roof giving plenty of space for outdoor activities (thinking of sunrise yoga, sunset meditations, hosting dinners and events).
The open floor plan first level consists of an open kitchen, large living space with original decorative fireplace, 1 bedroom and 1.5 baths. The kitchen is equipped with European appliances and fixtures, grey soft close wood cabinetry, back- painted glass backsplashes, additional wine refrigerator and plenty of storage space.
The second level has 3 bedrooms, 2 baths and an additional living room space / media room or library, making this the perfect home.
The 3.5 bathrooms are tiled floor to ceiling and finished with modern European fixtures, all glass shower doors, Robern cabinets and magnifying mirrors.
This unit features white oak hardwood floors, central air, Runtal radiators, European hardware, original decorative fireplace, all new sound attenuation windows, South, East and West exposures, ample closet space, black out shades in the bedrooms, solar shades on all the windows, hard wired data and cable receptacles, Siedle video intercom, washer and dryer.
This is a perfect home in prime Upper East Side!
This information is not verified for authenticity or accuracy and is not guaranteed and may not reflect all real estate activity in the market. ©2025 The Real Estate Board of New York, Inc., All rights reserved.






