| ID # | 11515171 |
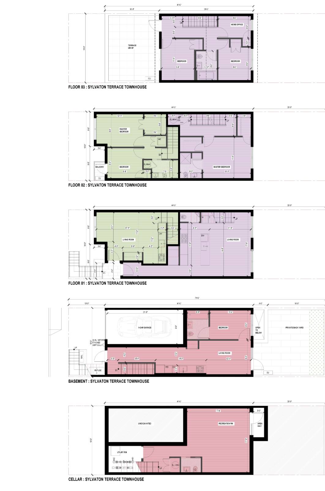
| 物件の詳細 | 3 寝室, 2 バスルーム, ガレージ, エアコン, 外装: 0.03 エーカー, 内装: 3430 ft2, 319m2 (DOM): 144 days |
| 建築年 | 2026 |
| 地下室 | 全面地下室 Full basement |
| ガレージタイプ | Built |
| English Webpage | |
![]() |
Welcome to exceptional 3-Family Investment Opportunity in Prime Staten Island Location - 22 Sylvaton Ter, Staten Island, NY 10305 This fully electric, gas-free 3-family home offers a total of 3,647 SF of living space spread across multiple levels, with private outdoor areas. • Unit 1 : A spacious 3-bedroom, 3-bathroom triplex located on the 2nd, 3rd, and 4th floors. Features include home office, private terrace, garage, and abundant natural light. • Unit 2: A modern 2-bedroom, 1-bathroom duplex occupying parts of the 2nd and 3rd floors. Includes a private balcony, open living area, and well-appointed bedrooms. • Unit 3: A cozy 1-bedroom, 1-bathroom apartment with exclusive recreation room at the cellar and a private backyard - ideal for relaxation or outdoor entertaining. Great location - just minutes from public transportation, parks, and shopping. Whether you're looking for a multi-generational living solution or a high-potential rental property, 22 Sylvaton Ter is a must-see. Broker is partially owner. Subject to E&O. Don't miss this unique opportunity to own a versatile, income-generating property in Staten Island!







