| ID # | 877186 |
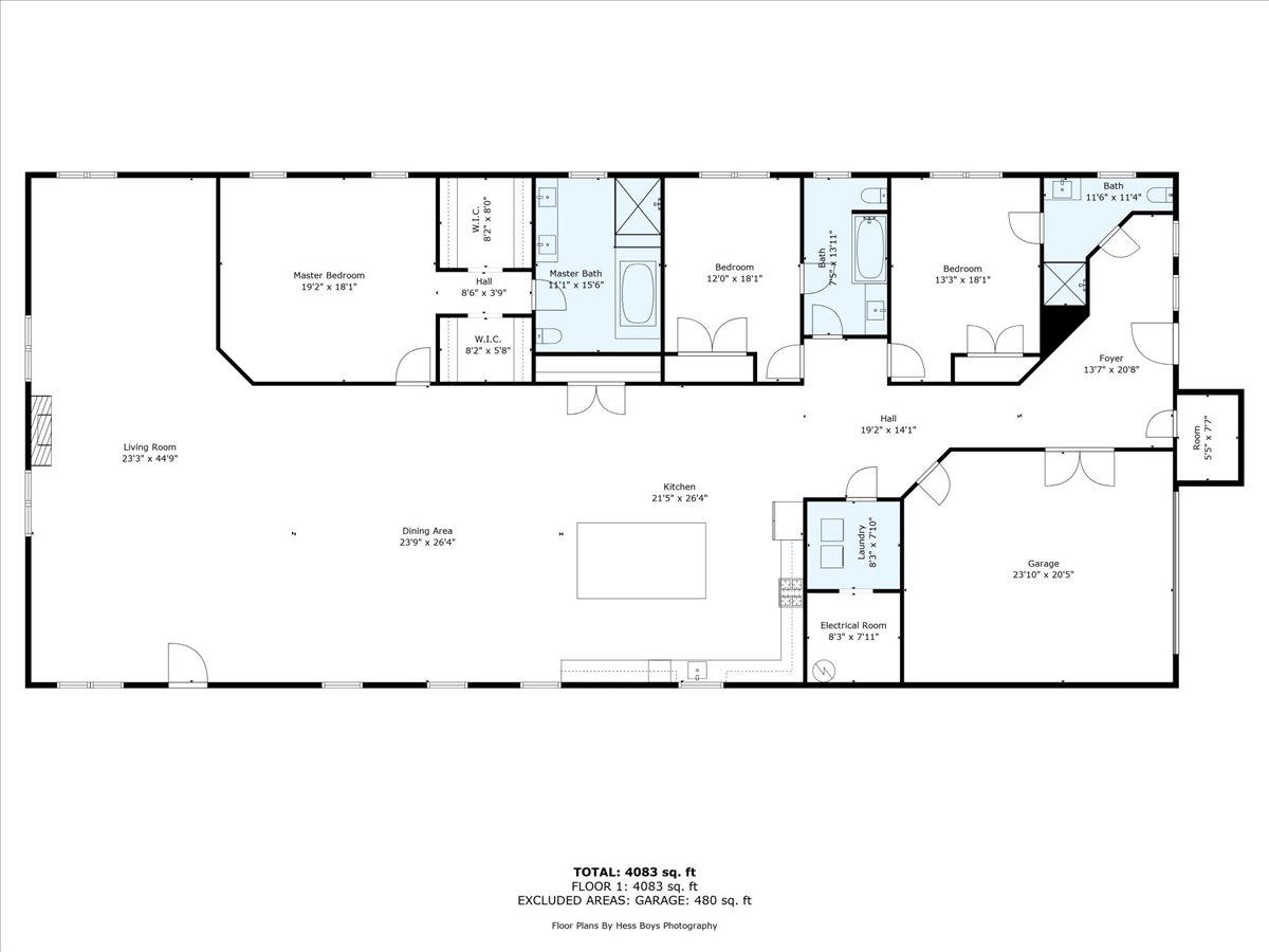
| 物件の詳細 | 3 寝室, 3 バスルーム, 食器洗い機, 洗濯機, 乾燥機, ガレージ, エアコン, 外装: 0.14 エーカー, 内装: 4800 ft2, 446m2 (DOM): 142 days |
| 建築年 | 1961 |
| 税金(年間) | $21,000 |
| 暖房タイプ | 床/壁暖房 Radiant (Floor/Wall) |
| エアコン | セントラルエアコン Central Air |
| 地下室 | なし None |
![]() |
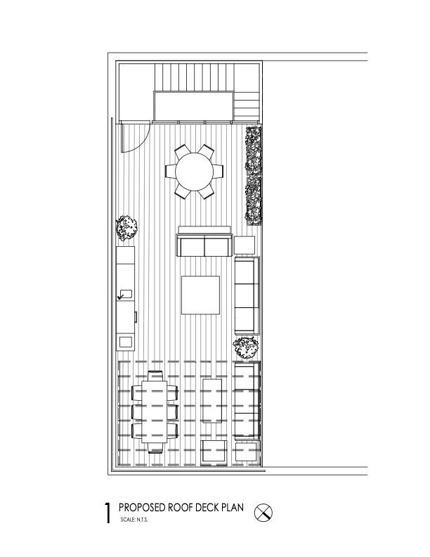
現代のラグジュアリーとインダストリアルな魅力がビーンの中心で出会います。完全に改装され、新たに想像されたインダストリアルスタイルの傑作に足を踏み入れれば、どこにいても25フィートの天井と洗練された仕上げが広がっています。この広々とした家には三つの寝室があり、そのうち一つは主寝室です。各寝室にはカスタムビルトインクローゼットとバスルームが備わっており、快適さとプライバシーを提供します。ラグジュアリーなシェフのキッチンは目を引く存在で、料理とエンターテイメントの両方を意識して設計され、全居宅に広がる輝くハードウッドフロアにスムーズに溶け込みます。スタイリッシュなガス暖炉のそばで快適な夜を楽しみながら、天井に取り付けられた暖房・冷却システムが年間を通じて快適さを保証します。車愛好家には、リフトを収容するのに十分な高さを備えた広々としたガレージが大いに喜ばれるでしょう。さらに、屋上デッキを追加する独自の機会も待っています - デザインはその可能性を強調しており(画像ギャラリーを参照)、ビーン山の息をのむような眺めを楽しむことができます。約654平方フィートの屋根デッキがあり、この空間は建築許可を取得するだけで変身の準備が整っています。メインストリートから2ブロック、メトロノースから徒歩20分の場所に位置するこの物件は、ハドソンバレーで最も人気のある地域の一つで、現代の便利さとインダストリアルエレガンスを兼ね備えています。
Modern luxury meets industrial charm in the heart of Beacon. Step into this fully renovated and reimagined industrial-style masterpiece, offering soaring 25-foot ceilings throughout and sophisticated finishes at every turn. This expansive home features three bedrooms - one being a primary - each with custom built-in closets and bathrooms, providing both comfort and privacy. The luxury chef’s kitchen is a showstopper—designed for both cooking and entertaining, it flows seamlessly into radiant hardwood floors that run throughout the entire home. Enjoy cozy nights by the sleek gas fireplace, while the overhead heating and cooling system ensures year-round comfort. Car enthusiasts will love the oversized garage, thoughtfully designed with enough height to accommodate a lift. Additionally, a unique opportunity awaits with the option to add a rooftop deck - designs highlight (refer to the image gallery) its potential for breathtaking views of Mt. Beacon. With approximately up to 654 square feet of roof deck, this space is ready to be transformed with just a building permit. Located two blocks from Main Street and a 20 min walk from Metro North, this property combines modern convenience with industrial elegance in one of the Hudson Valley’s most sought-after neighborhoods. © 2025 OneKey™ MLS, LLC







