| ID # | RLS20031290 |
| 物件の詳細 | Riverdale On Hudson 2 寝室, 2 バスルーム, 内装: 1300 ft2, 121m2 (DOM): 138 days |
| 建築年 | 1969 |
| 管理費 | $2,234 |
![]() |
大きな美しいパティオと川の景色が楽しめる場所に来て、アメニティで滞在をお楽しみください!
ユニークな2ベッドルーム・2バスルームのアパートで、オフィス/デンは第三のベッドルームとして使用できます。
「ザ・ブルービル」として知られるハイライフ方式のフルサービスビルで、ブロンクスのリバーデール地区に位置しています。
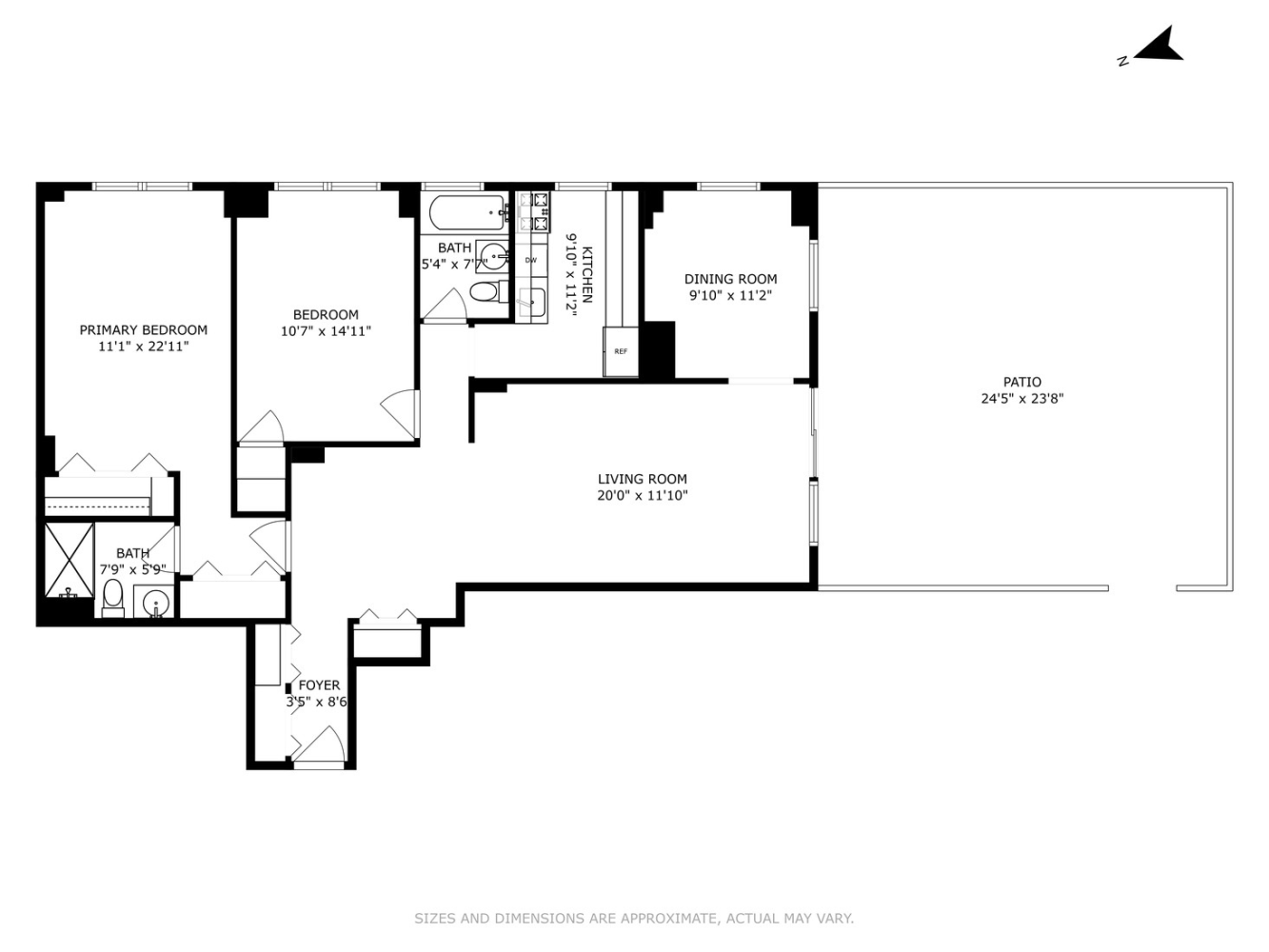
アパート1Kの特徴:広々としたエントリーホール、豊富なクローゼットスペース、日当たりの良いL字型のリビングルームとダイニングエリア、ハーレム川とハドソン川、インウッドパークを見渡す大きなパティオ、窓のあるキッチン、グラナイトカウンター、ステンレス製の家電、全体にパーケットフロア、ウォークインシャワー付きの大きなバスルームを備えた主寝室、日当たりの良い東向きの窓がある広めの二つ目の寝室、2つの窓があるデン/オフィス、または第三の寝室として使用可能、浴槽のあるウィンドウ付きの2つ目のバスルーム、各階の洗濯室、ペットフレンドリー、3層の駐車場 - 駐車スペースの位置によって価格は$180、$185、または$200。
月額維持費に含まれる内容:24時間有人ロビー、常駐スーパーバイザー、コミュニティパティオ、年間通じての室内プール。フィットネスセンターは現在改装中で、2025年夏のオープンを予定しています。暖房、水道、下水道も含まれています。
2400ジョンソンアベニューは、メトロノーススプイテンデュビル鉄道駅、主要地下鉄ラインへの地元バス、マンハッタンへのアクセスが容易なエクスプレスバス、近隣の公園や遊び場に近く、地元の店、飲食店、カフェ、ニューヨークのトップ評価を受けている公立および私立学校にも便利です。近くには伝説のウェーブヒルがあり、ハドソン川とパリセーズを見渡す28エーカーの公共文化庭園があります。
月額維持費は$2,233.50です。現在、または計画中の評価はありません。
COME FOR THE LARGE STUNNING PATIO WITH RIVER VIEWS, STAY FOR THE AMENITIES!
One of a kind two bedroom two bath with an office/den that can be used as a third bedroom.
Known as "The Blue Building" - a premier high-rise co-op full service building located in the Riverdale community of the Bronx.
Apartment 1K features include: Spacious entry hallway with plenty of closet space,
sunny L-shaped living room and dining area, large patio overlooking the Harlem and Hudson Rivers and Inwood Park, windowed kitchen, granite counter top, stainless steel appliances, parquet floors throughout, primary bedroom with in-suite large bathroom with a walk in shower, generous sized second bedroom with sunny east facing window, den/office with two windows, or can be used as a third bedroom, second windowed bathroom with a tub, laundry on every other floor, pet friendly, a three-level parking garage - the prices are $180, $185, or $200 depending on the location of the parking spot, pet friendly.
Included with monthly maintenance: 24-hour attended lobby, live-in super, community patio, year round indoor pool. The fitness center is currently under renovation and is slated to open summer of 2025. Heat, water, and sewer.
2400 Johnson Avenue is steps away from the Metro North Spuyten Duyvil rail station, local buses to the major subway lines, and express buses which provides easy access to Manhattan, neighborhood parks, and playgrounds, and is convenient to local shops, dining, & coffee shops, some of New York's top rated public and private schools. Nearby is the legendary Wave Hill, a 28 acre public cultural garden overlooking the Hudson River and Palisades.
Monthly Maintenance $2,233.50. There are no current or planed assessments at this time.
This information is not verified for authenticity or accuracy and is not guaranteed and may not reflect all real estate activity in the market. ©2025 The Real Estate Board of New York, Inc., All rights reserved.







