| ID # | 877191 |
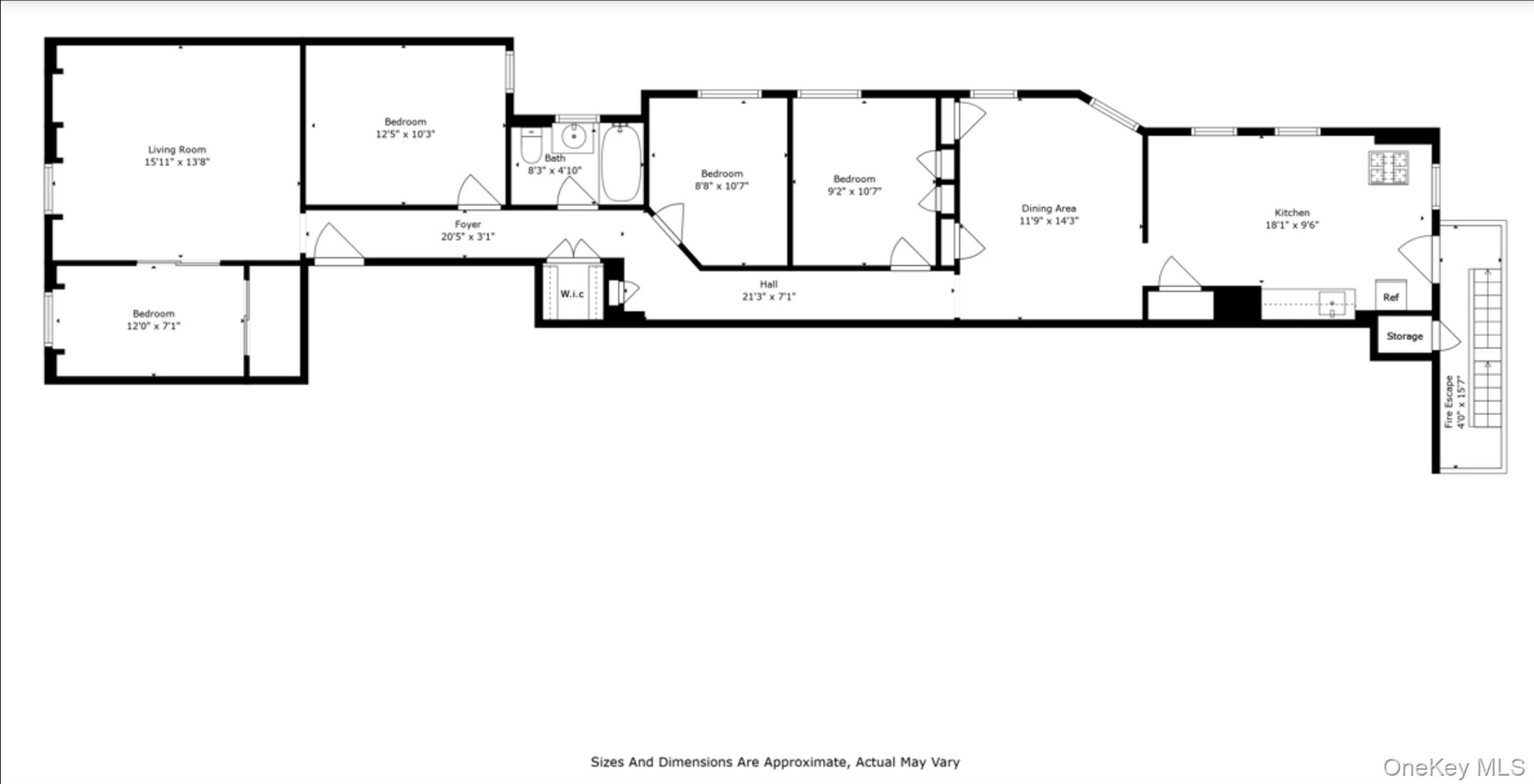
| 物件の詳細 | 4 寝室, 1 バスルーム, エアコン, 内装: 1208 ft2, 112m2 (DOM): 137 days |
| 建築年 | 1900 |
| 管理費 | $525 |
| 暖房タイプ | 床/壁暖房 Radiant (Floor/Wall) |
| エアコン | 壁掛けエアコン Wall Unit AC |
| 地下鉄 | 3 分: 1 |
| 6 分: B, C | |
| 9 分: 2, 3 | |
![]() |
現金のみ - 再販売中 - 176 W 81st Streetに位置するこの4ベッドルーム/1バスルームのアパートは、手入れの行き届いたHDFC Coopビルの3階にあります。このユニットは最近新しいペイントと基本的なアップデートが施され、快適で機能的なレイアウトを提供しています。管理費は月額525ドルで、暖房、温水、ガスが含まれており、地域にとって非常に優れた価値です。HDFC Coopとして、収入制限は地域中央値収入(AMI)の120%に基づいて適用されます。最大許容世帯収入の制限は次のとおりです:1人:136,080ドル、2人:155,520ドル、3人:174,960ドル、4人:194,400ドル、5人:210,000ドル、6人:225,600ドル。ユニットは主たる居住地として使用する必要があり、サブレットは許可されておらず、理事会は他の物件に未払いの抵当権がある買主を承認しません。現金購入のみ、「現状のまま」の状態です。
公園、交通機関、学校、店舗の近くのプライムなアッパーウェストサイドの立地での生活を楽しんでください。 asking priceはこの地域にとって非常に競争力があり、高いアクティビティを期待しています。
CASH ONLY - BACK ON MARKET - Located at 176 W 81st Street, this 4bd/1bth apartment sits on the 3rd floor of a well-maintained walk-up HDFC Coop building. The unit was recently refreshed with new paint and basic updates, offering a comfortable and functional layout. Maintenance is just $525/month and includes heat, hot water and gas...an excellent value for the area. As an HDFC Coop, income restrictions apply based on 120% of the Area Median Income (AMI). Maximum allowable household income limits are: 1 person: $136,080, 2 people: $155,520, 3 people: $174,960, 4 people: $194,400, 5 people: $210,000, 6 people: $225,600. The unit must be used as a primary residence, subletting is not permitted, the board will not approve buyers with open mortgages on other properties. Cash purchase only, "As is" condition
Enjoy life in a prime Upper West Side location near parks, transit, schools and shops. The asking price is very competitive for the area and we expect high activity. © 2025 OneKey™ MLS, LLC







