| ID # | RLS20031913 |
| 物件の詳細 | Purves Condominium スタジオアパート, 洗濯機, 乾燥機, 内装: 525 ft2, 49m2 (DOM): 136 days |
| 建築年 | 2006 |
| 管理費 | $558 |
| 税金(年間) | $4,248 |
| バス | 1 分: B62, Q39, Q67 |
| 3 分: Q100, Q101, Q102, Q69 | |
| 4 分: Q66 | |
| 5 分: Q32, Q60 | |
| 7 分: B32 | |
| 10 分: Q103 | |
| 地下鉄 | 3 分: G |
| 5 分: E, M, R, 7, N, W | |
| LIRR | 0.4 マイル: "Hunterspoint Avenue" |
| 1 マイル: "Long Island City" | |
![]() |
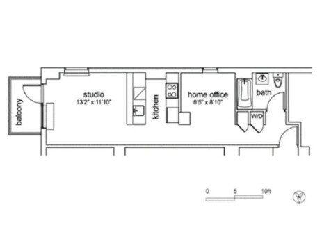
この525平方フィートのスタジオへようこそ。ウィンドウ付きの寝室アルコーブ/ホームオフィスがある44-27 Purves Streetです。
このよく配置されたスタジオは、約525平方フィートの内部スペースを提供しており、ジュニアワンベッドルームとして機能する別のウィンドウ付きホームオフィスがあります。
オープンキッチンにはGE Profileのステンレス製アプライアンス、新しいオーブン、ステンレス製のバックスプラッシュ、便利なオーバーヘッドワインラックがあります。ユニット内にはボッシュ製の洗濯機と乾燥機があります。リビングダイニングエリアは明るく快適で、大きなピクチャーウィンドウとプライベートバルコニーへのアクセスがあります。このユニットにはプライベートストレージユニットも含まれています。
Purvesコンデミニアムは、フルタイムのフロントデスク、サウナ付きのフィットネスルーム、住民ラウンジ、自転車置き場、駐車場(駐車場は空き状況による)を備えたフルサービスのコンドミニアムです。
Court SquareとQueens Plazaの中心に位置しており、Trade Joe's、Target、MOMA PS1、ギャラリー、さまざまなレストランやコーヒーショップからすぐの距離です。複数の地下鉄路線(E、M、G、7、N、Q、R)にも近く、ミッドタウンマンハッタンまで1駅です。
このユニットは居住中です。対面での内見は予約のみで、少なくとも24時間前の通知が必要です。
Welcome to this 525 sf studio with windowed sleeping alcove/home office at 44-27 Purves Street
This well-laid-out studio offers approximately 525 square feet of interior space, including a separate windowed home office that can function as a junior one-bedroom.
The open kitchen features GE Profile stainless steel appliances, brand new oven, a stainless steel backsplash, and a convenient overhead wine rack. Bosch washer and dryer in unit. The living and dining area is bright and comfortable, with large picture windows and access to a private balcony.
This unit also includes a private storage unit.
Purves Condominium is a full-service condo with a full-time front desk, fitness room with sauna, resident lounge, bike storage, and a parking garage (parking subject to availability).
Located in the center of Court Square and Queens Plaza, just stepping away from Trade Joe's, Target, MOMA PS1, galleries, and many restaurants and coffee shops, close to multiple subway lines (E, M, G, 7, N, Q, R), with just one stop to Midtown Manhattan.
This unit is occupied. In-person showing is by appointment only and at least 24 hours ahead notice.
This information is not verified for authenticity or accuracy and is not guaranteed and may not reflect all real estate activity in the market. ©2025 The Real Estate Board of New York, Inc., All rights reserved.







