| ID # | 877531 |
| 物件の詳細 | 外装: 2 エーカー (DOM): 135 days |
| 税金(年間) | $6,684 |
![]() |
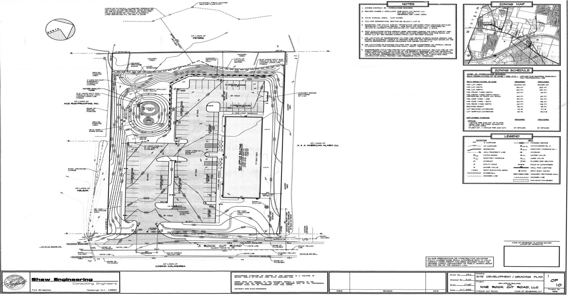
この2エーカーの商業用地は、Route 17kとRock Cut Rd.の交差点近くに位置し、最寄りのRoute 84の出口からも数秒です。市営の水道、下水道、ガスがRock Cut Rd.沿いにあり、ニューバーグ町のIBゾーン(ビジネスゾーン)にあります。ゾーニング、セットバック、およびトポを解釈したサイトプランを含む予備的な工学作業が完了しています。サイトプランは、17,280平方フィートの2階建ての建物を可能にしますが、他にも多くの可能性があります。詳細についてはパンフレットを参照するか、リストエージェントにお問い合わせください。
This 2 acre commercial parcel is located near the intersection of Route 17k and Rock Cut Rd. and just seconds from the nearest route 84 exit. It rests in the Town of Newburgh IB zone (business zone) with municipal water, sewer and gas along Rock Cut Rd. Preliminary engineering work has been completed including a site plan that interprets zoning, setbacks, and topo. The site plan facilitates a 17,280 sf, 2 story building however there are many other possibilities. See brochure for additional details or call List Agent for more info. © 2025 OneKey™ MLS, LLC







