| ID # | RLS20034227 |
| 物件の詳細 | 2 寝室, 2 バスルーム (DOM): 194 days |
| 建築年 | 1909 |
| 管理費 | $4,554 |
| 地下鉄 | 3 分: R, W, N, Q |
| 4 分: J, Z, 6 | |
| 5 分: 1, A, C, E | |
| 6 分: 4, 5 | |
| 7 分: 2, 3 | |
| 10 分: B, D | |
![]() |
この壮観で丹念に改装されたトライベッカのペントハウスロフトは、全ての部屋から開放的な市の景色が楽しめる稀な物件であり、大きな窓から豊富な光が差し込み、素晴らしいプライベートルーフテラスを備えています。クリーンでモダンな仕上げと歴史的建物のオリジナル要素を巧みに組み合わせたこの豪華な住まいは、フランクリンストリートの角に位置する理想的なダウンタウンの静かなオアシスです。最近の改装により空間に大きなボリュームが追加され、屋上の付加部分がガラスのキューブとして再構築され、下のリビングエリアに光を注ぎ込み、中央階段とエントリーホールの上には14フィートを超える天井が作られました。
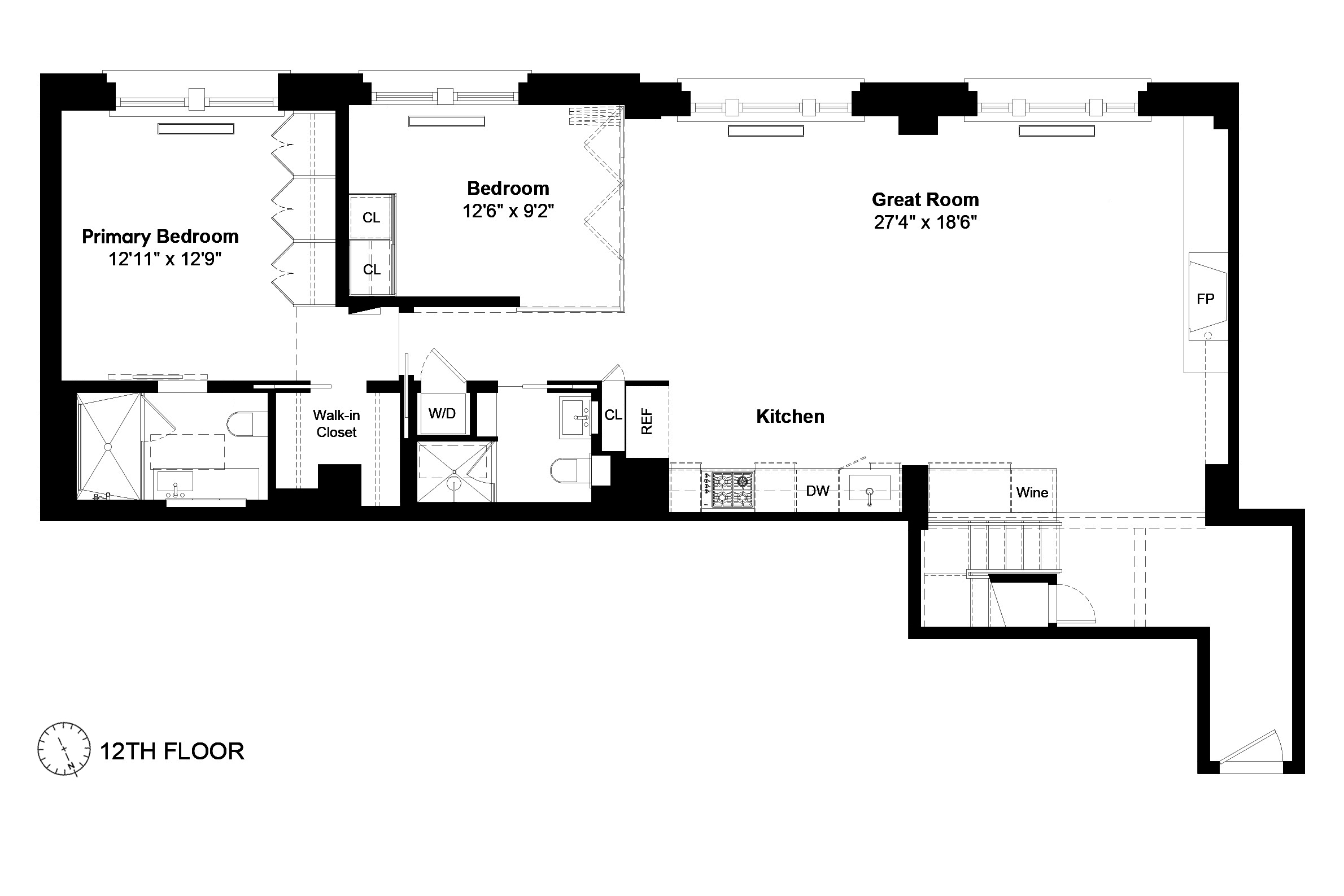
エントリーホールには建物のオリジナルトラッゾタイルの床が施されており、自然光が一日中リビングスペースに降り注ぐ美しい二重の高さのアトリウムへと続いています。広々とした美しいプロポーションのリビング/ダイニングルームにはガス暖炉とビルトインシェルフがあります。リビング/ダイニングルームにオープンなスリムなシェフのキッチンには、ミーレのIH調理器具、オーブン、ビルトイン食洗機、サブゼロの並列冷蔵庫/冷凍庫、ワインストレージユニットなどの最上級の家電が備わっています。
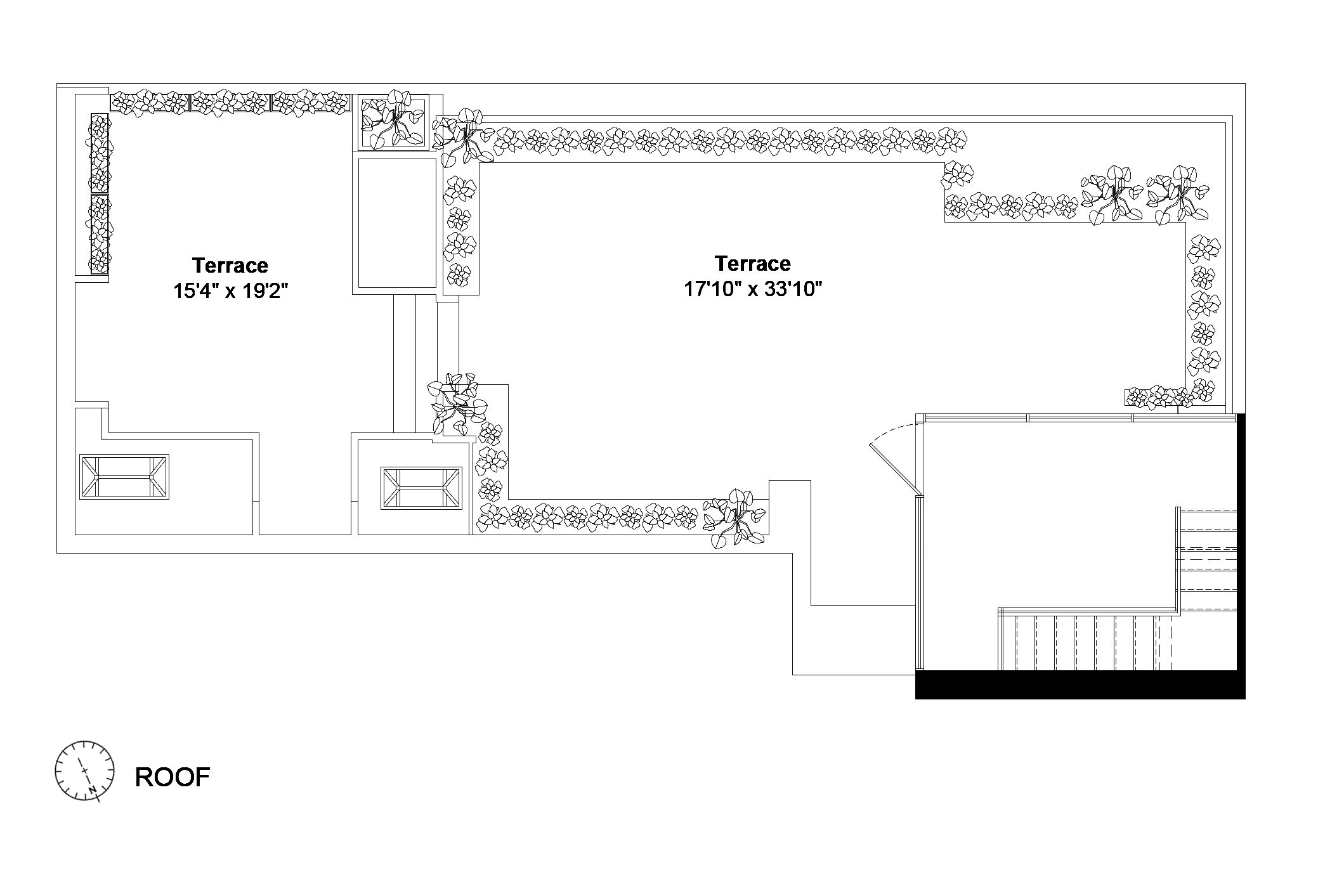
アトリウムの階段を上ると、アップルの小売店で使用されているのと同じ高品質の素材から作られた、印象的なガラス張りの床の部屋に到達します。完璧なスタディまたはデンとして、この屋上の隠れ家は2面がガラス壁で囲まれており、広大なプライベートルーフガーデンに完全に開放できます。美しく設計されてランドスケープされたこの夢の屋上デッキは、日光浴やラウンジシート、ダイニング、昼夜の開放的な市の景色を楽しむための十分なスペースがあります。
主寝室にはカスタムビルトインの大きなウォークインクローゼット、追加のビルトインクローゼット、ダウンタウンのシティスケープをフレームするアーチ型の窓があります。専用のバスルームには天窓と広いガラス張りのシャワーが完備されています。グレートルームに隣接するゲストベッドルームには、使用しないときにメインスペースに開く折りたたみ壁があります。フルゲストバスにも天窓とガラス張りのシャワーが備わっています。このアパートメントは真にターンキーで、中央エアコン、Citiquietウィンドウ、幅広のホワイトオークの床、ユニット内の洗濯機/乾燥機が完備されています。
「コレクトポンドハウス」は、1908年に建てられた歴史的なボザール様式の建物にある確立されたコーポラティブで、壮観な大理石のロビー、フルタイムの管理人、地下収納があります。一つの収納ユニットがアパートに付属します。このダウンタウンの中心に位置する完璧なロケーションは、トライベッカ、ソーホー、ノリタ、ロウアーイーストサイド、チャイナタウン、ファイナンシャルディストリクトの活気ある近隣への簡単なアクセスを提供し、交通機関への素晴らしいアクセスがあります。協同組合に支払う1.5%の譲渡手数料があります。
This spectacular and meticulously renovated Tribeca penthouse loft is a rare find, with open city views from every room, abundant light through huge windows, and a fabulous private roof terrace. Expertly blending clean, modern finishes with the original elements of an historic building, this luxurious home is a perfect oasis of calm in an ideal downtown location at the corner of Franklin Street. A very recent renovation added significant volume to the space, rebuilding the rooftop addition as a glass cube that floods the living area below with light, and creating over 14’ ceilings above the central stair and entry hall.
The entry hall features the building’s original terrazzo-tiled floors, leading to a stunning double-height atrium that floods the living space with natural light all day. The large and beautifully proportioned living/dining room features a gas fireplace and built-in shelving. Open to the living/dining room is the sleek chef’s kitchen, with top-of-the-line appliances including Miele induction cooktop, oven and integrated dishwasher, and Sub-Zero side-by-side refrigerator/freezer and wine storage unit.
The atrium’s staircase ascends to an impressive glass-floored room, inspired by and crafted from the same high quality materials used by Apple in its retail stores. A perfect study or den, this rooftop aerie is enclosed on two sides by glass walls that can fully open to the expansive private roof garden. Beautifully designed and landscaped, this dreamy roof deck has ample room for sunbathing, lounge seating, dining, and enjoyment of both the daytime and nighttime open city views.
The primary suite boasts a large walk-in closet with custom built-ins, an additional wall of built-in closets, and arched windows that frame the downtown cityscape. The en-suite bath features a skylight and large glass-enclosed shower. Adjacent to the great room, the guest bedroom has a folding wall that opens to the main space when not in use. A full guest bath also features a skylight and glass-enclosed shower. This apartment is truly turn-key - complete with central A/C, Citiquiet windows, wide-plank white oak floors, and a washer/dryer in the unit.
The “Collect Pond House” is a well-established cooperative in a historic 1908 Beaux-Arts building, with a spectacular marble lobby, full-time superintendent and basement storage. One storage unit conveys with the apartment. This perfect location at the center of downtown affords easy access to the vibrant neighborhoods of Tribeca, Soho, Nolita, the Lower East Side, Chinatown, and the Financial District, and has excellent access to transportation. 1.5% transfer fee payable to the cooperative.
This information is not verified for authenticity or accuracy and is not guaranteed and may not reflect all real estate activity in the market. ©2025 The Real Estate Board of New York, Inc., All rights reserved.







