| ID # | 884749 |
| 物件の詳細 | 外装: 0.2 エーカー (DOM): 122 days |
| 税金(年間) | $1,046 |
![]() |
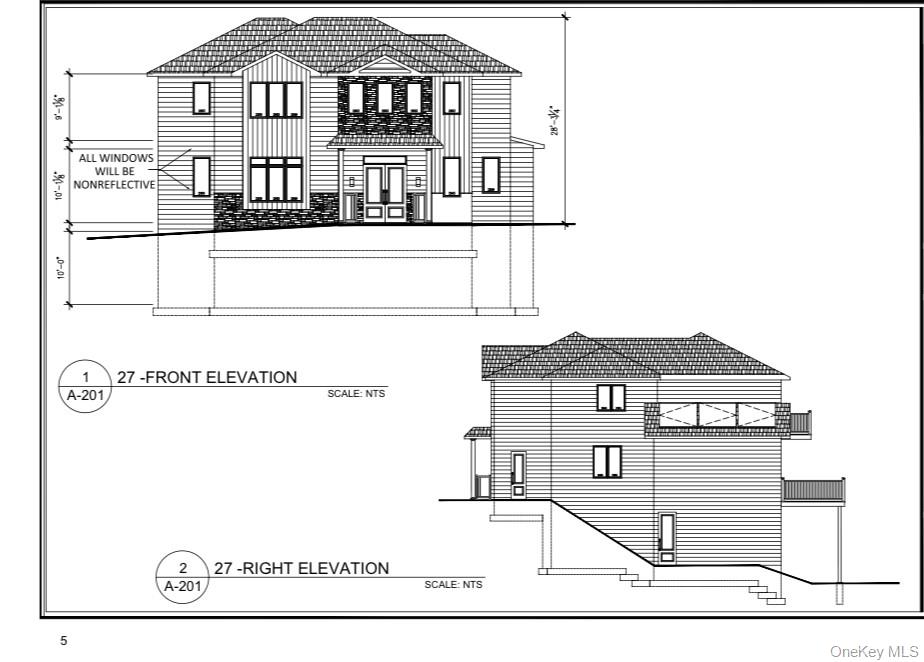
夢のマイホームを建てよう!完全承認済みプラン - ショベル準備完了!
27 Westend Drへようこそ
この特別な機会は、静かな cul-de-sacに自分だけの美しいコロニアルスタイルの家を建てる珍しいチャンスを提供します。日常生活の喧騒からの静かな隠れ家を提供します。完全に承認されたプランとショベルの準備が整った状態で、すぐに工事を開始でき、あなたの独自の好みやニーズに合わせた夢の家を作り始めることができます。
承認済みプラン:遅延や頭痛の心配なし – 今日は夢の家を建て始めましょう!すでにプランが整っているので、物流を気にせずに完璧なインテリアやエクステリアスペースをデザインすることに集中できて、最も重要なこと、つまりこの家をあなたの家にすることを優先できます。
主な特徴:
- 総居住面積:3928平方フィートの贅沢なスペースは、友人や誰かを楽しませるのに最適で、愛する人たちとの快適な環境での質の高い時間を楽しむのにピッタリです。
- 広々とした地下室:追加の生活、収納、またはレクリエーションスペースとして1890平方フィートのスペース – 可能性は無限大です!このスペースをホームジム、メディアルーム、あるいはプライベートリトリートとして利用することを想像してみてください。
- Cul-de-Sacの静けさ:リラックスしたライフスタイルを求める方に最適な、理想的な環境で平和と静けさを楽しんでください。静かな近隣と美しい自然環境は、くつろぎとリフレッシュに最適な場所です。
- 完全承認済みプラン:期待を超える美しいコロニアルスタイルの家で、あらゆる詳細が慎重に考慮されています。レイアウトから仕上げまで、この家のすべての側面は、真に特別な生活体験を作り出すために考えられています。
- 公共水道および下水道:便利で安心な公共インフラがすでに物件に接続されており、井戸や浄化槽の必要がなく、手間のかからない生活体験を提供します。
ここでのあなたの生活を想像してみてください:
- 美しい日の出で目を覚まし、穏やかな環境で静かな朝を楽しみ、これからの一日の良いスタートを切りましょう。
- 広々とした自宅で忘れられない集まりやパーティーを開催し、友人や家族との一生の思い出を作りましょう。
- 室内外のスペースの完璧な融合の中で家族や友人と生涯の思い出を作り、美しいリラックスできる環境で共に素晴らしい時間を楽しんでください。
この魅力的な場所で夢の家を作る絶好のチャンスをお見逃しなく。詳細情報や見学の予約についてはお知らせください。夢を現実にするための第一歩を踏み出し、あなたがずっと描いていた人生を築き始めましょう!
Build Your Dream Home! FULLY APPROVED PLAND-SHOVAL READY!
Welcome to 27 Westend Dr
This exceptional opportunity offers a rare chance to build your own stunning colonial-style home on a serene cul-de-sac, providing a tranquil retreat from the hustle and bustle of everyday life. With fully approved plans and shovel-ready conditions, you can break ground immediately and start creating the home of your dreams, tailored to your unique tastes and needs.
Approved Plans: No delays or headaches – start building your dream home today! With plans already in place, you can focus on designing the perfect interior and exterior spaces without worrying about the logistics, allowing you to prioritize what matters most: making this house your home.
Key Features:
- Total Living Area: 3928 sqft of luxurious space, perfect for entertaining friends and anyone, or simply enjoying quality time with loved ones in a spacious and comfortable environment.
- Expansive Basement: 1890 sqft for added living, storage, or recreational space – the possibilities are endless! Imagine using this space for a home gym, media room, or even a private retreat.
- Cul-de-Sac Serenity: Enjoy peace and tranquility in this idyllic setting, perfect for those seeking a relaxing lifestyle. The quiet neighborhood and picturesque surroundings make it an ideal spot to unwind and recharge.
- Fully Approved Plans: For a stunning colonial home that exceeds your expectations, with every detail carefully considered. From the layout to the finishes, every aspect of this home has been thoughtfully designed to create a truly special living experience.
- Public Water and Sewer: Convenience and peace of mind with public utilities already connected to the property, eliminating the need for wells or septic systems and providing a hassle-free living experience.
Imagine Your Life Here:
- Wake up to beautiful sunrises and enjoy peaceful mornings in a serene setting, setting a positive tone for the day ahead.
- Host unforgettable gatherings and parties in your spacious home, creating memories that will last a lifetime with friends and family.
- Create lifelong memories with family and friends in a perfect blend of indoor and outdoor living spaces, enjoying quality time together in a beautiful and relaxing environment.
Don't miss out on this incredible chance to create your dream home in a desirable location. Contact us for more information or to schedule a viewing. Take the first step towards making your dream a reality and start building the life you've always envisioned! © 2025 OneKey™ MLS, LLC







