| ID # | 11529811 |
| 物件の詳細 | 8 寝室, 10 バスルーム, エアコン, 内装: 8738 ft2, 812m2 (DOM): 216 days |
| 建築年 | 2024 |
| 地下室 | 全面地下室 Full basement |
| English Webpage | |
| LIRR | 3.3 マイル: "Bridgehampton" |
| 4.9 マイル: "Southampton" | |
![]() |
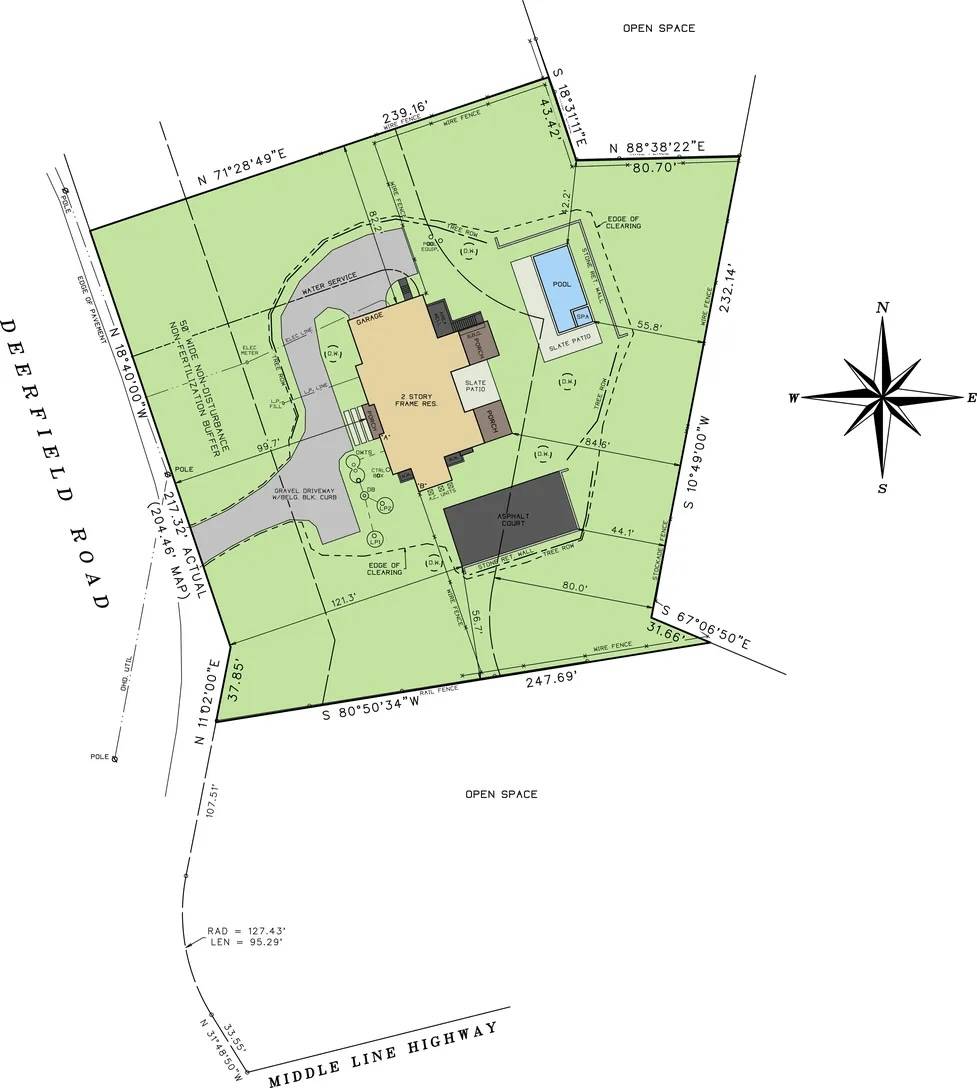
Welcome to 2061 Deerfield Road. Located within a private 16-acre enclave The Reserve at Deerfield in Sag Harbor, this newly constructed residence is one of four custom homes in a limited new development designed by seasoned architects McDonough & Conroy and built by Barsalin Building and Design. Set on 1.61 acres and bordered by more than 10 acres of preserved open space, the property offers modern design, privacy, and resort-style amenities. Spanning approximately 8,769 square feet across three levels, including 2,743 square feet on the finished lower level, the home includes 8 bedrooms, 10.5 bathrooms, an oversized two-car garage, a 20'x40' heated gunite saltwater pool with 8'x8' spa, and a private pickleball court. The main entry features double-height ceilings, a vertical wood accent wall, and clerestory windows that bring in natural light and frame landscaped yard views. Living spaces are enhanced by 11' ceilings, 10' solid wood doors, and an open layout connecting the formal dining area, kitchen, and great room. The kitchen is equipped with a Carrara marble center island, professional-grade appliances by Wolf, Sub-Zero, and Bosch, and a separate full-service prep kitchen. A Carrara marble fireplace adds warmth to the living space, and oversized sliding glass doors and Marvin windows allow for indoor-outdoor flow. The first floor primary suite includes two spacious walk-in closets and an en-suite bath with dual vanity, freestanding soaking tub, and separate shower. Off the kitchen, the entry level is completed with a mudroom featuring built-in closets, a full laundry room, a full bathroom, and a large pantry for storage; all with direct access to the oversized two-car garage and side yard. On the upper level, the primary suite includes two walk-in closets, a spacious en-suite bath with soaking tub and dual vanities, and private access to a 17' terrace that overlooks the landscaped back yard. Four additional guest bedrooms, each with an en-suite bath, and a second laundry room complete this floor. The finished walk out lower level offers two additional guest bedrooms, each with a full en-suite bath. This lower level provides a luxurious amenity space with golf simulator room, media lounge, gym with specialty flooring, sauna, massage room, and a recreation area. Conveniently located between Sag Harbor Village, Water Mill, and Southampton, and minutes away from Noyack Golf Club, this newly completed home offers high-end finishes, a thoughtful layout, and a private setting in one of the Hamptons' most sought-after areas.







